Cruze
   
GMDE Start Page Load static TOC Load dynamic TOC Help?
g308


            |                         |            
2203175RU.png


Display graphic

Display graphic

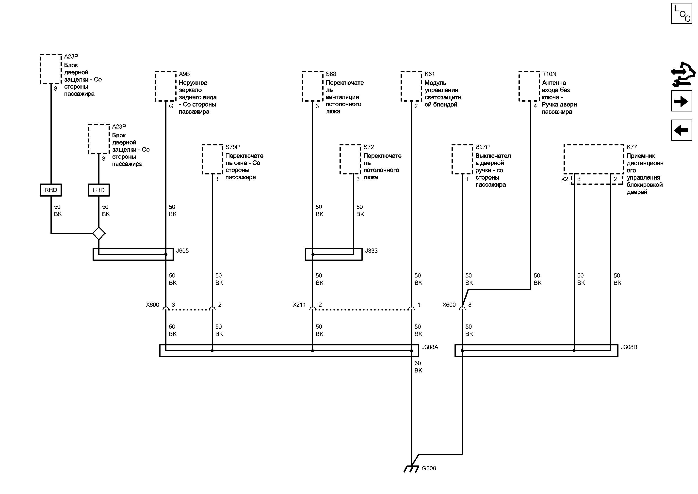
Компоненты
a9bНаружное зеркало заднего вида - Со стороны пассажираs72Переключатель потолочного люка
a23pБлок дверной защелки - Со стороны пассажираs79pПереключатель окна - Со стороны пассажира
b27pВыключатель дверной ручки - со стороны пассажираs88Переключатель вентиляции потолочного люка
k61Модуль управления светозащитной блендойt10nАнтенна входа без ключа - Ручка двери пассажира
k77Приемник дистанционного управления блокировкой дверей
Разъемы
j308aСоединение с виртуальной "землей"k77 (x2)Приемник дистанционного управления блокировкой дверей x2
j308bСоединение с виртуальной "землей"x211Жгут проводов кузова и жгут проводов крыши
j333Жгут проводов крышиx600Жгут проводов кузова и жгут проводов двери пассажира
j605Жгут проводов двери пассажира
Точки соединения с массой
g308Передняя стойка, правая
Сокращения
lhdЛевостороннее управлениеrhdПравостороннее управление
Цветовые коды
bkЧерный
1
G
Масса
BK Черный
2
BK Черный
BK Черный
BK Черный
1
6
2
G308 Передняя стойка, правая

Расположение деталей (узлов) Трехмерная схема жгутов
Внешний вид разъема и ремонт
BK Черный
BK Черный
2
X600 Жгут проводов кузова и жгут проводов двери пассажира

Расположение деталей (узлов) Трехмерная схема жгутов Левостороннее управление
Расположение деталей (узлов) Трехмерная схема жгутов Правостороннее управление
Внешний вид разъема и ремонт Вилка Левостороннее управление
Внешний вид разъема и ремонт Вилка Правостороннее управление
Внешний вид разъема и ремонт Гнездо
3
8
3
BK Черный
BK Черный
Левостороннее управление
BK Черный
Правостороннее управление
BK Черный
X211 Жгут проводов кузова и жгут проводов крыши

Расположение деталей (узлов) Трехмерная схема жгутов
Внешний вид разъема и ремонт Вилка
Внешний вид разъема и ремонт Гнездо
2
1
BK Черный
BK Черный
3
3
BK Черный
BK Черный
X600 Жгут проводов кузова и жгут проводов двери пассажира

Расположение деталей (узлов) Трехмерная схема жгутов Левостороннее управление
Расположение деталей (узлов) Трехмерная схема жгутов Правостороннее управление
Внешний вид разъема и ремонт Вилка Левостороннее управление
Внешний вид разъема и ремонт Вилка Правостороннее управление
Внешний вид разъема и ремонт Гнездо
8
BK Черный
4
BK Черный
BK Черный
BK Черный
J308B Соединение с виртуальной "землей"
J333 Жгут проводов крыши
J308A Соединение с виртуальной "землей"
J605 Жгут проводов двери пассажира
BK Черный
X2 Приемник дистанционного управления блокировкой дверей X2

Расположение деталей (узлов) Трехмерная схема жгутов
Внешний вид разъема и ремонт
T10N Антенна входа без ключа - Ручка двери пассажира

Расположение деталей (узлов) Трехмерная схема жгутов Левостороннее управление
Расположение деталей (узлов) Трехмерная схема жгутов Правостороннее управление
Внешний вид разъема и ремонт
Электрическая схема Выключатели ручек и замков Контакт 4
S88 Переключатель вентиляции потолочного люка

Расположение деталей (узлов) Трехмерная схема жгутов
Внешний вид разъема и ремонт
Электрическая схема Лампы освещения, кузов Контакт 3
S72 Переключатель потолочного люка

Расположение деталей (узлов) Трехмерная схема жгутов
Электрическая схема Лампы освещения, кузов Контакт 3
A23P Блок дверной защелки - Со стороны пассажира

Внешний вид разъема и ремонт
Электрическая схема Исполнительные ораны - срабатывание/освобождение защелки УПРАВЛЕНИЕ ЗАМКОМ ВХОДА, ДИСТАНЦИОННЫЙ ВХОД, РАСШИРЕННЫЙ ДИАПАЗОН, ПАССИВНЫЙ ВХОД Правостороннее управление Контакт 8
Электрическая схема Исполнительные органы - Двери и крышка топливного бака БЕЗ УПРАВЛЕНИЯ ЗАМКОМ БОКОВОЙ ДВЕРИ, ПРОТИВОУГОННАЯ ЗАЩИТА Левостороннее управление Контакт 8
Электрическая схема Исполнительные органы - Двери и крышка топливного бака УПРАВЛЕНИЕ ЗАМКОМ БОКОВОЙ ДВЕРИ, ПРОТИВОУГОННАЯ ЗАЩИТА. СТРАНЫ - КРОМЕ СЕВЕРНОЙ АМЕРИКИ Левостороннее управление Контакт 8
Электрическая схема Переключатели "дверь открыта", спереди Правостороннее управление Контакт 8
A23P Блок дверной защелки - Со стороны пассажира

Внешний вид разъема и ремонт
Электрическая схема Исполнительные ораны - срабатывание/освобождение защелки УПРАВЛЕНИЕ ЗАМКОМ ВХОДА, ДИСТАНЦИОННЫЙ ВХОД, РАСШИРЕННЫЙ ДИАПАЗОН, ПАССИВНЫЙ ВХОД Левостороннее управление Контакт 3
Электрическая схема Исполнительные органы - Двери и крышка топливного бака БЕЗ УПРАВЛЕНИЯ ЗАМКОМ БОКОВОЙ ДВЕРИ, ПРОТИВОУГОННАЯ ЗАЩИТА Правостороннее управление Контакт 3
Электрическая схема Исполнительные органы - Двери и крышка топливного бака УПРАВЛЕНИЕ ЗАМКОМ БОКОВОЙ ДВЕРИ, ПРОТИВОУГОННАЯ ЗАЩИТА. СТРАНЫ - КРОМЕ СЕВЕРНОЙ АМЕРИКИ Правостороннее управление Контакт 3
Электрическая схема Переключатели "дверь открыта", спереди Левостороннее управление Контакт 3
K77 Приемник дистанционного управления блокировкой дверей

Расположение деталей (узлов) Трехмерная схема жгутов
Электрическая схема Питание, масса и последовательные данные УПРАВЛЕНИЕ ЗАМКОМ ВХОДА, ДИСТАНЦИОННЫЙ ВХОД, РАСШИРЕННЫЙ ДИАПАЗОН, ПАССИВНЫЙ ВХОД Контакт 2
Электрическая схема Питание, масса и последовательные данные УПРАВЛЕНИЕ ЗАМКОМ ВХОДА, ДИСТАНЦИОННЫЙ ВХОД, РАСШИРЕННЫЙ ДИАПАЗОН, ПАССИВНЫЙ ВХОД Контакт 6
B27P Выключатель дверной ручки - со стороны пассажира

Расположение деталей (узлов) Трехмерная схема жгутов Левостороннее управление
Расположение деталей (узлов) Трехмерная схема жгутов Правостороннее управление
Внешний вид разъема и ремонт
Электрическая схема Выключатели ручек и замков Контакт 1
K61 Модуль управления светозащитной блендой

Расположение деталей (узлов) Трехмерная схема жгутов
Внешний вид разъема и ремонт
Электрическая схема Потолочный люк Контакт 2
A9B Наружное зеркало заднего вида - Со стороны пассажира

Расположение деталей (узлов) Трехмерная схема жгутов Левостороннее управление
Расположение деталей (узлов) Трехмерная схема жгутов Правостороннее управление
Внешний вид разъема и ремонт
Электрическая схема Обогреваемые наружные зеркала Контакт G
S79P Переключатель окна - Со стороны пассажира

Расположение деталей (узлов) Трехмерная схема жгутов Левостороннее управление
Расположение деталей (узлов) Трехмерная схема жгутов Правостороннее управление
Внешний вид разъема и ремонт
Электрическая схема Стеклоподъемники - дверь пассажира Контакт 1
G120 и G307

G120 и G307
Справочные данные по контроллерам

Справочные данные по контроллерам
G309

G309
Перечень основных электрических компонентов

Перечень основных электрических компонентов
   


https://vnx.su/ 🛠 Руководства по ремонту и эксплуатации для автомобилей

Поиск по сайту

Остались вопросы или пожелания? Пишите на почту: support@vnx.su

Карта Сайта