Cruze
   
GMDE Start Page Load static TOC Load dynamic TOC Help?
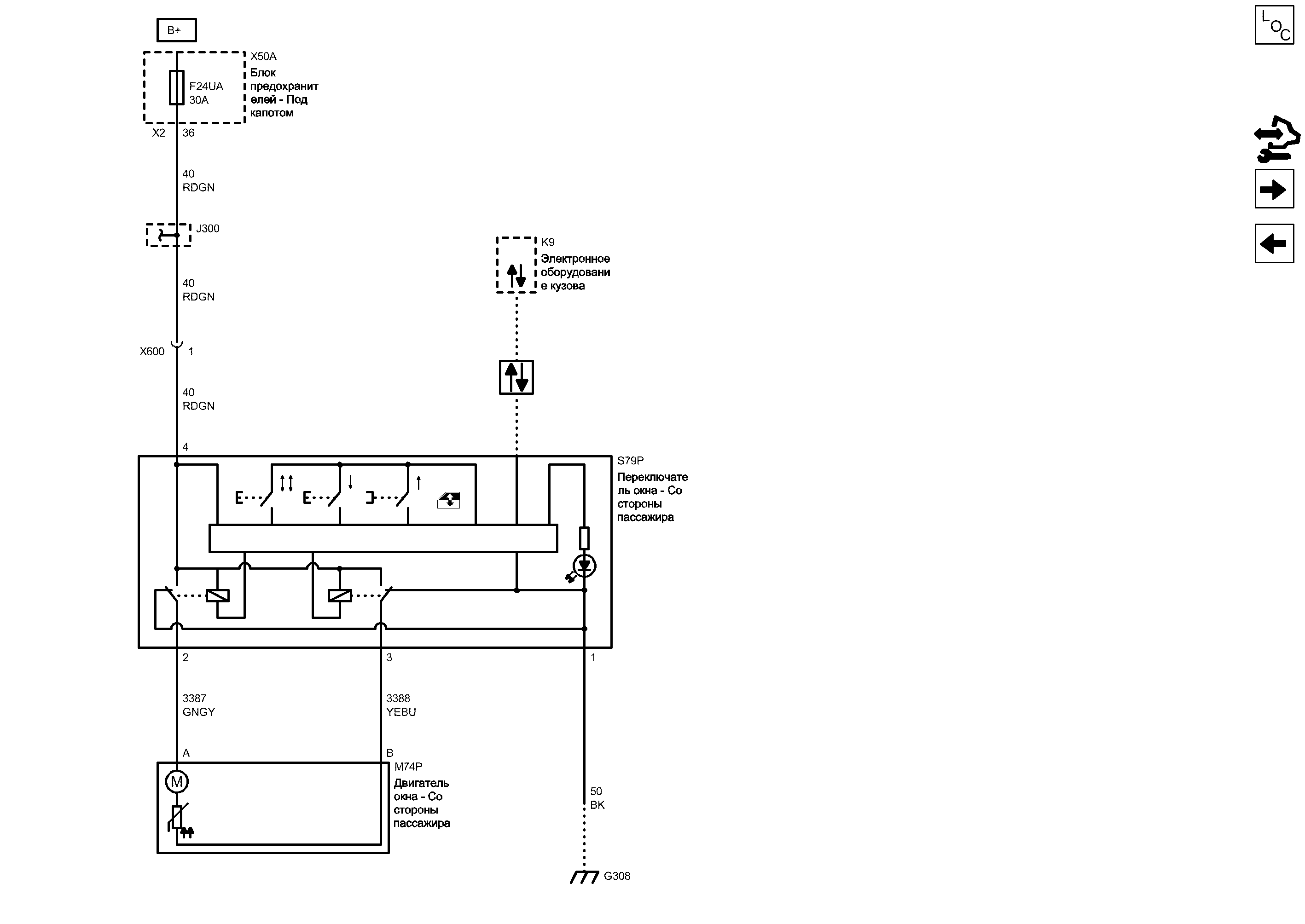
Стеклоподъемники - дверь пассажира


            |                         |            
2202800RU.png


Display graphic

Display graphic

Компоненты
f24uaПредохранительs79pПереключатель окна - Со стороны пассажира
k9Электронное оборудование кузоваx50aБлок предохранителей - Под капотом
m74pДвигатель окна - Со стороны пассажира
Разъемы
j300Жгут проводов кузоваx600Жгут проводов кузова и жгут проводов двери пассажира
x50a (x2)Блок предохранителей - Под капотом x2
Точки соединения с массой
g308Передняя стойка, правая
Сокращения
b+Вывод b+fsdcФункциональный обмен последовательными данными
Цветовые коды
bkЧерныйrdgnКрасный-Зеленый
gngyЗеленый-СерыйyebuЖелтый-Синий
X600 Жгут проводов кузова и жгут проводов двери пассажира

Расположение деталей (узлов) Трехмерная схема жгутов Левостороннее управление
Расположение деталей (узлов) Трехмерная схема жгутов Правостороннее управление
Внешний вид разъема и ремонт Вилка Левостороннее управление
Внешний вид разъема и ремонт Вилка Правостороннее управление
Внешний вид разъема и ремонт Гнездо
1
4
G308 Передняя стойка, правая

Расположение деталей (узлов) Трехмерная схема жгутов
Внешний вид разъема и ремонт
Электрическая схема G308
1
2
A
Управление электродвигателем стеклоподъемника сменного водителя - команда "вверх...
GNGY Зеленый-Серый
Управление электродвигателем стеклоподъемника сменного водителя - команда "вниз"...
YEBU Желтый-Синий
B
3
J300 Жгут проводов кузова

Электрическая схема Стеклоподъемники - дверь водителя СТЕКЛО С МЕХАНИЧЕСКИМ ПРИВОДОМ - СО СТОРОНЫ ВОДИТЕЛЯ - СРОЧНО ВВЕРХ/ВНИЗ
Электрическая схема Стеклоподъемники - дверь водителя СТЕКЛО С МЕХАНИЧЕСКИМ ПРИВОДОМ - СО СТОРОНЫ ВОДИТЕЛЯ - СРОЧНО ВНИЗ
Электрическая схема Выключатели ремней безопасности
Положительное напряжение аккумуляторной батареи
RDGN Красный-Зеленый
Вывод B+
F24UA Предохранитель

Электрическая схема Дерево Предохранители F24UA, F32UA, F35UA, F55UA, F69UA и F70UA
Электрическая схема Питание Шина B+ UEC (1 из 6)
X2 Блок предохранителей - Под капотом X2

Внешний вид разъема и ремонт
36
Функциональный обмен последовательными данными
K9 Электронное оборудование кузова

Расположение деталей (узлов) Трехмерная схема жгутов
X50A Блок предохранителей - Под капотом

Расположение деталей (узлов) Трехмерная схема жгутов
M74P Двигатель окна - Со стороны пассажира

Расположение деталей (узлов) Трехмерная схема жгутов Левостороннее управление
Расположение деталей (узлов) Трехмерная схема жгутов Правостороннее управление
Внешний вид разъема и ремонт
S79P Переключатель окна - Со стороны пассажира

Расположение деталей (узлов) Трехмерная схема жгутов Левостороннее управление
Расположение деталей (узлов) Трехмерная схема жгутов Правостороннее управление
Внешний вид разъема и ремонт
Последовательные данные
RDGN Красный-Зеленый
RDGN Красный-Зеленый
Масса
BK Черный
Стеклоподъемники - дверь водителя

Стеклоподъемники - дверь водителя
Справочные данные по контроллерам

Справочные данные по контроллерам
Стеклоподъемники задних дверей

Стеклоподъемники задних дверей
Перечень основных электрических компонентов

Перечень основных электрических компонентов
   


https://vnx.su/ 🛠 Руководства по ремонту и эксплуатации для автомобилей

Поиск по сайту

Остались вопросы или пожелания? Пишите на почту: support@vnx.su

Карта Сайта