Cruze
   
GMDE Start Page Load static TOC Load dynamic TOC Help?
g101


            |                         |            
2203163RU.png


Display graphic

Display graphic

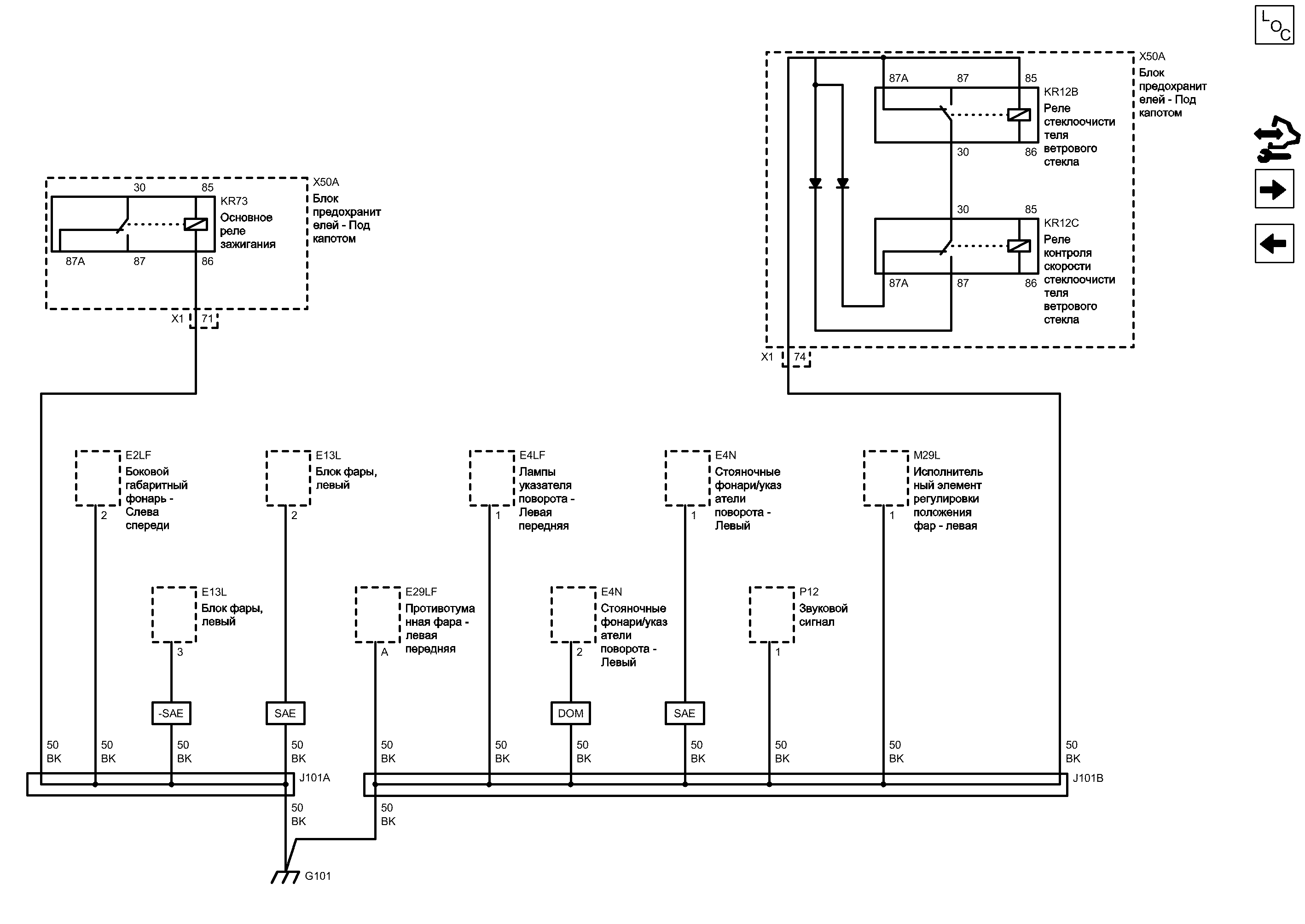
Компоненты
e2lfБоковой габаритный фонарь - Слева спередиkr12cРеле контроля скорости стеклоочистителя ветрового стекла
e4lfЛампы указателя поворота - Левая передняяkr73Основное реле зажигания
e4nСтояночные фонари/указатели поворота - Левыйm29lИсполнительный элемент регулировки положения фар - левая
e13lБлок фары, левыйp12Звуковой сигнал
e29lfПротивотуманная фара - левая передняяx50aБлок предохранителей - Под капотом
kr12bРеле стеклоочистителя ветрового стекла
Разъемы
j101aСоединение с виртуальной "землей"x50a (x1)Блок предохранителей - Под капотом x1
j101bСоединение с виртуальной "землей"
Точки соединения с массой
g101Моторный отсек - Передняя часть, слева
Сокращения
domСТРАНА - КОРЕЯ-saeСТРАНЫ - КРОМЕ СЕВЕРНОЙ АМЕРИКИ
saeСТРАНЫ - СЕВЕРНАЯ АМЕРИКА
Цветовые коды
bkЧерный
1
G101 Моторный отсек - Передняя часть, слева

Расположение деталей (узлов) Трехмерная схема жгутов БЕЗ КОЖАНОЙ ОТДЕЛКИ СИДЕНЬЯ (TBD1-GSV)(GMDAT)
Расположение деталей (узлов) Трехмерная схема жгутов ЕВРОПА
Внешний вид разъема и ремонт
Масса
BK Черный
1
BK Черный
A
BK Черный
2
3
2
СТРАНЫ - СЕВЕРНАЯ АМЕРИКА
BK Черный
СТРАНЫ - КРОМЕ СЕВЕРНОЙ АМЕРИКИ
BK Черный
BK Черный
87A
87
30
86
85
2
1
1
СТРАНА - КОРЕЯ
BK Черный
СТРАНЫ - СЕВЕРНАЯ АМЕРИКА
BK Черный
71
X1 Блок предохранителей - Под капотом X1

Расположение деталей (узлов) Трехмерная схема жгутов
Внешний вид разъема и ремонт
30
87
30
87A
86
86
85
87
87A
85
74
BK Черный
J101B Соединение с виртуальной "землей"
J101A Соединение с виртуальной "землей"
X50A Блок предохранителей - Под капотом

Расположение деталей (узлов) Трехмерная схема жгутов
Электрическая схема Передний стеклоочиститель Контакт 74
KR12B Реле стеклоочистителя ветрового стекла

Электрическая схема Передний стеклоочиститель Контакт 30
Электрическая схема Передний стеклоочиститель Контакт 85
Электрическая схема Передний стеклоочиститель Контакт 86
Электрическая схема Передний стеклоочиститель Контакт 87
Электрическая схема Передний стеклоочиститель Контакт 87A
KR12C Реле контроля скорости стеклоочистителя ветрового стекла

Электрическая схема Передний стеклоочиститель Контакт 30
Электрическая схема Передний стеклоочиститель Контакт 85
Электрическая схема Передний стеклоочиститель Контакт 86
Электрическая схема Передний стеклоочиститель Контакт 87
Электрическая схема Передний стеклоочиститель Контакт 87A
M29L Исполнительный элемент регулировки положения фар - левая

Расположение деталей (узлов) Трехмерная схема жгутов БЕЗ КОЖАНОЙ ОТДЕЛКИ СИДЕНЬЯ (TBD1-GSV)(GMDAT)
Расположение деталей (узлов) Трехмерная схема жгутов ЕВРОПА
Внешний вид разъема и ремонт ЕВРОПА
Электрическая схема Регулировка положения фар Контакт 1
Электрическая схема Стояночные огни (1 из 2) Контакт 1
E4N Стояночные фонари/указатели поворота - Левый

Расположение деталей (узлов) Трехмерная схема жгутов БЕЗ КОЖАНОЙ ОТДЕЛКИ СИДЕНЬЯ (TBD1-GSV)(GMDAT)
Внешний вид разъема и ремонт СТРАНА - КОРЕЯ
Электрическая схема Стояночные огни (1 из 2) Контакт 1
Электрическая схема Указатели поворота Контакт 1 - 1
Электрическая схема Указатели поворота Контакт 1 - 2
E4N Стояночные фонари/указатели поворота - Левый

Расположение деталей (узлов) Трехмерная схема жгутов БЕЗ КОЖАНОЙ ОТДЕЛКИ СИДЕНЬЯ (TBD1-GSV)(GMDAT)
Внешний вид разъема и ремонт СТРАНА - КОРЕЯ
Электрическая схема Стояночные огни (1 из 2) Контакт 2 - 1
Электрическая схема Стояночные огни (1 из 2) Контакт 2 - 2
Электрическая схема Указатели поворота Контакт 2
KR73 Основное реле зажигания

Электрическая схема Регулировка положения фар Контакт 30
Электрическая схема Регулировка положения фар Контакт 85
Электрическая схема Регулировка положения фар Контакт 86
Электрическая схема Регулировка положения фар Контакт 87
Электрическая схема Внутреннее зеркало заднего вида Контакт 30
Электрическая схема Внутреннее зеркало заднего вида Контакт 85
Электрическая схема Внутреннее зеркало заднего вида Контакт 86
Электрическая схема Внутреннее зеркало заднего вида Контакт 87
Электрическая схема Внутреннее зеркало заднего вида Контакт 87A
Электрическая схема Выключатель зажигания БЕЗ УПРАВЛЕНИЯ ЗАМКОМ ВХОДА, ДИСТАНЦИОННЫЙ ВХОД, РАСШИРЕННЫЙ ДИАПАЗОН, ПАССИВНЫЙ ВХОД Контакт 30
Электрическая схема Выключатель зажигания БЕЗ УПРАВЛЕНИЯ ЗАМКОМ ВХОДА, ДИСТАНЦИОННЫЙ ВХОД, РАСШИРЕННЫЙ ДИАПАЗОН, ПАССИВНЫЙ ВХОД Контакт 85
Электрическая схема Выключатель зажигания БЕЗ УПРАВЛЕНИЯ ЗАМКОМ ВХОДА, ДИСТАНЦИОННЫЙ ВХОД, РАСШИРЕННЫЙ ДИАПАЗОН, ПАССИВНЫЙ ВХОД Контакт 86
Электрическая схема Выключатель зажигания БЕЗ УПРАВЛЕНИЯ ЗАМКОМ ВХОДА, ДИСТАНЦИОННЫЙ ВХОД, РАСШИРЕННЫЙ ДИАПАЗОН, ПАССИВНЫЙ ВХОД Контакт 87
Электрическая схема Выключатель зажигания БЕЗ УПРАВЛЕНИЯ ЗАМКОМ ВХОДА, ДИСТАНЦИОННЫЙ ВХОД, РАСШИРЕННЫЙ ДИАПАЗОН, ПАССИВНЫЙ ВХОД Контакт 87A
Электрическая схема Выключатель зажигания УПРАВЛЕНИЕ ЗАМКОМ ВХОДА, ДИСТАНЦИОННЫЙ ВХОД, РАСШИРЕННЫЙ ДИАПАЗОН, ПАССИВНЫЙ ВХОД Контакт 30
Электрическая схема Выключатель зажигания УПРАВЛЕНИЕ ЗАМКОМ ВХОДА, ДИСТАНЦИОННЫЙ ВХОД, РАСШИРЕННЫЙ ДИАПАЗОН, ПАССИВНЫЙ ВХОД Контакт 85
Электрическая схема Выключатель зажигания УПРАВЛЕНИЕ ЗАМКОМ ВХОДА, ДИСТАНЦИОННЫЙ ВХОД, РАСШИРЕННЫЙ ДИАПАЗОН, ПАССИВНЫЙ ВХОД Контакт 86
Электрическая схема Выключатель зажигания УПРАВЛЕНИЕ ЗАМКОМ ВХОДА, ДИСТАНЦИОННЫЙ ВХОД, РАСШИРЕННЫЙ ДИАПАЗОН, ПАССИВНЫЙ ВХОД Контакт 87
Электрическая схема Выключатель зажигания УПРАВЛЕНИЕ ЗАМКОМ ВХОДА, ДИСТАНЦИОННЫЙ ВХОД, РАСШИРЕННЫЙ ДИАПАЗОН, ПАССИВНЫЙ ВХОД Контакт 87A
X50A Блок предохранителей - Под капотом

Расположение деталей (узлов) Трехмерная схема жгутов
Электрическая схема Регулировка положения фар Контакт 71
Электрическая схема Внутреннее зеркало заднего вида Контакт 71
E2LF Боковой габаритный фонарь - Слева спереди

Расположение деталей (узлов) Трехмерная схема жгутов
Внешний вид разъема и ремонт СТРАНЫ - СЕВЕРНАЯ АМЕРИКА
Электрическая схема Стояночные огни (1 из 2) Контакт 2
E29LF Противотуманная фара - левая передняя

Расположение деталей (узлов) Трехмерная схема жгутов
Внешний вид разъема и ремонт ПРОТИВОТУМАННАЯ ФАРА
Электрическая схема Передние противотуманные фары Контакт A
P12 Звуковой сигнал

Расположение деталей (узлов) Трехмерная схема жгутов
Электрическая схема Звуковой сигнал Контакт 1
E4LF Лампы указателя поворота - Левая передняя

Расположение деталей (узлов) Трехмерная схема жгутов ЕВРОПА
Внешний вид разъема и ремонт ЕВРОПА
Электрическая схема Указатели поворота Контакт 1
E13L Блок фары, левый

Расположение деталей (узлов) Трехмерная схема жгутов БЕЗ КОЖАНОЙ ОТДЕЛКИ СИДЕНЬЯ (TBD1-GSV)(GMDAT)
Расположение деталей (узлов) Трехмерная схема жгутов ЕВРОПА
Внешний вид разъема и ремонт СТРАНЫ - СЕВЕРНАЯ АМЕРИКА
Внешний вид разъема и ремонт СТРАНЫ - КРОМЕ СЕВЕРНОЙ АМЕРИКИ
Электрическая схема Фары СТРАНЫ - СЕВЕРНАЯ АМЕРИКА Контакт 2
Электрическая схема Фары СТРАНЫ - КРОМЕ СЕВЕРНОЙ АМЕРИКИ Контакт 2
E13L Блок фары, левый

Расположение деталей (узлов) Трехмерная схема жгутов БЕЗ КОЖАНОЙ ОТДЕЛКИ СИДЕНЬЯ (TBD1-GSV)(GMDAT)
Расположение деталей (узлов) Трехмерная схема жгутов ЕВРОПА
Внешний вид разъема и ремонт СТРАНЫ - СЕВЕРНАЯ АМЕРИКА
Внешний вид разъема и ремонт СТРАНЫ - КРОМЕ СЕВЕРНОЙ АМЕРИКИ
Электрическая схема Фары СТРАНЫ - СЕВЕРНАЯ АМЕРИКА Контакт 3
Электрическая схема Фары СТРАНЫ - КРОМЕ СЕВЕРНОЙ АМЕРИКИ Контакт 3
X1 Блок предохранителей - Под капотом X1

Расположение деталей (узлов) Трехмерная схема жгутов
Внешний вид разъема и ремонт
BK Черный
BK Черный
BK Черный
BK Черный
G103 и G105

G103 и G105
Справочные данные по контроллерам

Справочные данные по контроллерам
G104

G104
Перечень основных электрических компонентов

Перечень основных электрических компонентов
   


https://vnx.su/ 🛠 Руководства по ремонту и эксплуатации для автомобилей

Поиск по сайту

Остались вопросы или пожелания? Пишите на почту: support@vnx.su

Карта Сайта