Cruze
   
GMDE Start Page Load static TOC Load dynamic TOC Help?
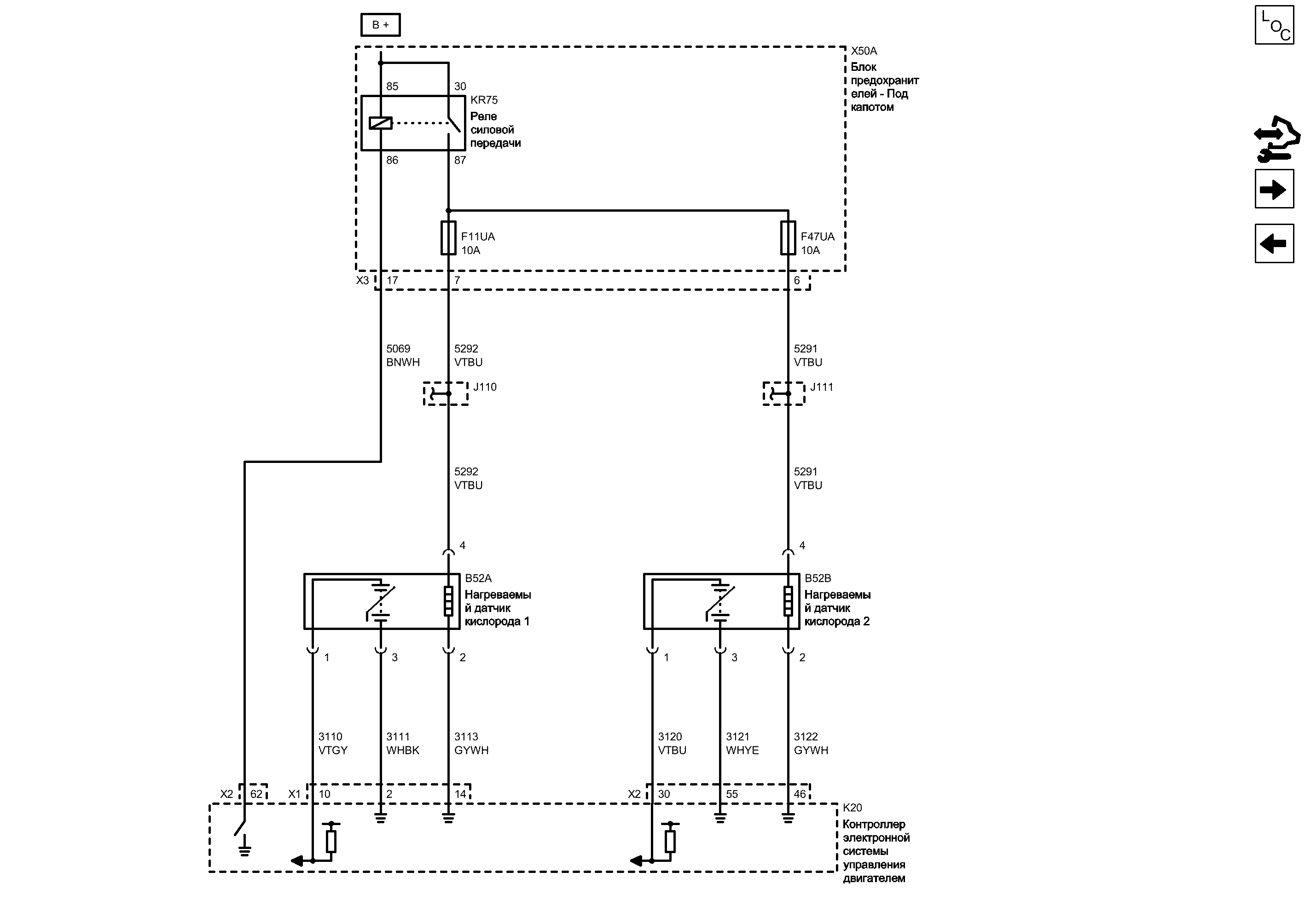
Датчики данных двигателя - кислородные датчики


            |                         |            
2203083RU.png


Display graphic

Display graphic

Компоненты
b52aНагреваемый датчик кислорода 1k20Контроллер электронной системы управления двигателем
b52bНагреваемый датчик кислорода 2kr75Реле силовой передачи
f11uaПредохранительx50aБлок предохранителей - Под капотом
f47uaПредохранитель
Разъемы
j110Жгут проводов двигателяk20 (x2)Контроллер электронной системы управления двигателем x2
j111Жгут проводов двигателяx50a (x3)Блок предохранителей - Под капотом x3
k20 (x1)Контроллер электронной системы управления двигателем x1
Сокращения
b +Напряжение аккумуляторной батареи
Цветовые коды
bnwhКоричневый\БелыйvtgyФиолетовый-Серый
gywhСерый-БелыйwhbkБелый-Черный
vtbuФиолетовый-СинийwhyeБелый-Желтый
46
55
30
14
2
X1 Контроллер электронной системы управления двигателем X1

Расположение деталей (узлов) Трехмерная схема жгутов ГАЗОВЫЙ ДВИГАТЕЛЬ, 4 ЦИЛ., 1.6 Л, MFI, DOHC, 80 кВт (GMDAT)
Внешний вид разъема и ремонт ГАЗОВЫЙ ДВИГАТЕЛЬ, 4 ЦИЛ., 1.6 Л, MFI, DOHC, 80 кВт (GMDAT)
10
85
86
87
30
62
Низкий сигнал от нагреваемого датчика кислорода: блок 1, датчик (2)
WHYE Белый-Желтый
Высокий сигнал от нагреваемого датчика кислорода: блок 1, датчик (2)
VTBU Фиолетовый-Синий
Силовая передача - главное реле, защищенное плавким предохранителем (3)
VTBU Фиолетовый-Синий
Низкий сигнал от нагреваемого датчика кислорода: блок 1, датчик (1)
WHBK Белый-Черный
Нижний регулятор нагревателя нагреваемого датчика кислорода: блок 1, датчик (1)
GYWH Серый-Белый
Высокий сигнал от нагреваемого датчика кислорода: блок 1, датчик (1)
VTGY Фиолетовый-Серый
Нижний регулятор нагревателя нагреваемого датчика кислорода: блок 1, датчик (2)
GYWH Серый-Белый
VTBU Фиолетовый-Синий
X2 Контроллер электронной системы управления двигателем X2

Расположение деталей (узлов) Трехмерная схема жгутов ГАЗОВЫЙ ДВИГАТЕЛЬ, 4 ЦИЛ., 1.6 Л, MFI, DOHC, 80 кВт (GMDAT)
Внешний вид разъема и ремонт ГАЗОВЫЙ ДВИГАТЕЛЬ, 4 ЦИЛ., 1.6 Л, MFI, DOHC, 80 кВт (GMDAT)
7
F11UA Предохранитель

Электрическая схема Дерево Предохранители F11UA, 59UA и F62UA
Электрическая схема Питание Шина B+ UEC (2 из 6)
17
X3 Блок предохранителей - Под капотом X3

Внешний вид разъема и ремонт
Доступен вид только с одним разъемом
Управление катушкой главного реле двигателя
BNWH Коричневый\Белый
Силовая передача - главное реле, защищенное плавким предохранителем (2)
VTBU Фиолетовый-Синий
F47UA Предохранитель

Электрическая схема Дерево Предохранитель F47UA
Электрическая схема Питание Шина B+ UEC (2 из 6)
6
X2 Контроллер электронной системы управления двигателем X2

Расположение деталей (узлов) Трехмерная схема жгутов ГАЗОВЫЙ ДВИГАТЕЛЬ, 4 ЦИЛ., 1.6 Л, MFI, DOHC, 80 кВт (GMDAT)
Внешний вид разъема и ремонт ГАЗОВЫЙ ДВИГАТЕЛЬ, 4 ЦИЛ., 1.6 Л, MFI, DOHC, 80 кВт (GMDAT)
VTBU Фиолетовый-Синий
2
4
1
3
4
2
3
1
Напряжение аккумуляторной батареи
J111 Жгут проводов двигателя

Электрическая схема Средства управления зажиганием - датчики зажигания ГАЗОВЫЙ ДВИГАТЕЛЬ, 4 ЦИЛ., 1.6 Л, MFI, DOHC, 80 кВт (GMDAT)
Электрическая схема Датчики данных двигателя - исполнительные элементы ГАЗОВЫЙ ДВИГАТЕЛЬ, 4 ЦИЛ., 1.6 Л, MFI, DOHC, 80 кВт (GMDAT)
J110 Жгут проводов двигателя

Электрическая схема Средства управления зажиганием - система зажигания ГАЗОВЫЙ ДВИГАТЕЛЬ, 4 ЦИЛ., 1.6 Л, MFI, DOHC, 80 кВт (GMDAT)
Электрическая схема Датчики данных двигателя - исполнительные элементы ГАЗОВЫЙ ДВИГАТЕЛЬ, 4 ЦИЛ., 1.6 Л, MFI, DOHC, 80 кВт (GMDAT)
B52B Нагреваемый датчик кислорода 2

Внешний вид разъема и ремонт
Доступен вид только с одним разъемом
X50A Блок предохранителей - Под капотом

Расположение деталей (узлов) Трехмерная схема жгутов
KR75 Реле силовой передачи
B52A Нагреваемый датчик кислорода 1

Внешний вид разъема и ремонт
Доступен вид только с одним разъемом
K20 Контроллер электронной системы управления двигателем

Расположение деталей (узлов) Трехмерная схема жгутов ГАЗОВЫЙ ДВИГАТЕЛЬ, 4 ЦИЛ., 1.6 Л, MFI, DOHC, 80 кВт (GMDAT)
Имеется только одно место для компонента
Управление
Слабый опорный сигнал
Слабый опорный сигнал
Сигнал
Слабый опорный сигнал
Сигнал
Слабый опорный сигнал
Датчики данных двигателя - средства управления дроссельной заслонкой

Датчики данных двигателя - средства управления дроссельной заслонкой
Справочные данные по контроллерам

Справочные данные по контроллерам
Средства управления топливом - топливный насос и форсунки

Средства управления топливом - топливный насос и форсунки
Перечень основных электрических компонентов

Перечень основных электрических компонентов
   


https://vnx.su/ 🛠 Руководства по ремонту и эксплуатации для автомобилей

Поиск по сайту

Остались вопросы или пожелания? Пишите на почту: support@vnx.su

Карта Сайта