Cruze
   
GMDE Start Page Load static TOC Load dynamic TOC Help?
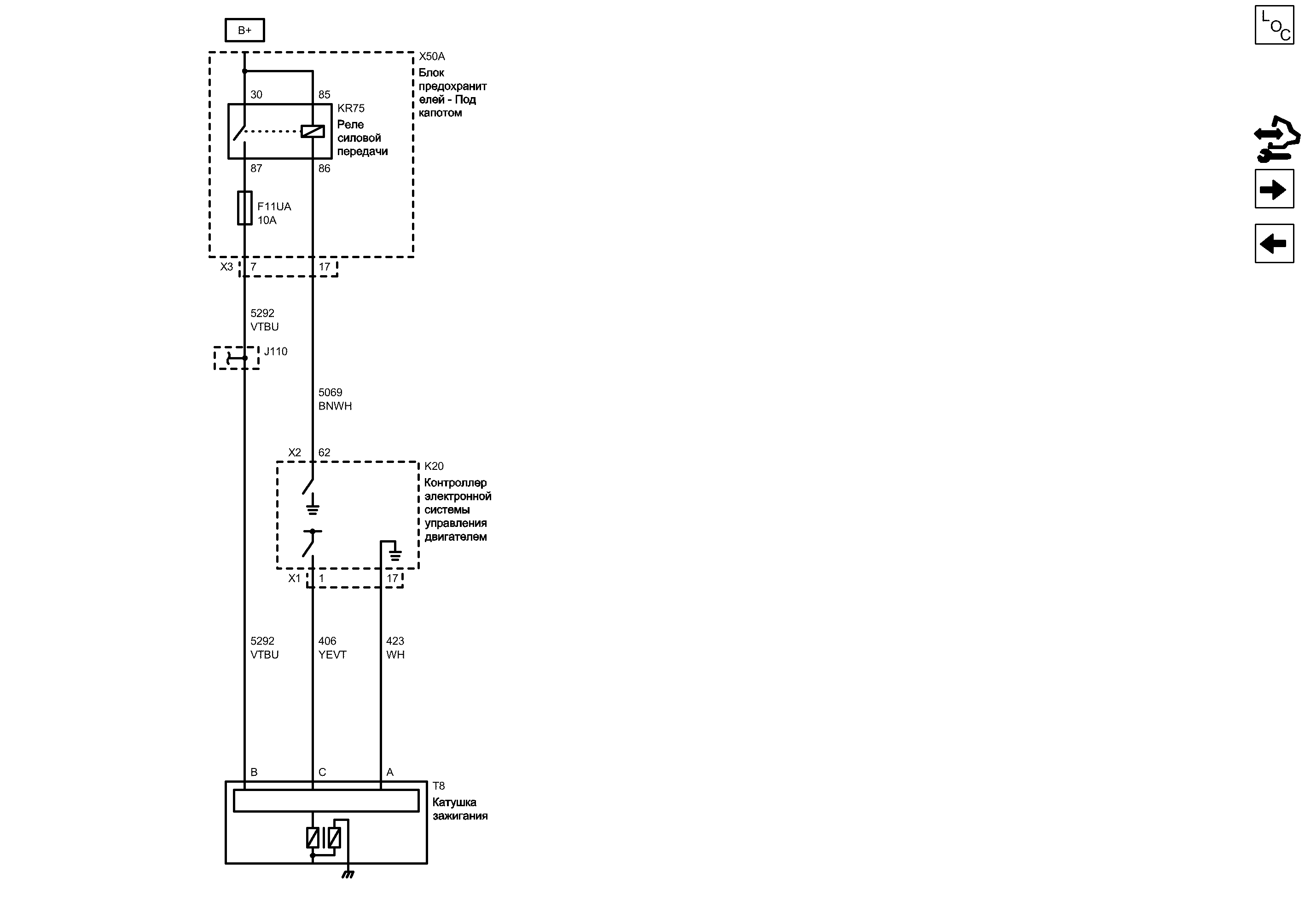
Средства управления зажиганием - система зажигания


            |                         |            
2203088RU.png


Display graphic

Display graphic

Компоненты
f11uaПредохранительt8Катушка зажигания
k20Контроллер электронной системы управления двигателемx50aБлок предохранителей - Под капотом
kr75Реле силовой передачи
Разъемы
j110Жгут проводов двигателяk20 (x2)Контроллер электронной системы управления двигателем x2
k20 (x1)Контроллер электронной системы управления двигателем x1x50a (x3)Блок предохранителей - Под капотом x3
Сокращения
b+Вывод b+
Цветовые коды
bnwhКоричневый\БелыйwhБелый
vtbuФиолетовый-СинийyevtЖелтый-Фиолетовый
A
C
B
Силовая передача - главное реле, защищенное плавким предохранителем (3)
VTBU Фиолетовый-Синий
X1 Контроллер электронной системы управления двигателем X1

Расположение деталей (узлов) Трехмерная схема жгутов ГАЗОВЫЙ ДВИГАТЕЛЬ, 4 ЦИЛ., 1.6 Л, MFI, DOHC, 80 кВт (GMDAT)
Внешний вид разъема и ремонт ГАЗОВЫЙ ДВИГАТЕЛЬ, 4 ЦИЛ., 1.6 Л, MFI, DOHC, 80 кВт (GMDAT)
Регулировка фазы опережения зажигания (1)
WH Белый
17
Регулировка фазы опережения зажигания (2)
YEVT Желтый-Фиолетовый
1
X2 Контроллер электронной системы управления двигателем X2

Расположение деталей (узлов) Трехмерная схема жгутов ГАЗОВЫЙ ДВИГАТЕЛЬ, 4 ЦИЛ., 1.6 Л, MFI, DOHC, 80 кВт (GMDAT)
Внешний вид разъема и ремонт ГАЗОВЫЙ ДВИГАТЕЛЬ, 4 ЦИЛ., 1.6 Л, MFI, DOHC, 80 кВт (GMDAT)
62
Управление катушкой главного реле двигателя
BNWH Коричневый\Белый
17
X3 Блок предохранителей - Под капотом X3

Внешний вид разъема и ремонт
Доступен вид только с одним разъемом
7
F11UA Предохранитель

Электрическая схема Дерево Предохранители F11UA, 59UA и F62UA
Электрическая схема Питание Шина B+ UEC (2 из 6)
Вывод B+
VTBU Фиолетовый-Синий
J110 Жгут проводов двигателя

Электрическая схема Датчики данных двигателя - исполнительные элементы ГАЗОВЫЙ ДВИГАТЕЛЬ, 4 ЦИЛ., 1.6 Л, MFI, DOHC, 80 кВт (GMDAT)
Электрическая схема Датчики данных двигателя - кислородные датчики ГАЗОВЫЙ ДВИГАТЕЛЬ, 4 ЦИЛ., 1.6 Л, MFI, DOHC, 80 кВт (GMDAT)
87
30
86
85
KR75 Реле силовой передачи
X50A Блок предохранителей - Под капотом

Расположение деталей (узлов) Трехмерная схема жгутов
T8 Катушка зажигания

Расположение деталей (узлов) Трехмерная схема жгутов ГАЗОВЫЙ ДВИГАТЕЛЬ, 4 ЦИЛ., 1.6 Л, MFI, DOHC, 80 кВт (GMDAT)
Внешний вид разъема и ремонт ГАЗОВЫЙ ДВИГАТЕЛЬ, 4 ЦИЛ., 1.6 Л, MFI, DOHC, 80 кВт (GMDAT)
K20 Контроллер электронной системы управления двигателем

Расположение деталей (узлов) Трехмерная схема жгутов ГАЗОВЫЙ ДВИГАТЕЛЬ, 4 ЦИЛ., 1.6 Л, MFI, DOHC, 80 кВт (GMDAT)
Имеется только одно место для компонента
Управление
Управление
Слабый опорный сигнал
Средства управления зажиганием - датчики зажигания

Средства управления зажиганием - датчики зажигания
Справочные данные по контроллерам

Справочные данные по контроллерам
Датчики данных двигателя - исполнительные элементы

Датчики данных двигателя - исполнительные элементы
Перечень основных электрических компонентов

Перечень основных электрических компонентов
   


https://vnx.su/ 🛠 Руководства по ремонту и эксплуатации для автомобилей

Поиск по сайту

Остались вопросы или пожелания? Пишите на почту: support@vnx.su

Карта Сайта