Cruze
   
GMDE Start Page Load static TOC Load dynamic TOC Help?
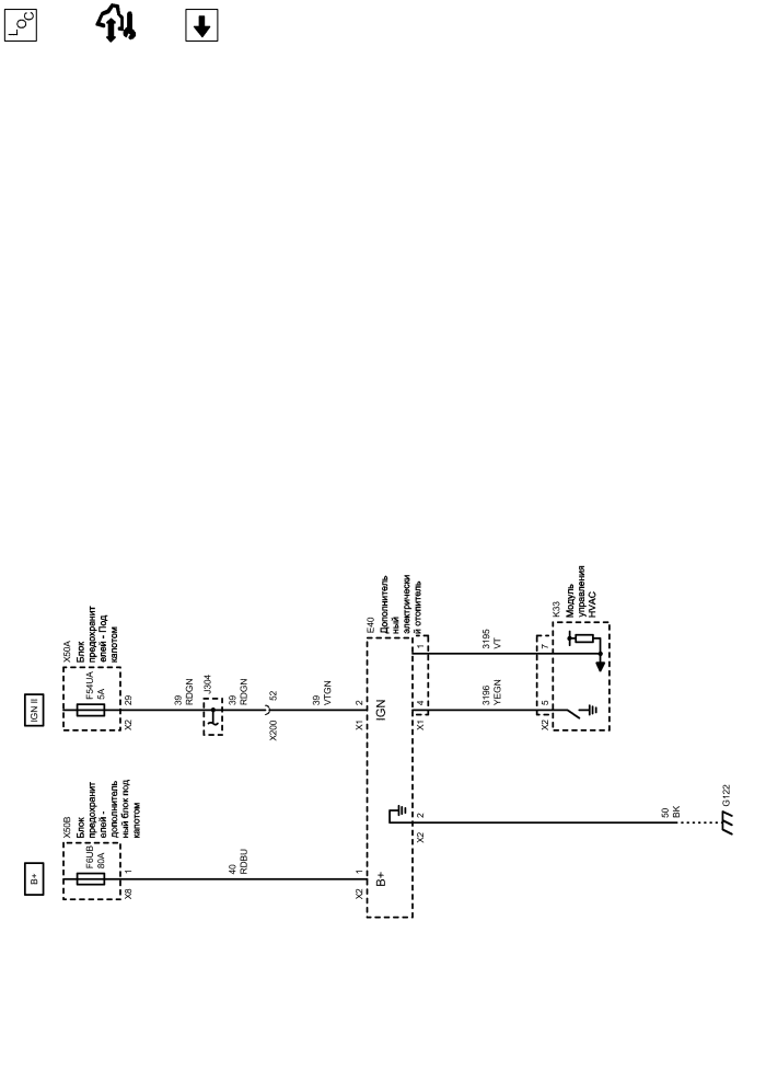
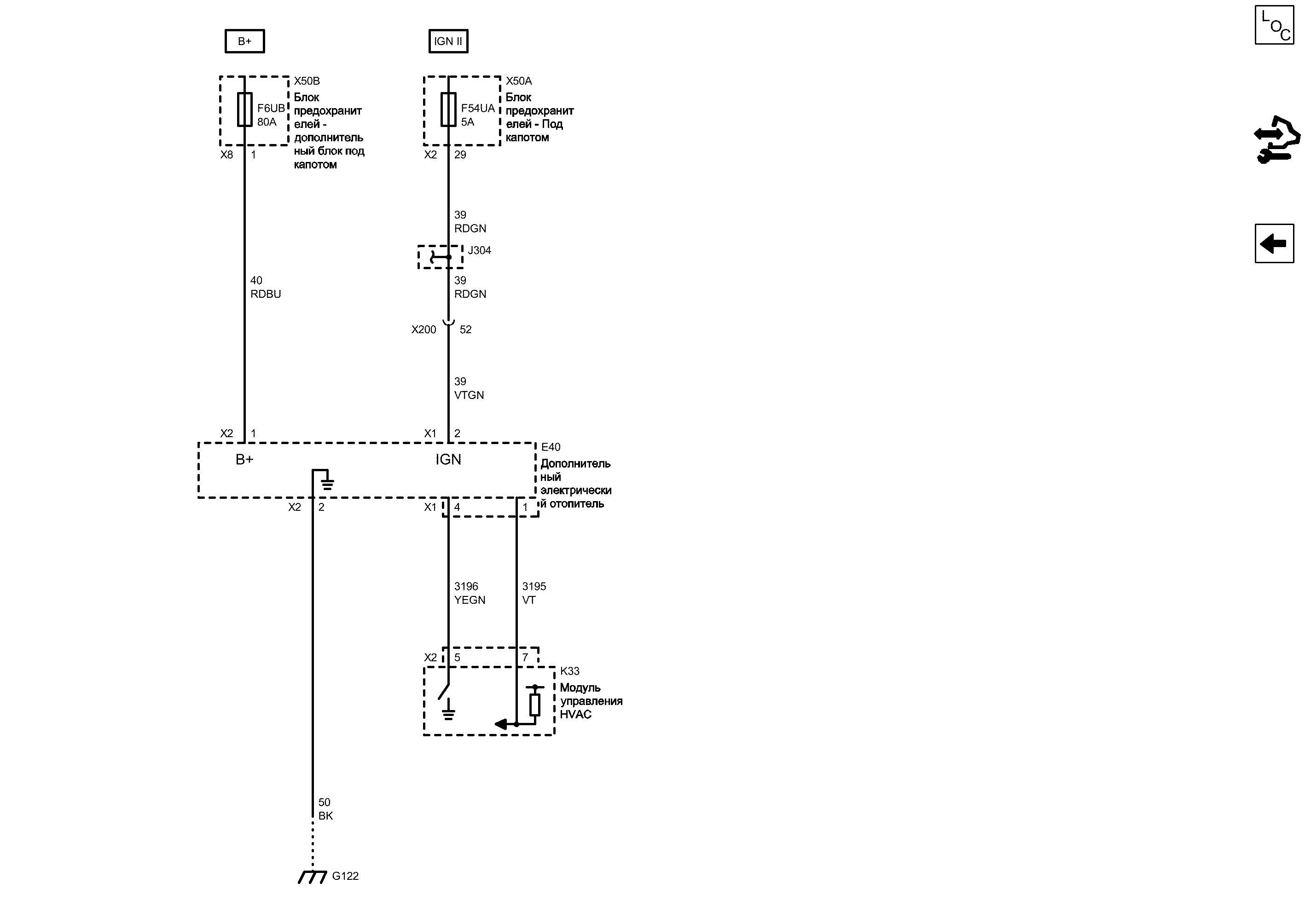
Дополнительный обогреватель


            |                         |            
2203029RU.png


Display graphic

Display graphic

Компоненты
e40Дополнительный электрический отопительk33Модуль управления hvac
f6ubПредохранительx50aБлок предохранителей - Под капотом
f54uaПредохранительx50bБлок предохранителей - дополнительный блок под капотом
Разъемы
e40 (x1)Дополнительный электрический отопитель x1x50a (x2)Блок предохранителей - Под капотом x2
e40 (x2)Дополнительный электрический отопитель x2x50b (x8)Блок предохранителей - дополнительный блок под капотом x8
j304Жгут проводов кузоваx200Жгут проводов кузова и жгут проводов панели приборов
k33 (x2)Модуль управления hvac x2
Точки соединения с массой
g122Моторный отсек - Передняя часть, слева
Сокращения
b+Вывод b+ign iiВыключатель зажигания - движение
Цветовые коды
bkЧерныйvtФиолетовый
rdbuКрасный-СинийvtgnФиолетовый-Зеленый
rdgnКрасный-ЗеленыйyegnЖелтый-Зеленый
1
Положительное напряжение аккумуляторной батареи
RDBU Красный-Синий
1
G122 Моторный отсек - Передняя часть, слева

Расположение деталей (узлов) Трехмерная схема жгутов
Электрическая схема G100, G102, G121, G122, G204 и G400
Масса
BK Черный
2
F6UB Предохранитель

Электрическая схема Дерево Предохранители F24UA, F32UA, F35UA, F55UA, F69UA и F70UA
Электрическая схема Питание Шина B+ UEC (1 из 6)
X8 Блок предохранителей - дополнительный блок под капотом X8

Внешний вид разъема и ремонт
Вывод B+
5
X2 Модуль управления HVAC X2

Внешний вид разъема и ремонт
Сигнал статуса дополнительного обогревателя
YEGN Желтый-Зеленый
4
Слабый опорный сигнал
7
Управление дополнительным обогревателем
VT Фиолетовый
1
X1 Дополнительный электрический отопитель X1

Внешний вид разъема и ремонт
X2 Дополнительный электрический отопитель X2

Внешний вид разъема и ремонт
X2 Дополнительный электрический отопитель X2

Внешний вид разъема и ремонт
X1 Дополнительный электрический отопитель X1

Внешний вид разъема и ремонт
2
X200 Жгут проводов кузова и жгут проводов панели приборов

Расположение деталей (узлов) Трехмерная схема жгутов
Внешний вид разъема и ремонт Вилка
Внешний вид разъема и ремонт Гнездо
52
X2 Блок предохранителей - Под капотом X2

Внешний вид разъема и ремонт
29
F54UA Предохранитель

Электрическая схема Дерево Предохранители F5UA, F54UA и F57UA
Электрическая схема Питание Шина B+ UEC (1 из 6)
Выключатель зажигания - движение
J304 Жгут проводов кузова

Электрическая схема Регулировка положения фар
Электрическая схема Питание, масса, последовательные данные и органы управления вентилятором - 1
Электрическая схема Питание, масса, последовательные данные и органы управления вентилятором - 2
Напряжение зажигания
RDGN Красный-Зеленый
Зажигание
Управление
Сигнал
X50A Блок предохранителей - Под капотом

Расположение деталей (узлов) Трехмерная схема жгутов
K33 Модуль управления HVAC

Расположение деталей (узлов) Трехмерная схема жгутов ПЕРЕДНИЙ ВОЗДУШНЫЙ КОНДИЦИОНЕР С СИСТЕМОЙ HVAC, АВТОМ., ЭЛЕКТРОННЫЕ ОРГАНЫ УПРАВЛЕНИЯ
Имеется только одно место для компонента
E40 Дополнительный электрический отопитель
X50B Блок предохранителей - дополнительный блок под капотом
B+ (положительное напряжение аккумуляторной батареи)
RDGN Красный-Зеленый
VTGN Фиолетовый-Зеленый
Датчик качества воздуха

Датчик качества воздуха
Справочные данные по контроллерам

Справочные данные по контроллерам
Перечень основных электрических компонентов

Перечень основных электрических компонентов
   


https://vnx.su/ 🛠 Руководства по ремонту и эксплуатации для автомобилей

Поиск по сайту

Остались вопросы или пожелания? Пишите на почту: support@vnx.su

Карта Сайта