Cruze
   
GMDE Start Page Load static TOC Load dynamic TOC Help?
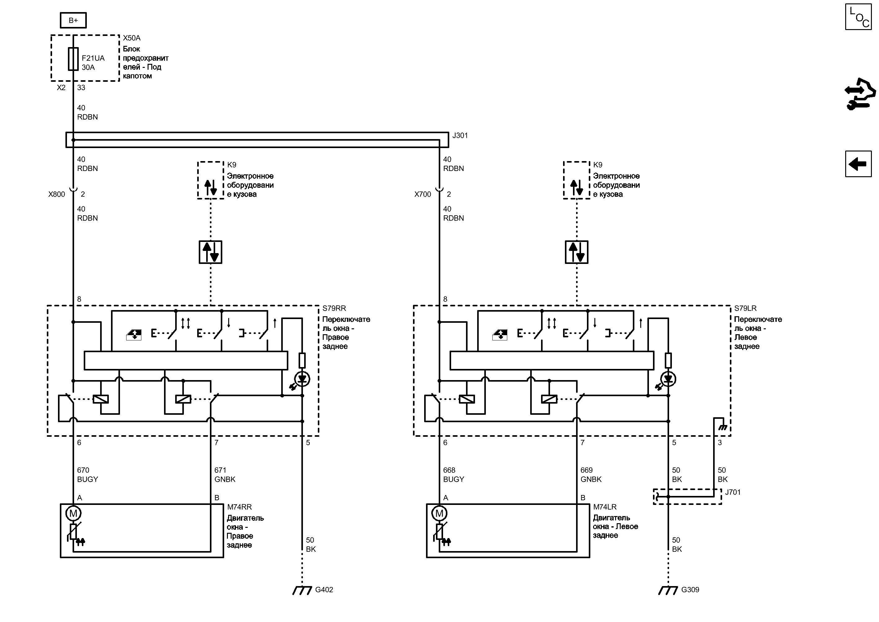
Стеклоподъемники задних дверей (СТЕКЛО С МЕХАНИЧЕСКИМ ПРИВОДОМ - ЗАДНИЕ ДВЕРИ - СРОЧНО ВНИЗ)


            |                         |            
2202804RU.png


Display graphic

Display graphic

Компоненты
f21uaПредохранительs79lrПереключатель окна - Левое заднее
k9Электронное оборудование кузоваs79rrПереключатель окна - Правое заднее
m74lrДвигатель окна - Левое заднееx50aБлок предохранителей - Под капотом
m74rrДвигатель окна - Правое заднее
Разъемы
j301Жгут проводов кузоваx700Жгут проводов кузова и жгут проводов левой задней двери
j701Жгут проводов левой задней двериx800Жгут проводов кузова и жгут проводов правой задней двери
x50a (x2)Блок предохранителей - Под капотом x2
Точки соединения с массой
g309Задняя панель, леваяg402Задняя панель, правая
Сокращения
b+Вывод b+fsdcФункциональный обмен последовательными данными
Цветовые коды
bkЧерныйgnbkЗеленый-Черный
bugyСиний-СерыйrdbnКрасный-Коричневый
X800 Жгут проводов кузова и жгут проводов правой задней двери

Расположение деталей (узлов) Трехмерная схема жгутов
Внешний вид разъема и ремонт Вилка
Внешний вид разъема и ремонт Гнездо
2
Положительное напряжение аккумуляторной батареи
RDBN Красный-Коричневый
8
RDBN Красный-Коричневый
33
X2 Блок предохранителей - Под капотом X2

Внешний вид разъема и ремонт
F21UA Предохранитель

Электрическая схема Дерево Предохранители F21UA, F27UA, F30UA, F37UA, F38UA, F45UA, F48UA и F51UA
Электрическая схема Питание Шина B+ UEC (4 из 6)
Вывод B+
RDBN Красный-Коричневый
3
G309 Задняя панель, левая

Расположение деталей (узлов) Трехмерная схема жгутов
Внешний вид разъема и ремонт
Электрическая схема G309
Масса
BK Черный
7
B
Управление электродвигателем левого заднего стеклоподъемника - "Вниз"
GNBK Зеленый-Черный
Управление электродвигателем левого заднего стеклоподъемника - "Вверх"
BUGY Синий-Серый
A
6
RDBN Красный-Коричневый
J301 Жгут проводов кузова
8
RDBN Красный-Коричневый
X700 Жгут проводов кузова и жгут проводов левой задней двери

Расположение деталей (узлов) Трехмерная схема жгутов
Внешний вид разъема и ремонт Вилка
Внешний вид разъема и ремонт Гнездо
2
5
BK Черный
J701 Жгут проводов левой задней двери
BK Черный
Масса
6
7
5
Масса
BK Черный
G402 Задняя панель, правая

Расположение деталей (узлов) Трехмерная схема жгутов СТРАНЫ - КРОМЕ СЕВЕРНОЙ АМЕРИКИ
Внешний вид разъема и ремонт
Электрическая схема G402
A
Управление электродвигателем правого заднего стеклоподъемника - "Вверх"
BUGY Синий-Серый
B
Управление электродвигателем правого заднего стеклоподъемника - "Вниз"
GNBK Зеленый-Черный
Функциональный обмен последовательными данными
Функциональный обмен последовательными данными
K9 Электронное оборудование кузова

Расположение деталей (узлов) Трехмерная схема жгутов
K9 Электронное оборудование кузова

Расположение деталей (узлов) Трехмерная схема жгутов
M74RR Двигатель окна - Правое заднее

Расположение деталей (узлов) Трехмерная схема жгутов
Внешний вид разъема и ремонт
S79RR Переключатель окна - Правое заднее

Расположение деталей (узлов) Трехмерная схема жгутов
Внешний вид разъема и ремонт
S79LR Переключатель окна - Левое заднее

Расположение деталей (узлов) Трехмерная схема жгутов
Внешний вид разъема и ремонт
M74LR Двигатель окна - Левое заднее

Расположение деталей (узлов) Трехмерная схема жгутов
Внешний вид разъема и ремонт
X50A Блок предохранителей - Под капотом

Расположение деталей (узлов) Трехмерная схема жгутов
Последовательные данные
Последовательные данные
Стеклоподъемники - дверь пассажира

Стеклоподъемники - дверь пассажира
Справочные данные по контроллерам

Справочные данные по контроллерам
Перечень основных электрических компонентов

Перечень основных электрических компонентов
   


https://vnx.su/ 🛠 Руководства по ремонту и эксплуатации для автомобилей

Поиск по сайту

Остались вопросы или пожелания? Пишите на почту: support@vnx.su

Карта Сайта