Cruze
   
GMDE Start Page Load static TOC Load dynamic TOC Help?
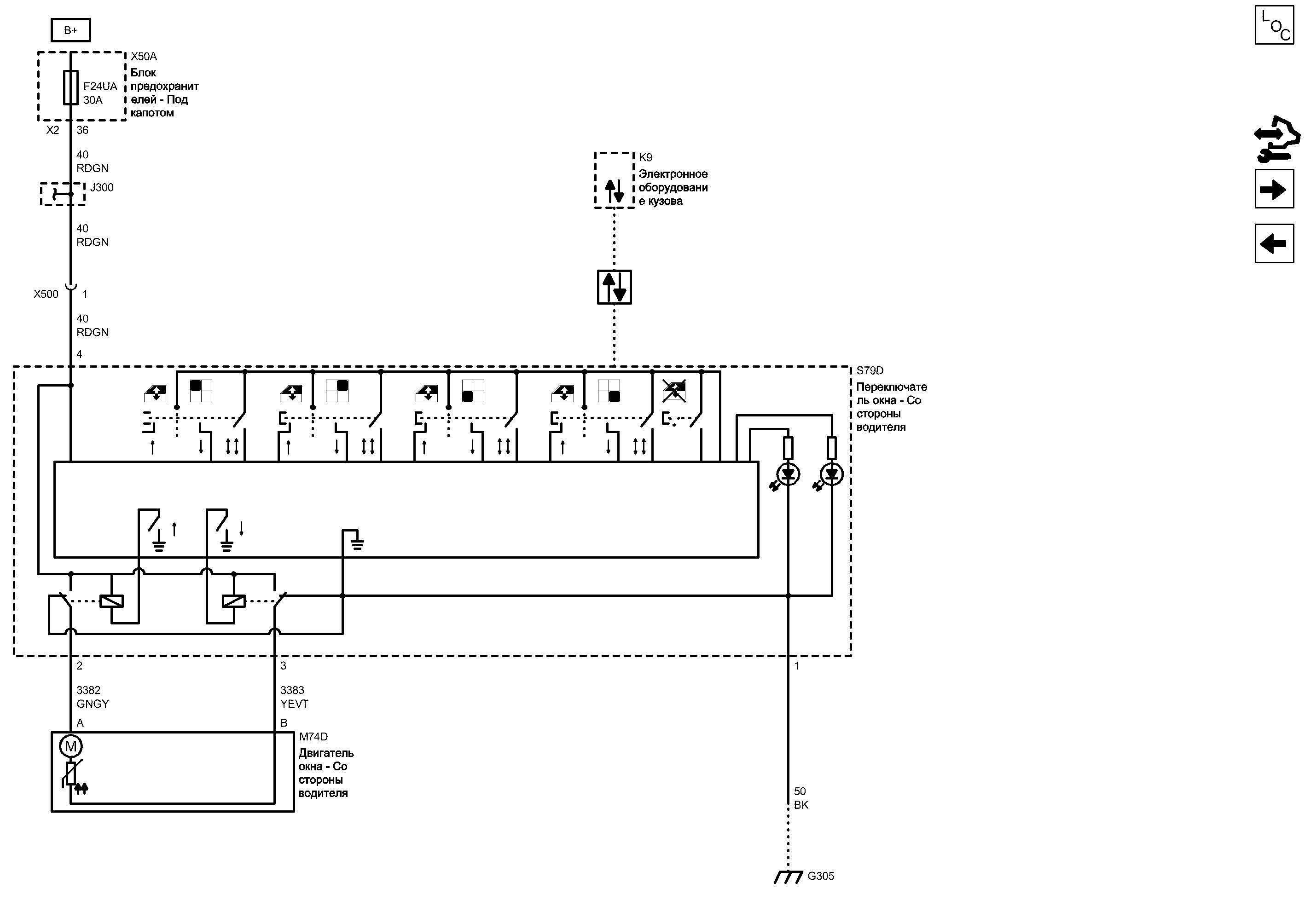
Стеклоподъемники - дверь водителя (СТЕКЛО С МЕХАНИЧЕСКИМ ПРИВОДОМ - СО СТОРОНЫ ВОДИТЕЛЯ - СРОЧНО ВНИЗ)


            |                         |            
2202799RU.png


Display graphic

Display graphic

Компоненты
f24uaПредохранительs79dПереключатель окна - Со стороны водителя
k9Электронное оборудование кузоваx50aБлок предохранителей - Под капотом
m74dДвигатель окна - Со стороны водителя
Разъемы
j300Жгут проводов кузоваx500Жгут проводов кузова и жгут проводов двери водителя
x50a (x2)Блок предохранителей - Под капотом x2
Точки соединения с массой
g305Передняя стойка, левая
Сокращения
b+Вывод b+fsdcФункциональный обмен последовательными данными
Цветовые коды
bkЧерныйrdgnКрасный-Зеленый
gngyЗеленый-СерыйyevtЖелтый-Фиолетовый
Масса
BK Черный
1
Положительное напряжение аккумуляторной батареи
RDGN Красный-Зеленый
X500 Жгут проводов кузова и жгут проводов двери водителя

Расположение деталей (узлов) Трехмерная схема жгутов Левостороннее управление
Расположение деталей (узлов) Трехмерная схема жгутов Правостороннее управление
Внешний вид разъема и ремонт Вилка Левостороннее управление
Внешний вид разъема и ремонт Вилка Правостороннее управление
Внешний вид разъема и ремонт Гнездо
1
RDGN Красный-Зеленый
36
X2 Блок предохранителей - Под капотом X2

Внешний вид разъема и ремонт
F24UA Предохранитель

Электрическая схема Дерево Предохранители F24UA, F32UA, F35UA, F55UA, F69UA и F70UA
Электрическая схема Питание Шина B+ UEC (1 из 6)
Вывод B+
RDGN Красный-Зеленый
4
G305 Передняя стойка, левая

Расположение деталей (узлов) Трехмерная схема жгутов
Внешний вид разъема и ремонт
Электрическая схема G305
2
3
B
A
Управление опусканием стеклоподъемника водителя
YEVT Желтый-Фиолетовый
Управление подъемом стеклоподъемника водителя
GNGY Зеленый-Серый
Функциональный обмен последовательными данными
K9 Электронное оборудование кузова

Расположение деталей (узлов) Трехмерная схема жгутов
M74D Двигатель окна - Со стороны водителя

Расположение деталей (узлов) Трехмерная схема жгутов Левостороннее управление
Расположение деталей (узлов) Трехмерная схема жгутов Правостороннее управление
Внешний вид разъема и ремонт СТЕКЛО С МЕХАНИЧЕСКИМ ПРИВОДОМ - СО СТОРОНЫ ВОДИТЕЛЯ - СРОЧНО ВВЕРХ/ВНИЗ
Внешний вид разъема и ремонт СТЕКЛО С МЕХАНИЧЕСКИМ ПРИВОДОМ - СО СТОРОНЫ ВОДИТЕЛЯ - СРОЧНО ВНИЗ
S79D Переключатель окна - Со стороны водителя

Расположение деталей (узлов) Трехмерная схема жгутов Левостороннее управление
Расположение деталей (узлов) Трехмерная схема жгутов Правостороннее управление
Внешний вид разъема и ремонт СТЕКЛО С МЕХАНИЧЕСКИМ ПРИВОДОМ - СО СТОРОНЫ ВОДИТЕЛЯ - СРОЧНО ВВЕРХ/ВНИЗ
Внешний вид разъема и ремонт СТЕКЛО С МЕХАНИЧЕСКИМ ПРИВОДОМ - СО СТОРОНЫ ВОДИТЕЛЯ - СРОЧНО ВНИЗ
X50A Блок предохранителей - Под капотом

Расположение деталей (узлов) Трехмерная схема жгутов
Последовательные данные
J300 Жгут проводов кузова

Электрическая схема Стеклоподъемники - дверь пассажира
Электрическая схема Стеклоподъемники - дверь водителя СТЕКЛО С МЕХАНИЧЕСКИМ ПРИВОДОМ - СО СТОРОНЫ ВОДИТЕЛЯ - СРОЧНО ВВЕРХ/ВНИЗ
Электрическая схема Выключатели ремней безопасности
Слабый опорный сигнал
Управление
Управление
Стеклоподъемники - дверь водителя

Стеклоподъемники - дверь водителя
Справочные данные по контроллерам

Справочные данные по контроллерам
Стеклоподъемники - дверь пассажира

Стеклоподъемники - дверь пассажира
Перечень основных электрических компонентов

Перечень основных электрических компонентов
   


https://vnx.su/ 🛠 Руководства по ремонту и эксплуатации для автомобилей

Поиск по сайту

Остались вопросы или пожелания? Пишите на почту: support@vnx.su

Карта Сайта