Cruze
   
GMDE Start Page Load static TOC Load dynamic TOC Help?
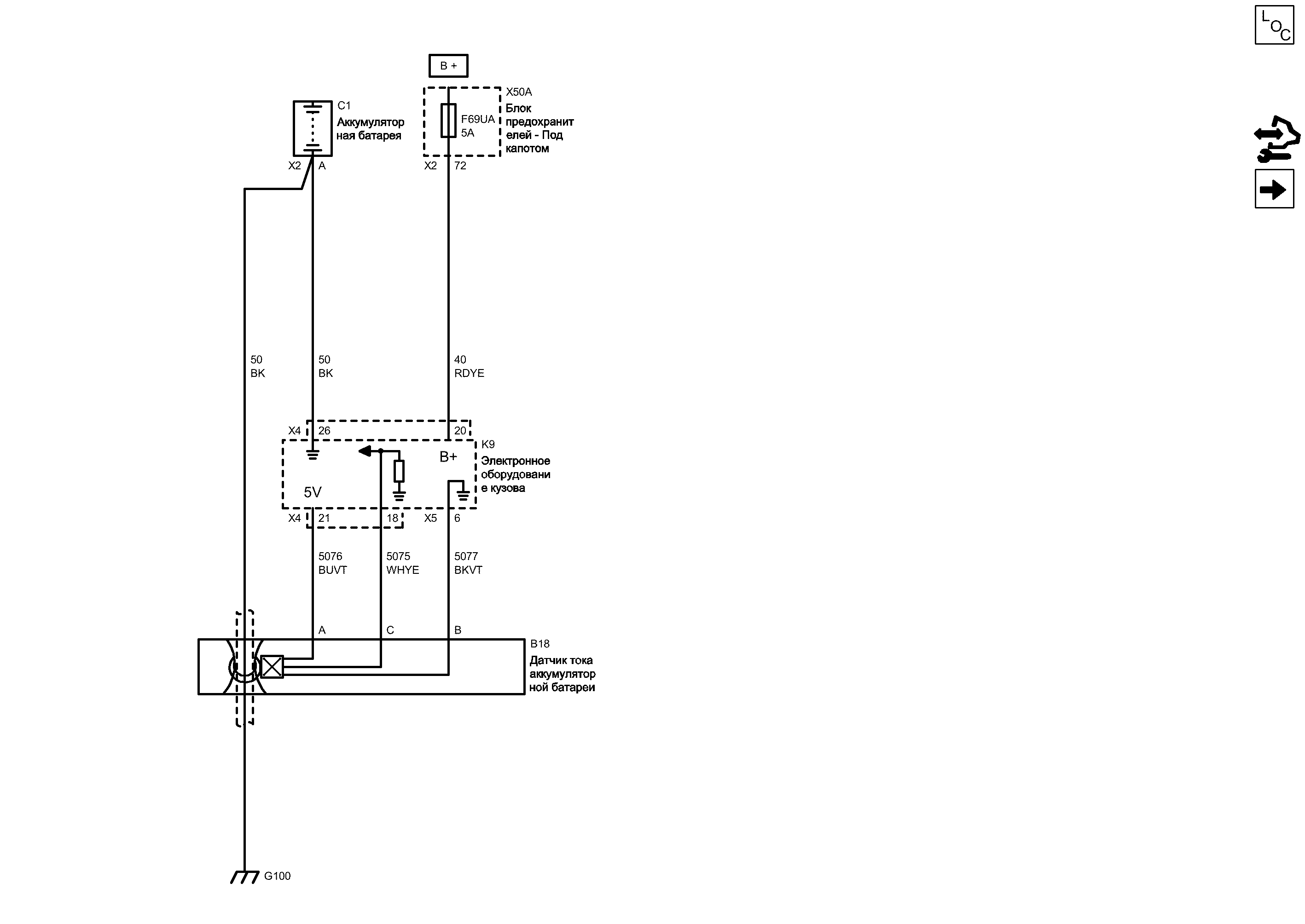
Защита батареи


            |                         |            
2202999RU.png


Display graphic

Display graphic

Компоненты
b18Датчик тока аккумуляторной батареиk9Электронное оборудование кузова
c1Аккумуляторная батареяx50aБлок предохранителей - Под капотом
f69uaПредохранитель
Разъемы
c1 (x2)Аккумуляторная батарея x2k9 (x5)Электронное оборудование кузова x5
k9 (x4)Электронное оборудование кузова x4x50a (x2)Блок предохранителей - Под капотом x2
Точки соединения с массой
g100Моторный отсек - Передняя часть, слева
Сокращения
b +Напряжение аккумуляторной батареи
Цветовые коды
bkЧерныйrdyeКрасный-Желтый
bkvtЧерный-ФиолетовыйwhyeБелый-Желтый
buvtСиний-Фиолетовый
72
F69UA Предохранитель

Электрическая схема Дерево Предохранители F24UA, F32UA, F35UA, F55UA, F69UA и F70UA
Электрическая схема Питание Шина B+ UEC (1 из 6)
X2 Блок предохранителей - Под капотом X2

Внешний вид разъема и ремонт
Напряжение аккумуляторной батареи
Масса
BK Черный
Положительное напряжение аккумуляторной батареи
RDYE Красный-Желтый
26
20
X4 Электронное оборудование кузова X4

Расположение деталей (узлов) Трехмерная схема жгутов
A
X2 Аккумуляторная батарея X2

Расположение деталей (узлов) Трехмерная схема жгутов СТРАНА - КОРЕЯ ДИЗЕЛЬНЫЙ ДВИГАТЕЛЬ, 4 ЦИЛ., L4, 2.0 Л, CRI, SOHC, ТУРБО, 110 кВт
Имеется только одно место для компонента
BK Черный
Датчик тока - Напряжение питания
BUVT Синий-Фиолетовый
Слабый опорный сигнал датчика тока
BKVT Черный-Фиолетовый
Сигнал датчика тока
WHYE Белый-Желтый
G100 Моторный отсек - Передняя часть, слева

Расположение деталей (узлов) Трехмерная схема жгутов ДИЗЕЛЬНЫЙ ДВИГАТЕЛЬ, 4 ЦИЛ., L4, 2.0 Л, CRI, SOHC, ТУРБО, 110 кВт
Электрическая схема G100, G102, G121, G122, G204 и G400
A
C
B
21
6
18
X5 Электронное оборудование кузова X5

Расположение деталей (узлов) Трехмерная схема жгутов
X4 Электронное оборудование кузова X4

Расположение деталей (узлов) Трехмерная схема жгутов
Слабый опорный сигнал
Опорный сигнал 5 вольт
Сигнал
B+ (положительное напряжение аккумуляторной батареи)
B18 Датчик тока аккумуляторной батареи

Расположение деталей (узлов) Трехмерная схема жгутов СТРАНА - КОРЕЯ ДИЗЕЛЬНЫЙ ДВИГАТЕЛЬ, 4 ЦИЛ., L4, 2.0 Л, CRI, SOHC, ТУРБО, 110 кВт
Внешний вид разъема и ремонт
C1 Аккумуляторная батарея

Расположение деталей (узлов) Трехмерная схема жгутов СТРАНА - КОРЕЯ ДИЗЕЛЬНЫЙ ДВИГАТЕЛЬ, 4 ЦИЛ., L4, 2.0 Л, CRI, SOHC, ТУРБО, 110 кВт
Внешний вид разъема и ремонт
K9 Электронное оборудование кузова

Расположение деталей (узлов) Трехмерная схема жгутов
X50A Блок предохранителей - Под капотом

Расположение деталей (узлов) Трехмерная схема жгутов
Слабый опорный сигнал
Справочные данные по контроллерам

Справочные данные по контроллерам
Запуск и зарядка

Запуск и зарядка
Перечень основных электрических компонентов

Перечень основных электрических компонентов
   


https://vnx.su/ 🛠 Руководства по ремонту и эксплуатации для автомобилей

Поиск по сайту

Остались вопросы или пожелания? Пишите на почту: support@vnx.su

Карта Сайта