Cruze
   
GMDE Start Page Load static TOC Load dynamic TOC Help?
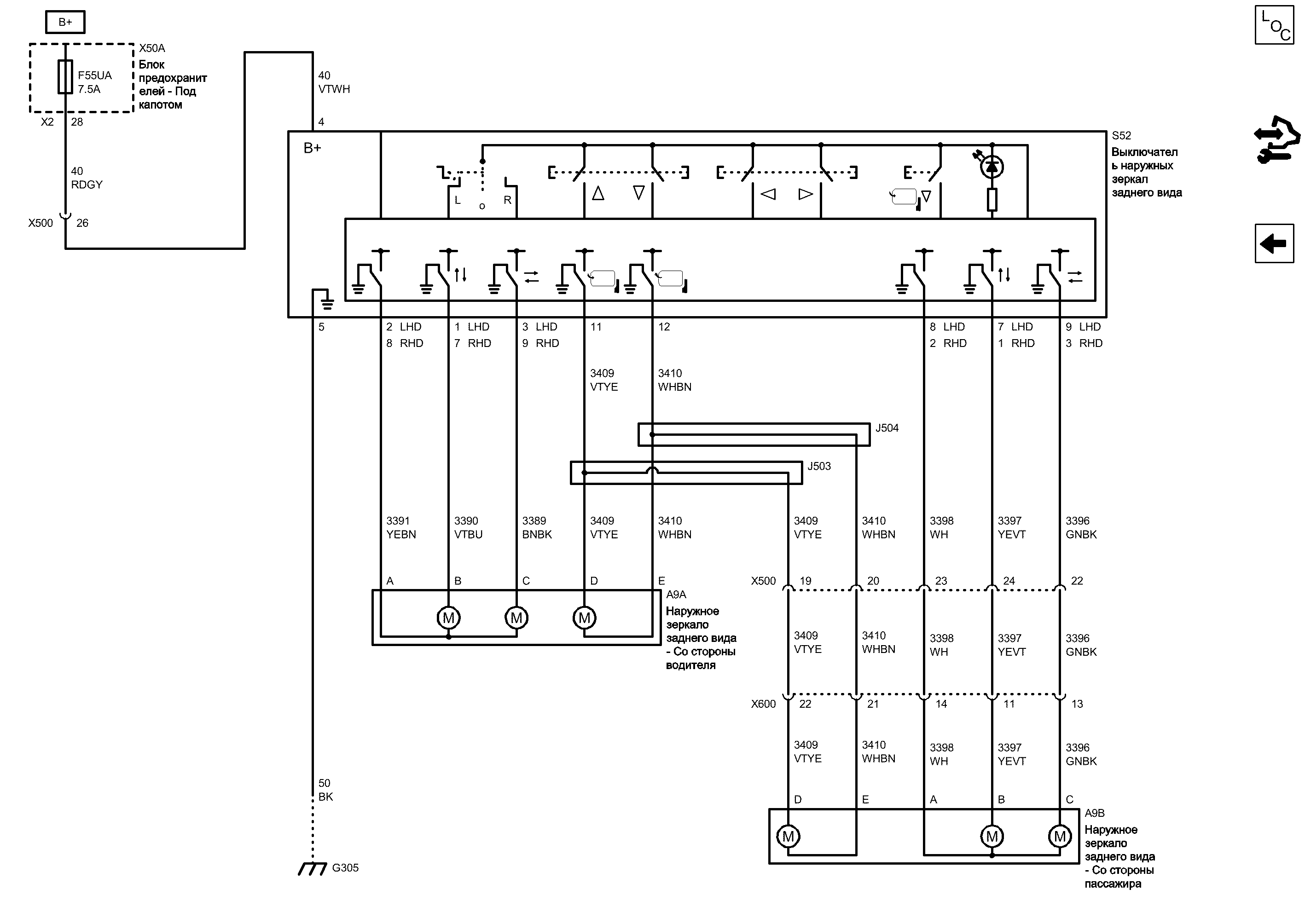
Наружное зеркало заднего вида


            |                         |            
2202834RU.png


Display graphic

Display graphic

Компоненты
a9aНаружное зеркало заднего вида - Со стороны водителяs52Выключатель наружных зеркал заднего вида
a9bНаружное зеркало заднего вида - Со стороны пассажираx50aБлок предохранителей - Под капотом
f55uaПредохранитель
Разъемы
j503Жгут проводов двери водителяx500Жгут проводов кузова и жгут проводов двери водителя
j504Жгут проводов двери водителяx600Жгут проводов кузова и жгут проводов двери пассажира
x50a (x2)Блок предохранителей - Под капотом x2
Точки соединения с массой
g305Передняя стойка, левая
Сокращения
b+Вывод b+rhdПравостороннее управление
lhdЛевостороннее управление
Цветовые коды
bkЧерныйvtyeФиолетовый-Желтый
bnbkКоричневый-ЧерныйwhБелый
gnbkЗеленый-ЧерныйwhbnБелый-Коричневый
rdgyКрасный-СерыйyebnЖелтый-Коричневый
vtbuФиолетовый-СинийyevtЖелтый-Фиолетовый
vtwhФиолетовый-Белый
C
B
A
D
E
Общий провод управления двигателем зеркала водителя
YEBN Желтый-Коричневый
2 (Левостороннее управление)
Управление двигателем вверх (+) вниз (-) привода зеркала водителя
VTBU Фиолетовый-Синий
1 (Левостороннее управление)
Управление двигателем вправо (+) влево (-) привода зеркала водителя
BNBK Коричневый-Черный
3 (Левостороннее управление)
4
Положительное напряжение аккумуляторной батареи
RDGY Красный-Серый
X500 Жгут проводов кузова и жгут проводов двери водителя

Расположение деталей (узлов) Трехмерная схема жгутов Левостороннее управление
Расположение деталей (узлов) Трехмерная схема жгутов Правостороннее управление
Внешний вид разъема и ремонт Вилка Левостороннее управление
Внешний вид разъема и ремонт Вилка Правостороннее управление
Внешний вид разъема и ремонт Гнездо
26
28
X2 Блок предохранителей - Под капотом X2

Внешний вид разъема и ремонт
F55UA Предохранитель

Электрическая схема Дерево Предохранители F24UA, F32UA, F35UA, F55UA, F69UA и F70UA
Электрическая схема Питание Шина B+ UEC (1 из 6)
Вывод B+
11
J503 Жгут проводов двери водителя
J504 Жгут проводов двери водителя
Управление двигателем складывания зеркала
WHBN Белый-Коричневый
Управление двигателем раскрывания зеркала
VTYE Фиолетовый-Желтый
12
A
B
C
D
E
X500 Жгут проводов кузова и жгут проводов двери водителя

Расположение деталей (узлов) Трехмерная схема жгутов Левостороннее управление
Расположение деталей (узлов) Трехмерная схема жгутов Правостороннее управление
Внешний вид разъема и ремонт Вилка Левостороннее управление
Внешний вид разъема и ремонт Вилка Правостороннее управление
Внешний вид разъема и ремонт Гнездо
19
X600 Жгут проводов кузова и жгут проводов двери пассажира

Расположение деталей (узлов) Трехмерная схема жгутов Левостороннее управление
Расположение деталей (узлов) Трехмерная схема жгутов Правостороннее управление
Внешний вид разъема и ремонт Вилка Левостороннее управление
Внешний вид разъема и ремонт Вилка Правостороннее управление
Внешний вид разъема и ремонт Гнездо
22
9 (Левостороннее управление)
7 (Левостороннее управление)
8 (Левостороннее управление)
20
21
23
14
Общий провод управления двигателем зеркала сменного водителя
WH Белый
22
24
11
13
Управление двигателем вверх (+) вниз (-) привода зеркала сменного водителя
YEVT Желтый-Фиолетовый
Управление двигателем вправо (+) влево (-) привода зеркала сменного водителя
GNBK Зеленый-Черный
VTWH Фиолетовый-Белый
Масса
BK Черный
5
G305 Передняя стойка, левая

Расположение деталей (узлов) Трехмерная схема жгутов
Внешний вид разъема и ремонт
Электрическая схема G305
A9B Наружное зеркало заднего вида - Со стороны пассажира

Расположение деталей (узлов) Трехмерная схема жгутов Левостороннее управление
Расположение деталей (узлов) Трехмерная схема жгутов Правостороннее управление
Внешний вид разъема и ремонт
X50A Блок предохранителей - Под капотом

Расположение деталей (узлов) Трехмерная схема жгутов
A9A Наружное зеркало заднего вида - Со стороны водителя

Расположение деталей (узлов) Трехмерная схема жгутов Левостороннее управление
Расположение деталей (узлов) Трехмерная схема жгутов Правостороннее управление
Внешний вид разъема и ремонт
Слабый опорный сигнал
Управление
Управление
B+ (положительное напряжение аккумуляторной батареи)
Управление
Управление
Управление
Управление
Управление
Управление
S52 Выключатель наружных зеркал заднего вида

Расположение деталей (узлов) Трехмерная схема жгутов Левостороннее управление
Расположение деталей (узлов) Трехмерная схема жгутов Правостороннее управление
Внешний вид разъема и ремонт
9 (Правостороннее управление)
7 (Правостороннее управление)
8 (Правостороннее управление)
3 (Правостороннее управление)
1 (Правостороннее управление)
2 (Правостороннее управление)
VTYE Фиолетовый-Желтый
WHBN Белый-Коричневый
VTYE Фиолетовый-Желтый
WHBN Белый-Коричневый
VTYE Фиолетовый-Желтый
WHBN Белый-Коричневый
VTYE Фиолетовый-Желтый
WHBN Белый-Коричневый
WH Белый
GNBK Зеленый-Черный
YEVT Желтый-Фиолетовый
WH Белый
YEVT Желтый-Фиолетовый
GNBK Зеленый-Черный
Обогреваемые наружные зеркала

Обогреваемые наружные зеркала
Справочные данные по контроллерам

Справочные данные по контроллерам
Перечень основных электрических компонентов

Перечень основных электрических компонентов
   


https://vnx.su/ 🛠 Руководства по ремонту и эксплуатации для автомобилей

Поиск по сайту

Остались вопросы или пожелания? Пишите на почту: support@vnx.su

Карта Сайта