Cruze
   
GMDE Start Page Load static TOC Load dynamic TOC Help?
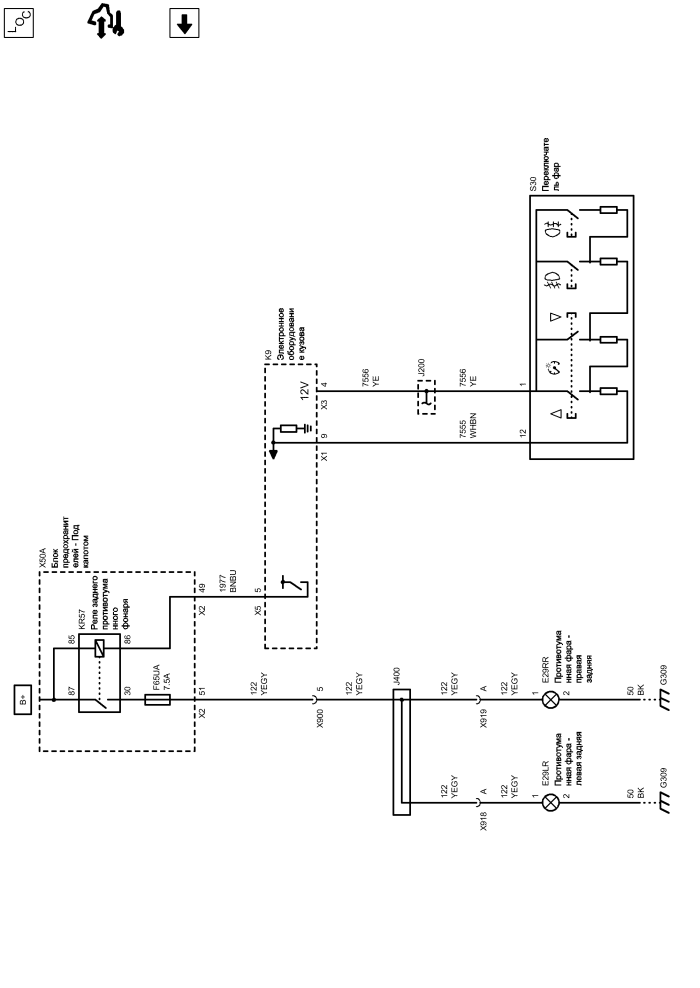
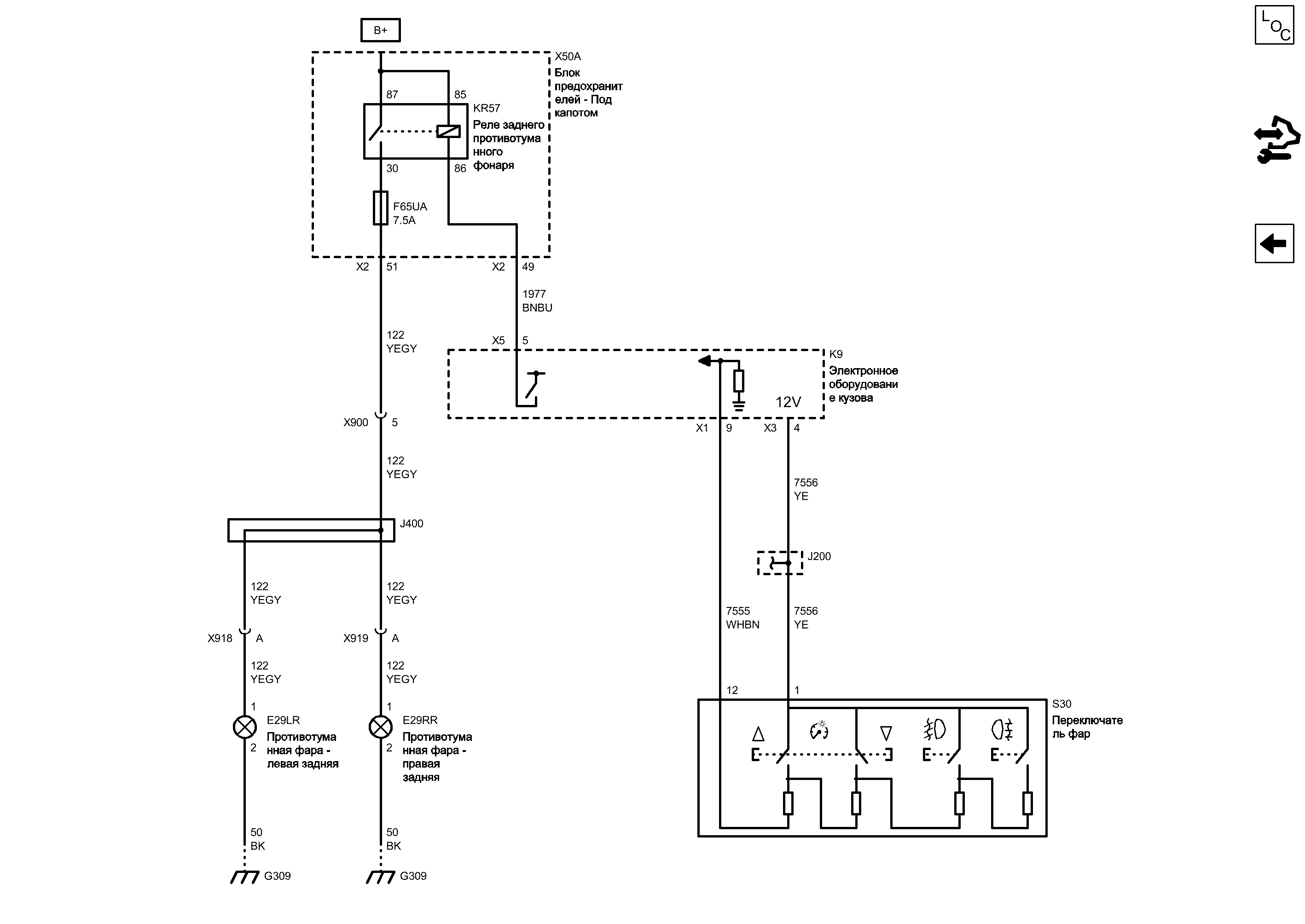
Задние противотуманные фонари


            |                         |            
2202812RU.png


Display graphic

Display graphic

Компоненты
e29lrПротивотуманная фара - левая задняяkr57Реле заднего противотуманного фонаря
e29rrПротивотуманная фара - правая задняяs30Переключатель фар
f65uaПредохранительx50aБлок предохранителей - Под капотом
k9Электронное оборудование кузова
Разъемы
j200Жгут проводов панели приборовx50a (x2)Блок предохранителей - Под капотом x2
j400Жгут проводов багажникаx900Жгут проводов кузова и жгут проводов подъемной задней двери
k9 (x1)Электронное оборудование кузова x1x918Жгут проводов подъемной задней двери и жгут проводов левого заднего фонаря подъемной задней двери
k9 (x3)Электронное оборудование кузова x3x919Жгут проводов подъемной задней двери и жгут проводов правого заднего фонаря подъемной задней двери
k9 (x5)Электронное оборудование кузова x5
Точки соединения с массой
g309Задняя панель, левая
Сокращения
b+Вывод b+
Цветовые коды
bkЧерныйyeЖелтый
bnbuКоричневый-СинийyegyЖелтый-Серый
whbnБелый-Коричневый
1
2
Масса
BK Черный
G309 Задняя панель, левая

Расположение деталей (узлов) Трехмерная схема жгутов
Внешний вид разъема и ремонт
Электрическая схема G309
5
X5 Электронное оборудование кузова X5

Расположение деталей (узлов) Трехмерная схема жгутов
G309 Задняя панель, левая

Расположение деталей (узлов) Трехмерная схема жгутов
Внешний вид разъема и ремонт
Электрическая схема G309
2
Масса
BK Черный
1
Управление задней противотуманной фарой
YEGY Желтый-Серый
J400 Жгут проводов багажника
YEGY Желтый-Серый
X900 Жгут проводов кузова и жгут проводов подъемной задней двери

Расположение деталей (узлов) Трехмерная схема жгутов СТРАНЫ - СЕВЕРНАЯ АМЕРИКА
Расположение деталей (узлов) Трехмерная схема жгутов СТРАНЫ - КРОМЕ СЕВЕРНОЙ АМЕРИКИ
Внешний вид разъема и ремонт Вилка
Внешний вид разъема и ремонт Гнездо
5
Опорный сигнал комбинированного переключателя освещения
YE Желтый
J200 Жгут проводов панели приборов

Электрическая схема Передние противотуманные фары
YE Желтый
Сигнал комбинированного переключателя освещения
WHBN Белый-Коричневый
X3 Электронное оборудование кузова X3

Расположение деталей (узлов) Трехмерная схема жгутов
4
X1 Электронное оборудование кузова X1

Расположение деталей (узлов) Трехмерная схема жгутов
9
X918 Жгут проводов подъемной задней двери и жгут проводов левого заднего фонаря ...

Внешний вид разъема и ремонт Вилка
A
X919 Жгут проводов подъемной задней двери и жгут проводов правого заднего фонаря...

Внешний вид разъема и ремонт
A
YEGY Желтый-Серый
YEGY Желтый-Серый
K9 Электронное оборудование кузова

Расположение деталей (узлов) Трехмерная схема жгутов
Опорный сигнал 12 вольт
Сигнал
Управление
30
86
F65UA Предохранитель

Электрическая схема Дерево Предохранители F12UA, F28UA, F56UA, F60UA и F65UA
Электрическая схема Питание Шина B+ UEC (6 из 6)
X50A Блок предохранителей - Под капотом

Расположение деталей (узлов) Трехмерная схема жгутов
Вывод B+
85
87
KR57 Реле заднего противотуманного фонаря
X2 Блок предохранителей - Под капотом X2

Внешний вид разъема и ремонт
X2 Блок предохранителей - Под капотом X2

Внешний вид разъема и ремонт
51
49
Релейное управление задней противотуманной фарой
BNBU Коричневый-Синий
YEGY Желтый-Серый
YEGY Желтый-Серый
1
S30 Переключатель фар

Расположение деталей (узлов) Трехмерная схема жгутов Левостороннее управление
Внешний вид разъема и ремонт
12
E29LR Противотуманная фара - левая задняя

Внешний вид разъема и ремонт
E29RR Противотуманная фара - правая задняя

Внешний вид разъема и ремонт
Передние противотуманные фары

Передние противотуманные фары
Справочные данные по контроллерам

Справочные данные по контроллерам
Перечень основных электрических компонентов

Перечень основных электрических компонентов
   


https://vnx.su/ 🛠 Руководства по ремонту и эксплуатации для автомобилей

Поиск по сайту

Остались вопросы или пожелания? Пишите на почту: support@vnx.su

Карта Сайта