Cruze
   
GMDE Start Page Load static TOC Load dynamic TOC Help?
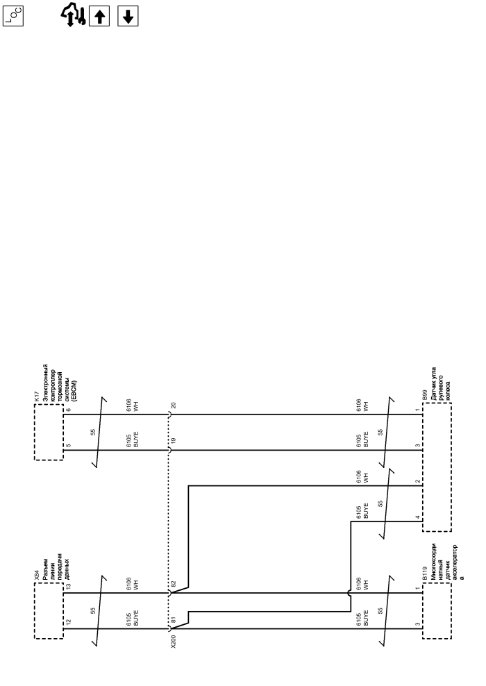
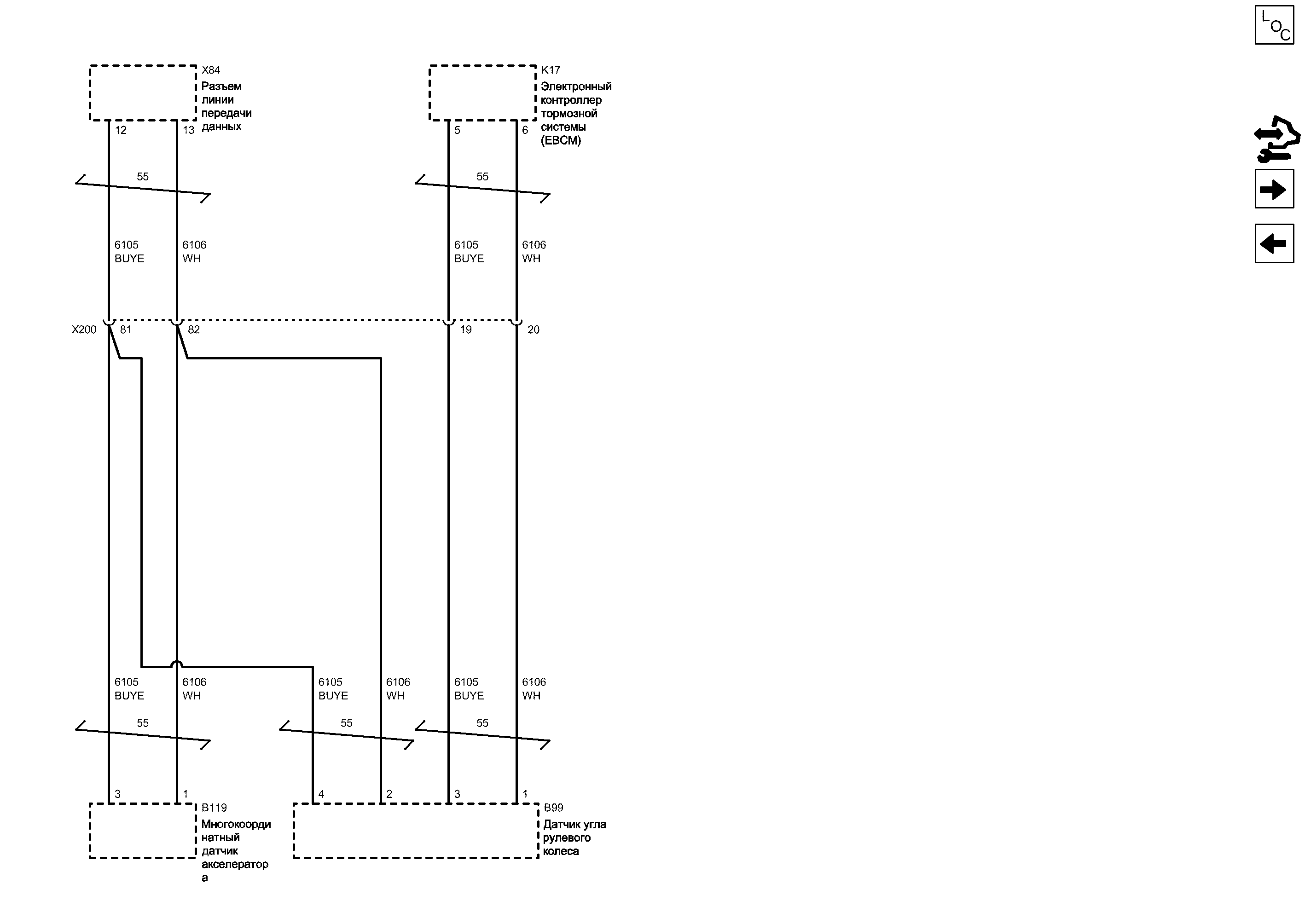
Шасси - скоростная gmlan


            |                         |            
2203054RU.png


Display graphic

Display graphic

Компоненты
b99Датчик угла рулевого колесаk17Электронный контроллер тормозной системы (ЕВСМ)
b119Многокоординатный датчик акселератораx84Разъем линии передачи данных
Разъемы
x200Жгут проводов кузова и жгут проводов панели приборов
Цветовые коды
buyeСиний-ЖелтыйwhБелый
Последовательные данные высокоскоростной GMLAN (+) (2)
BUYE Синий-Желтый
Последовательные данные высокоскоростной GMLAN (-) (2)
WH Белый
13
12
1
3
4
2
1
3
19
20
5
6
82
X200 Жгут проводов кузова и жгут проводов панели приборов

Расположение деталей (узлов) Трехмерная схема жгутов
Внешний вид разъема и ремонт Вилка
Внешний вид разъема и ремонт Гнездо
81
K17 Электронный контроллер тормозной системы (ЕВСМ)

Расположение деталей (узлов) Трехмерная схема жгутов
Внешний вид разъема и ремонт
B99 Датчик угла рулевого колеса

Расположение деталей (узлов) Трехмерная схема жгутов Левостороннее управление
Имеется только одно место для компонента
B119 Многокоординатный датчик акселератора

Расположение деталей (узлов) Трехмерная схема жгутов
Внешний вид разъема и ремонт
X84 Разъем линии передачи данных

Расположение деталей (узлов) Трехмерная схема жгутов
Расположение деталей (узлов) Трехмерная схема жгутов Левостороннее управление
Внешний вид разъема и ремонт
WH Белый
BUYE Синий-Желтый
WH Белый
BUYE Синий-Желтый
Последовательные данные высокоскоростной GMLAN (+) (2)
BUYE Синий-Желтый
Последовательные данные высокоскоростной GMLAN (-) (2)
WH Белый
WH Белый
BUYE Синий-Желтый
Низкоскоростная GMLAN

Низкоскоростная GMLAN
Справочные данные по контроллерам

Справочные данные по контроллерам
Включение связи с обменом последовательными данными

Включение связи с обменом последовательными данными
Перечень основных электрических компонентов

Перечень основных электрических компонентов
   


https://vnx.su/ 🛠 Руководства по ремонту и эксплуатации для автомобилей

Поиск по сайту

Остались вопросы или пожелания? Пишите на почту: support@vnx.su

Карта Сайта