To the top of the document
Orlando
   
GMDE Start Page Load static TOC Load dynamic TOC Help?

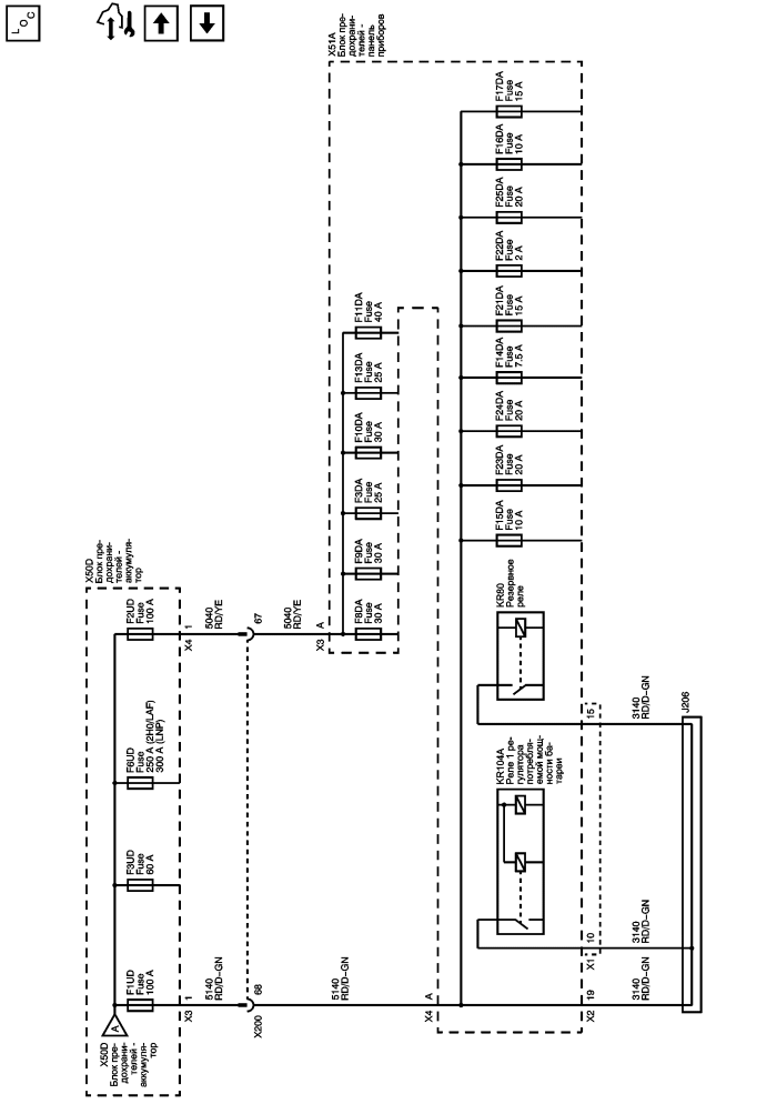
Шина b+ (3 из 3)


          
            |                         |            
2564680RU.png

Display graphic

Предохранители F2UA, F21UA, F27UA, F31UA, F32UA, F34UA, F35UA, F69UA и F70UA

B+ Bus (2 of 3)

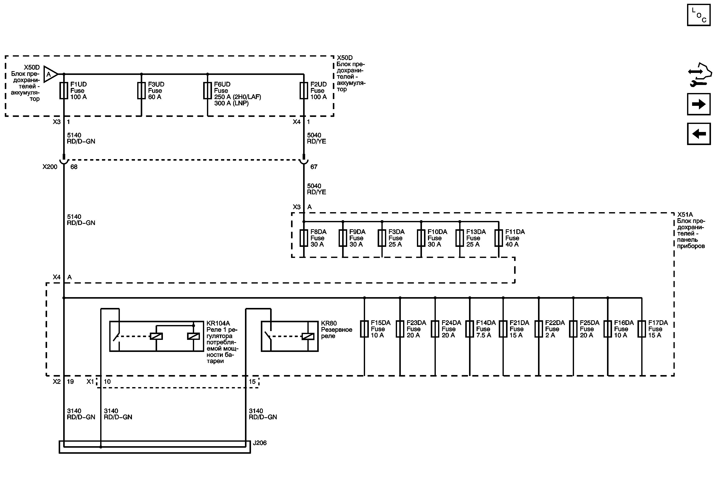
B+ Bus (1 of 3)

   


© copyright chevrolet. All rights reserved