To the top of the document
Orlando
   
GMDE Start Page Load static TOC Load dynamic TOC Help?

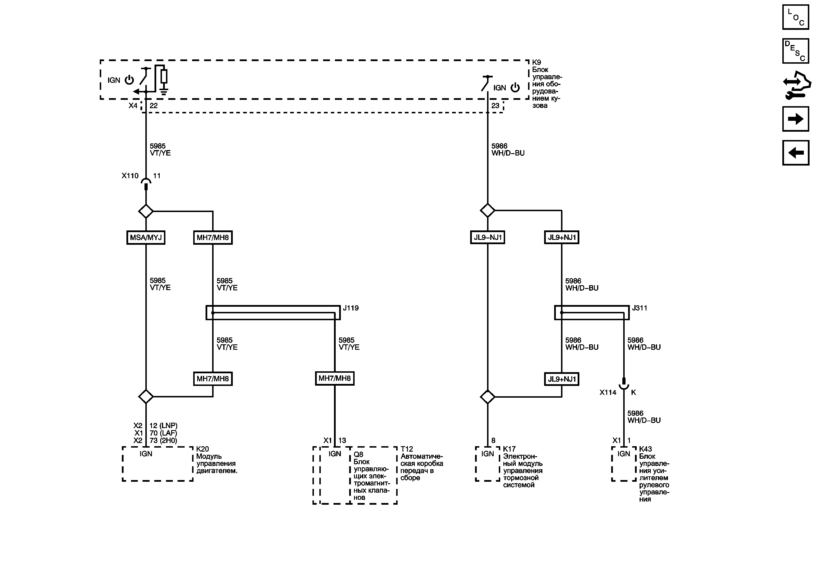
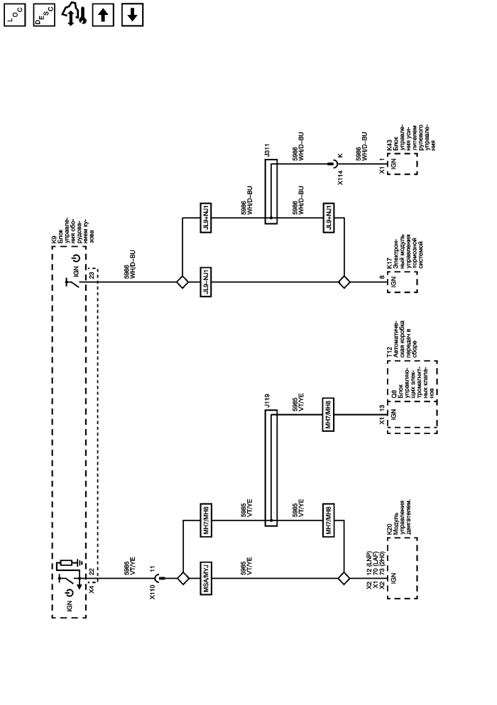
Активна передача последовательных данных


          
            |                         |            
2564591RU.png

Display graphic

Последовательные данные линейной сети связи (LIN)

Шина расширения шасси (FX3)

   


© copyright chevrolet. All rights reserved