To the top of the document
Orlando
   
GMDE Start Page Load static TOC Load dynamic TOC Help?

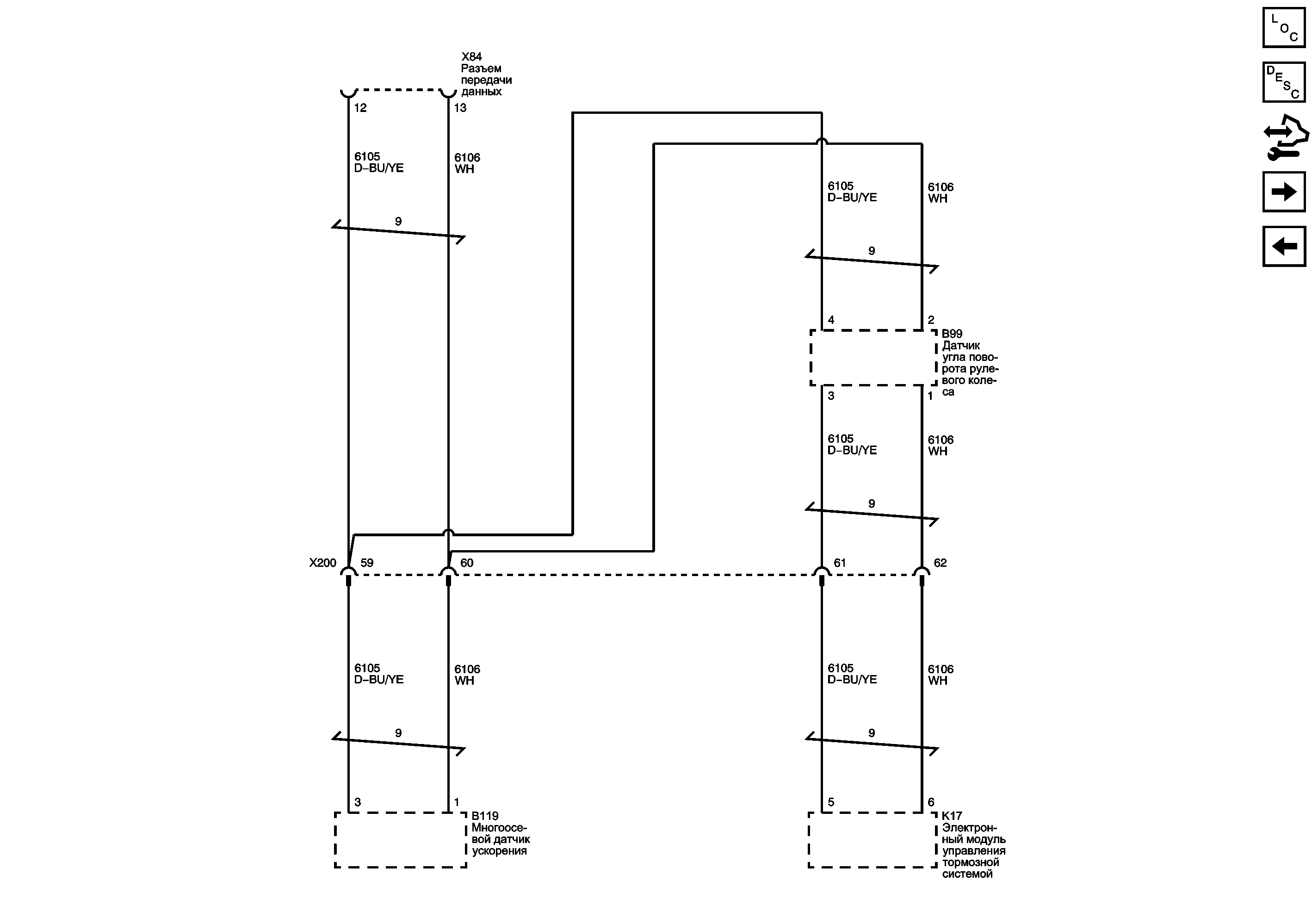
Шина расширения шасси (fx3)


          
            |                         |            
2564583RU.png

Display graphic

Активна передача последовательных данных

Низкоскоростная сеть GMLAN

   


© copyright chevrolet. All rights reserved