Orlando |
||||||||
|
|
|
|||||||

Регуляторы настройки турбокомпрессора, канала выхлопных газов и впускного коллектора
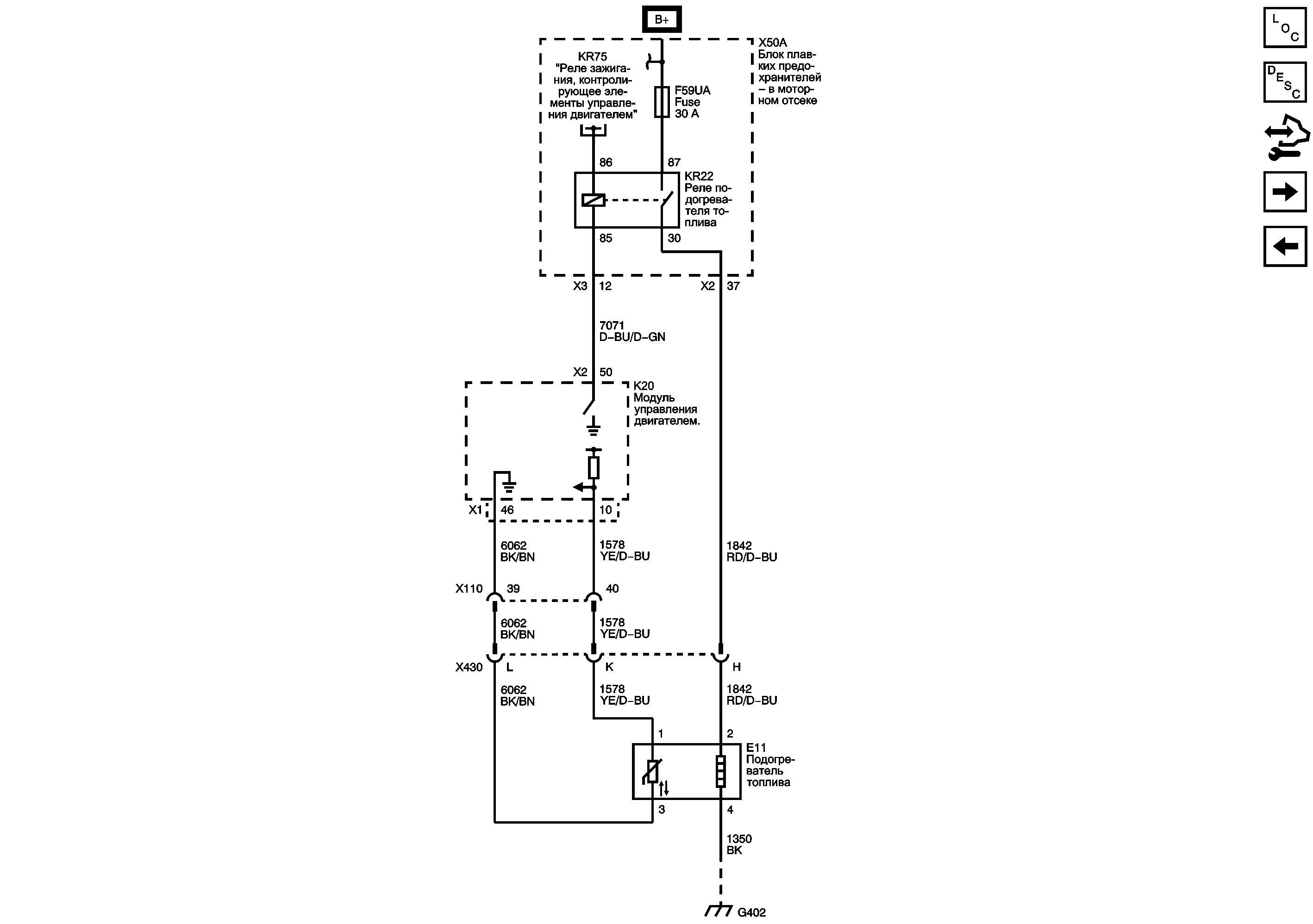
Средства управления топливом - топливный насос и топливные форсунки
Предохранители F47UA, F59UA и F62UA
| © copyright chevrolet. All rights reserved |