Orlando |
||||||||
|
|
|
|||||||

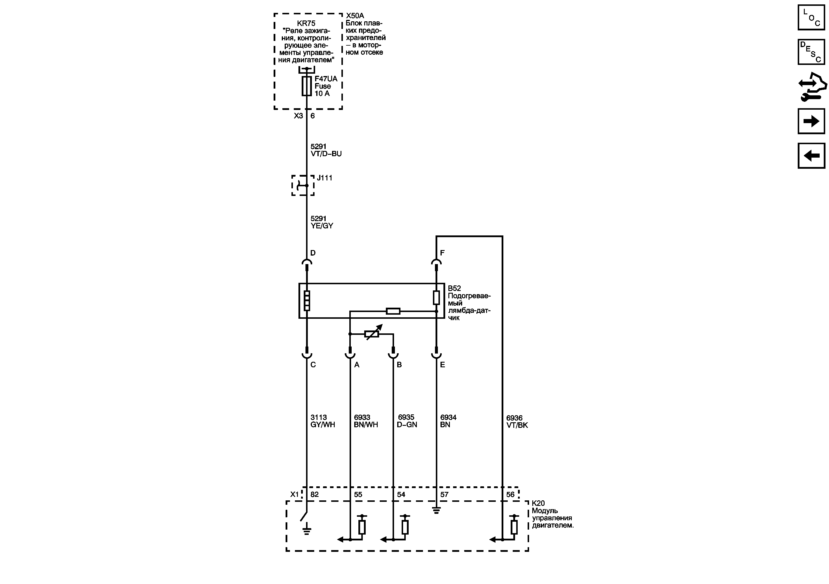
Датчики данных двигателя - распредвала, коленвала, выхлопных газов и датчик детонации
Датчики данных двигателя - средства управления дроссельной заслонкой
Предохранители F47UA, F59UA и F62UA
| © copyright chevrolet. All rights reserved |