To the top of the document
Orlando
   
GMDE Start Page Load static TOC Load dynamic TOC Help?

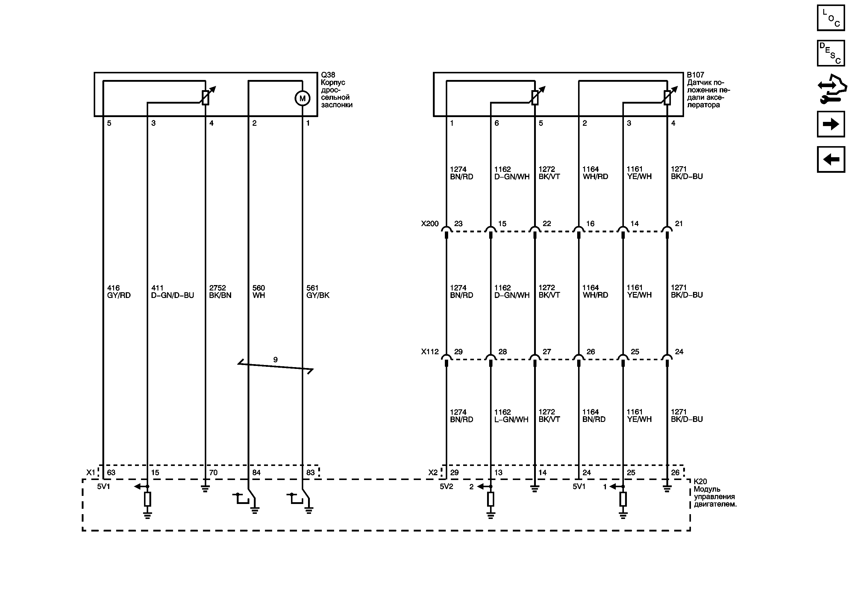
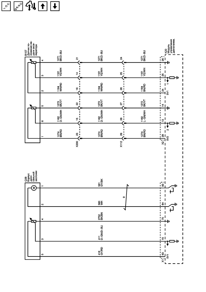
Датчики данных двигателя- средства управления дроссельной заслонкой


          
            |                         |            
2564471RU.png

Display graphic

Датчики данных двигателя - кислородные датчики

Датчики данных двигателя - Датчики давления, температуры и воды в топливе

   


© copyright chevrolet. All rights reserved