To the top of the document
Orlando
   
GMDE Start Page Load static TOC Load dynamic TOC Help?

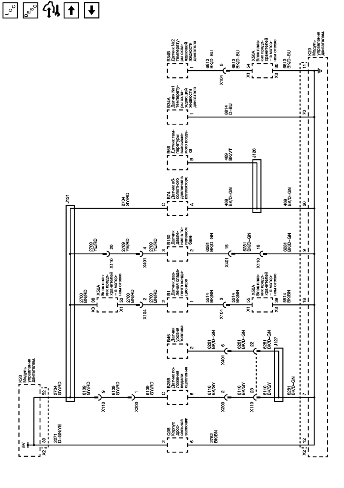
Шина 5 В и шина низкого опорного сигнала (2 из 2)


          
            |                         |            
2564321RU.png

Display graphic

Датчики параметров работы двигателя - органы управления давлением и температурой

12 В, 5 В и шина низкого опорного напряжения (1 из 2)

   


© copyright chevrolet. All rights reserved