Наверх документа
Cruze
   
Начальная страница GMDE Загрузить статическое оглавление Загрузить динамическое оглавление Помощь?

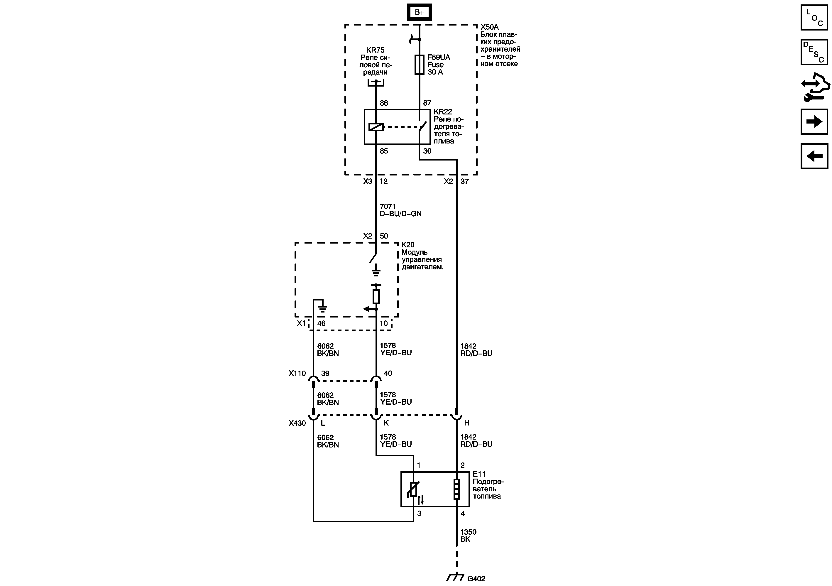
Органы управления топливом - нагреватель топлива



            |                         |            
2510557RU.png

Графический дисплей

Список электрических компонентов управления

Контроллер ЭСУД (ECM)

Модуль управления Справочные сведения

Средства управления топливом - турбокомпрессор, перепуск выхлопных газов и настройка впускного коллектора

Средства управления топливом - топливный насос и топливные форсунки

   


https://vnx.su/ 🛠 Руководства по ремонту и эксплуатации для автомобилей

Поиск по сайту

Остались вопросы или пожелания? Пишите на почту: support@vnx.su

Карта Сайта