Cruze
   
GMDE Start Page Load static TOC Load dynamic TOC Help?
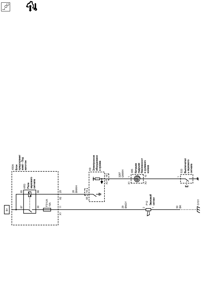
Звуковой сигнал


            |                         |            
2202805RU.png


Display graphic

Display graphic

Компоненты
f51uaПредохранительs33Выключатель звукового сигнала
k9Электронное оборудование кузоваx50aБлок предохранителей - Под капотом
kr3Реле звукового сигналаx85Катушка подушки безопасности рулевого колеса
p12Звуковой сигнал
Разъемы
k9 (x3)Электронное оборудование кузова x3x50a (x2)Блок предохранителей - Под капотом x2
k9 (x5)Электронное оборудование кузова x5x85 (x1)Катушка подушки безопасности рулевого колеса x1
x50a (x1)Блок предохранителей - Под капотом x1x85 (x3)Катушка подушки безопасности рулевого колеса x3
Точки соединения с массой
g101Моторный отсек - Передняя часть, слева
Сокращения
b+Вывод b+
Цветовые коды
bkЧерныйbnwhКоричневый\Белый
bngyКоричневый-СерыйgnwhЗеленый-Белый
G101 Моторный отсек - Передняя часть, слева

Расположение деталей (узлов) Трехмерная схема жгутов БЕЗ КОЖАНОЙ ОТДЕЛКИ СИДЕНЬЯ (TBD1-GSV)(GMDAT)
Расположение деталей (узлов) Трехмерная схема жгутов ЕВРОПА
Внешний вид разъема и ремонт
Электрическая схема G101
Масса
BK Черный
Вывод B+
F51UA Предохранитель

Электрическая схема Дерево Предохранители F21UA, F27UA, F30UA, F37UA, F38UA, F45UA, F48UA и F51UA
Электрическая схема Питание Шина B+ UEC (4 из 6)
11
X1 Блок предохранителей - Под капотом X1

Расположение деталей (узлов) Трехмерная схема жгутов
Внешний вид разъема и ремонт
25
X2 Блок предохранителей - Под капотом X2

Внешний вид разъема и ремонт
Релейное управление звуковым сигналом
BNWH Коричневый\Белый
19
X5 Электронное оборудование кузова X5

Расположение деталей (узлов) Трехмерная схема жгутов
Сигнал переключения звукового сигнала
GNWH Зеленый-Белый
18
X3 Электронное оборудование кузова X3

Расположение деталей (узлов) Трехмерная схема жгутов
1
30
86
85
87
Управление звуковым сигналом
BNGY Коричневый-Серый
Сигнал
X50A Блок предохранителей - Под капотом

Расположение деталей (узлов) Трехмерная схема жгутов
S33 Выключатель звукового сигнала
X85 Катушка подушки безопасности рулевого колеса

Расположение деталей (узлов) Трехмерная схема жгутов
K9 Электронное оборудование кузова

Расположение деталей (узлов) Трехмерная схема жгутов
KR3 Реле звукового сигнала
X1 Катушка подушки безопасности рулевого колеса X1

Внешний вид разъема и ремонт
10
X3 Катушка подушки безопасности рулевого колеса X3

Расположение деталей (узлов) Трехмерная схема жгутов
Внешний вид разъема и ремонт
1
Управление
P12 Звуковой сигнал

Расположение деталей (узлов) Трехмерная схема жгутов
2
1
Справочные данные по контроллерам

Справочные данные по контроллерам
Перечень основных электрических компонентов

Перечень основных электрических компонентов
   


https://vnx.su/ 🛠 Руководства по ремонту и эксплуатации для автомобилей

Поиск по сайту

Остались вопросы или пожелания? Пишите на почту: support@vnx.su

Карта Сайта