Cruze
   
GMDE Start Page Load static TOC Load dynamic TOC Help?
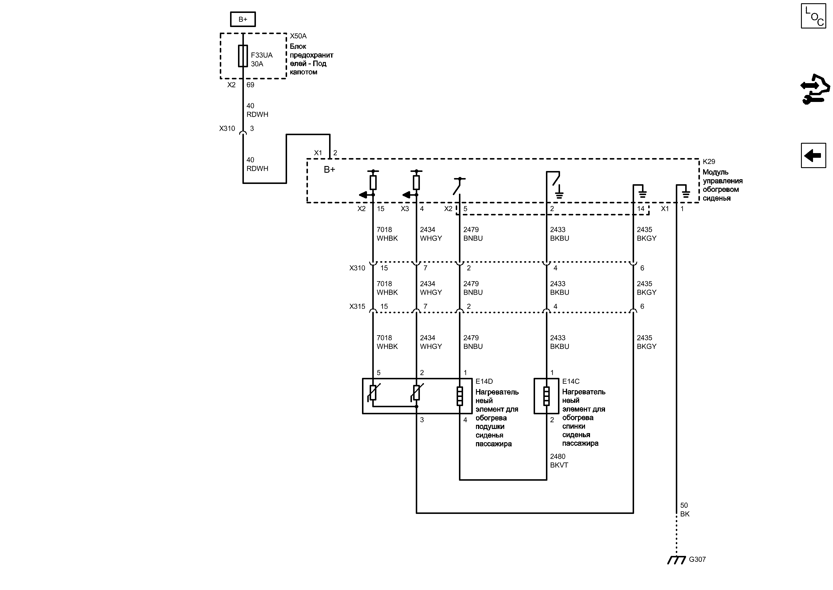
Сиденье пассажира с обогревом/охлаждением


            |                         |            
2203240RU.png


Display graphic

Display graphic

Компоненты
e14cНагревательнеый элемент для обогрева спинки сиденья пассажираk29Модуль управления обогревом сиденья
e14dНагревательнеый элемент для обогрева подушки сиденья пассажираx50aБлок предохранителей - Под капотом
f33uaПредохранитель
Разъемы
k29 (x1)Модуль управления обогревом сиденья x1x50a (x2)Блок предохранителей - Под капотом x2
k29 (x2)Модуль управления обогревом сиденья x2x310Жгут проводов кузова и жгут проводов сиденья водителя
k29 (x3)Модуль управления обогревом сиденья x3x315Жгут проводов кузова и жгут проводов сиденья переднего пассажира
Точки соединения с массой
g307Туннель
Сокращения
b+Вывод b+
Цветовые коды
bkЧерныйbnbuКоричневый-Синий
bkbuЧерный-СинийrdwhКрасный-Белый
bkgyЧерный-СерыйwhbkБелый-Черный
bkvtЧерный-ФиолетовыйwhgyБелый-Серый
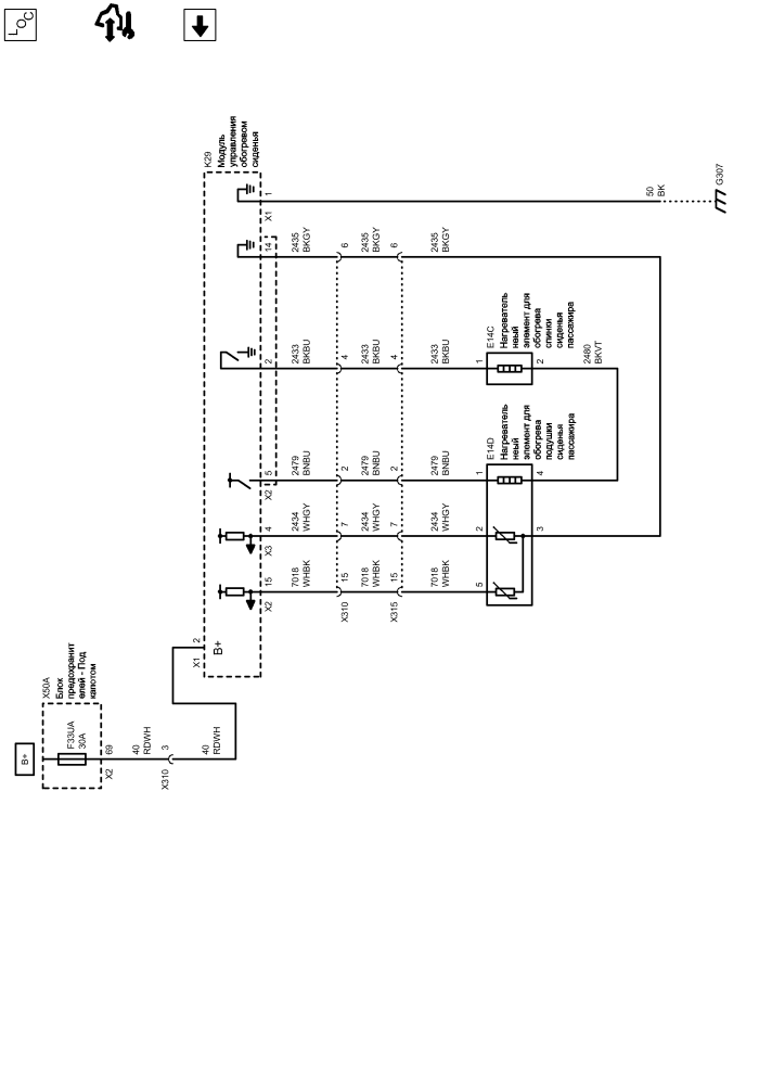
Возврат элемента спинки обогреваемого сиденья пассажира
BKBU Черный-Синий
2
1
Слабый опорный сигнал элемента сиденья пассажира с подогревом
BKVT Черный-Фиолетовый
4
1
Управление элементом сиденья пассажира с подогревом
BNBU Коричневый-Синий
BNBU Коричневый-Синий
BNBU Коричневый-Синий
5
X2 Модуль управления обогревом сиденья X2
2
BKBU Черный-Синий
BKBU Черный-Синий
3
2
Сигнал NTC сиденья пассажира с подогревом
WHGY Белый-Серый
Слабый опорный сигнал NTC сиденья пассажира с подогревом
BKGY Черный-Серый
WHGY Белый-Серый
BKGY Черный-Серый
WHGY Белый-Серый
BKGY Черный-Серый
14
4
X3 Модуль управления обогревом сиденья X3
1
X1 Модуль управления обогревом сиденья X1
G307 Туннель

Расположение деталей (узлов) Трехмерная схема жгутов
Внешний вид разъема и ремонт
Электрическая схема G120 и G307
Масса
BK Черный
2
Положительное напряжение аккумуляторной батареи
RDWH Красный-Белый
X2 Блок предохранителей - Под капотом X2

Внешний вид разъема и ремонт
69
F33UA Предохранитель

Электрическая схема Дерево Предохранители F1UA, F2UA, F6UA, F26UA, F31UA, F33UA, F34UA, F64UA и F67UA
Электрическая схема Питание Шина B+ UEC (5 из 6)
Вывод B+
RDWH Красный-Белый
X1 Модуль управления обогревом сиденья X1
X50A Блок предохранителей - Под капотом

Расположение деталей (узлов) Трехмерная схема жгутов
K29 Модуль управления обогревом сиденья
E14D Нагревательнеый элемент для обогрева подушки сиденья пассажира
E14C Нагревательнеый элемент для обогрева спинки сиденья пассажира
B+ (положительное напряжение аккумуляторной батареи)
Сигнал
Слабый опорный сигнал
Слабый опорный сигнал
Управление
Управление
X310 Жгут проводов кузова и жгут проводов сиденья водителя

Расположение деталей (узлов) Трехмерная схема жгутов Левостороннее управление
Расположение деталей (узлов) Трехмерная схема жгутов Правостороннее управление
Внешний вид разъема и ремонт Гнездо Левостороннее управление
Внешний вид разъема и ремонт Гнездо Правостороннее управление
3
7
2
4
6
7
2
4
6
Сигнал
Сигнал подушки NTC
WHBK Белый-Черный
X310 Жгут проводов кузова и жгут проводов сиденья водителя

Расположение деталей (узлов) Трехмерная схема жгутов Левостороннее управление
Расположение деталей (узлов) Трехмерная схема жгутов Правостороннее управление
Внешний вид разъема и ремонт Гнездо Левостороннее управление
Внешний вид разъема и ремонт Гнездо Правостороннее управление
15
WHBK Белый-Черный
X315 Жгут проводов кузова и жгут проводов сиденья переднего пассажира

Расположение деталей (узлов) Трехмерная схема жгутов Левостороннее управление
Расположение деталей (узлов) Трехмерная схема жгутов Правостороннее управление
Внешний вид разъема и ремонт Гнездо Левостороннее управление
Внешний вид разъема и ремонт Гнездо Правостороннее управление
15
WHBK Белый-Черный
5
X2 Модуль управления обогревом сиденья X2
15
Сиденье водителя с обогревом/охлаждением

Сиденье водителя с обогревом/охлаждением
Справочные данные по контроллерам

Справочные данные по контроллерам
Перечень основных электрических компонентов

Перечень основных электрических компонентов
   


https://vnx.su/ 🛠 Руководства по ремонту и эксплуатации для автомобилей

Поиск по сайту

Остались вопросы или пожелания? Пишите на почту: support@vnx.su

Карта Сайта