К началу документа
Aveo
На предыдущую страницу На следующую страницу
Главная страница GMDE Загрузить нединамическое оглавление Загрузить динамическое оглавление Помощь

РАЗДЕЛ 9D

СИСТЕМЫ СТЕКЛООЧИСТИТЕЛЕЙ / ОМЫВАТЕЛЕЙ

Внимание! Отсоедините провод от отрицательного вывода аккумулятора, прежде чем снимать или устанавливать какие-либо электрические устройства, а также в ситуации, когда есть возможность касания оголенных электрических контактов каким-либо инструментом или приспособлением. Отсоединение этого провода позволяет избежать травм и повреждения оборудования автомобиля. Кроме того, если не указано иное, зажигание должно находиться в положении LOCK.

ТЕХНИЧЕСКИЕ ХАРАКТЕРИСТИКИ

Моменты затяжки резьбовых соединений

ПРОГРАММА
Н•м
фунт-фут
фунт-дюйм
Винты брызговика передней колесной арки
1.5
-
13
Болты и гайки бачка омывателя
9
-
80
Гайка крепления рычага стеклоочистителя
10
-
88
Гайка рычага стеклоочистителя
22
-
195
Болты электродвигателя стеклоочистителей
10
-
88

ПРИНЦИПИАЛЬНЫЕ И МОНТАЖНЫЕ СХЕМЫ

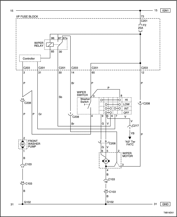
Цепь стеклоочистителей - нотчбэк


T8B19D01
Показать иллюстрациюПеревод текста в иллюстрациях


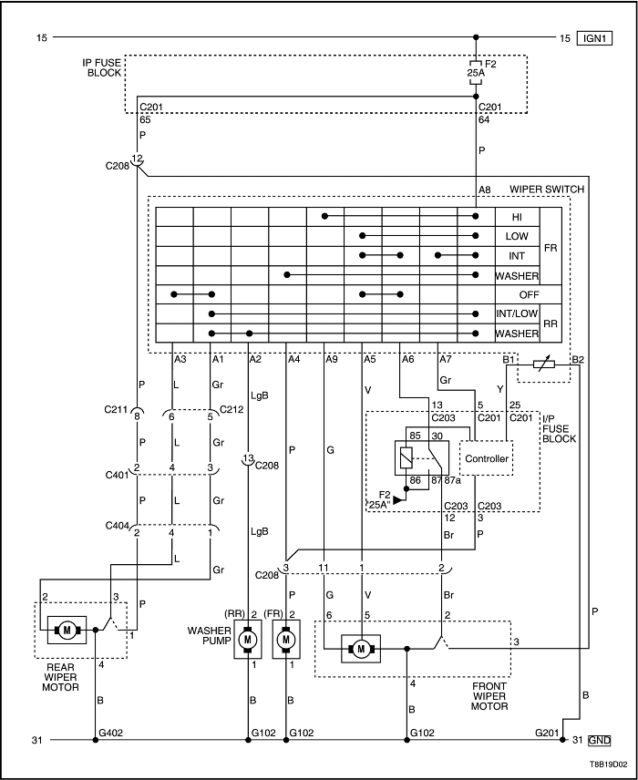
Цепь стеклоочистителей - хэтчбэк - задний стеклоочиститель - с прерывающимся режимом (int)


T8B19D02
Показать иллюстрациюПеревод текста в иллюстрациях


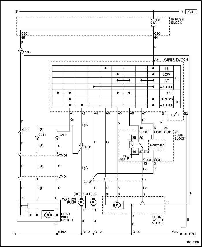
Цепь стеклоочистителей - хэтчбэк - задний стеклоочиститель - с прерывающимся режимом (int)


T8B19D03
Показать иллюстрациюПеревод текста в иллюстрациях


ДИАГНОСТИКА

Очистители ветрового стекла в прерывающемся режиме

Стеклоочистители ветрового стекла не работают ни на одной скорости

Шаг Операция Значения Да Нет
1
Проверить предохранитель f2.
Перегорел ли предохранитель f2?
-
Перейдите на Шаг 2
Перейдите на Шаг 3
2
  1. Проверьте на предмет короткого замыкания и при необходимости устраните его.
  2. Замените предохранитель.
Ремонт закончен?
-
Система в норме
-
3
Проверить подаваемое батареей напряжение на предохранитель f2.
Присутствует ли подаваемое батареей напряжение на предохранителе f2?
11-14 В
Перейдите на Шаг 5
Перейдите на Шаг 4
4
Устранить разрыв цепи электропитания для предохранителя f2.
Ремонт закончен?
-
Система в норме
-
5
  1. Установите зажигание в положение on.
  2. Перевести выключатель стеклоочистителей в положение hi.
Присутствует ли подаваемое батареей напряжение на выводе 6 разъема электродвигателя стеклоочистителей?
11-14 В
Перейдите на Шаг 6
Перейдите на Шаг 7
6
Заменить неисправный электродвигатель стеклоочистителей.
Ремонт закончен?
-
Система в норме
-
7
  1. Отсоединить разъем выключателя стеклоочистителей.
  2. Установите зажигание в положение on.
  3. С помощью вольтметра проверить наличие напряжения аккумулятора на выводе 3 разъема (a8 в хэтчбэке).
Имеется ли напряжение аккумулятора на выводе 3 разъема выключателя стеклоочистителей (a8 в хэтчбэке)?
11-14 В
Перейдите на Шаг 9
Перейдите на Шаг 8
8
Устранить разрыв цепи между выводом 3 разъема выключателя стеклоочистителей (a8 в хэтчбэке) и предохранителем f2.
Ремонт закончен?
-
Система в норме
-
9
  1. С помощью омметра проверить отсутствие обрывов цепи выключателя стеклоочистителей.
  2. Перевести выключатель стеклоочистителей в положение hi. Проверить отсутствие обрывов цепи между выводами 3 и 9 выключателя стеклоочистителей.
Есть ли электропроводность между выводами 3 и 9 (a8 и a9 в хэтчбэке)?
0 Ом
Перейдите на Шаг 11
Перейдите на Шаг 10
10
Заменить неисправный выключатель стеклоочистителей.
Ремонт закончен?
-
Система в норме
-
11
Устранить разрыв цепи между выключателем стеклоочистителей и электродвигателем стеклоочистителей.
Ремонт закончен?
-
Система в норме
-

Стеклоочистители не работают на скорости hi, работают на скорости lo

Шаг Операция Значения Да Нет
1
  1. Установите зажигание в положение on.
  2. Перевести выключатель стеклоочистителей в положение hi.
Присутствует ли подаваемое батареей напряжение на выводе 6 разъема электродвигателя стеклоочистителей?
11-14 В
Перейдите на Шаг 2
Перейдите на Шаг 3
2
Заменить неисправный электродвигатель стеклоочистителей.
Ремонт закончен?
-
Система в норме
-
3
  1. С помощью омметра проверить отсутствие обрывов цепи выключателя стеклоочистителей.
  2. Перевести выключатель стеклоочистителей в положение hi. Проверить отсутствие обрывов цепи между выводами 8 и 9 выключателя стеклоочистителей (A8 и A9 в хэтчбэке).
Отсутствуют ли обрывы цепи между клеммами 8 и 9?
0 Ом
Перейдите на Шаг 5
Перейдите на Шаг 4
4
Заменить неисправный выключатель стеклоочистителей.
Ремонт закончен?
-
Система в норме
-
5
Устранить разрыв цепи между выводом 9 разъема выключателя стеклоочистителей (a9 в хэтчбэке) и выводом 6 разъема электродвигателя стеклоочистителей.
Ремонт закончен?
-
Система в норме
-

Стеклоочистители не работают на скорости lo, работают на скорости hi

Шаг Операция Значения Да Нет
1
  1. Установите зажигание в положение on.
  2. Перевести выключатель стеклоочистителей в положение lo.
Присутствует ли подаваемое батареей напряжение на выводе 5 разъема электродвигателя стеклоочистителей?
11-14 В
Перейдите на Шаг 2
Перейдите на Шаг 3
2
Заменить неисправный электродвигатель стеклоочистителей.
Ремонт закончен?
-
Система в норме
-
3
  1. С помощью омметра проверить отсутствие обрывов цепи выключателя стеклоочистителей.
  2. Перевести выключатель стеклоочистителей в положение lo. Проверить отсутствие обрывов цепи между выводами 8 и 5 выключателя стеклоочистителей (A8 и A5 в хэтчбэке).
Отсутствуют ли обрывы цепи между клеммами 8 и 5?
0 Ом
Перейдите на Шаг 5
Перейдите на Шаг 4
4
Заменить неисправный выключатель стеклоочистителей.
Ремонт закончен?
-
Система в норме
-
5
Устранить разрыв цепи между выводом 5 разъема выключателя стеклоочистителей (a5 в хэтчбэке) и выводом 5 разъема электродвигателя стеклоочистителей.
Ремонт закончен?
-
Система в норме
-

Стеклоочистители не работают в прерывающемся режиме, работают на других скоростях

Рекомендации по диагностике

Реле стеклоочистителей расположено за панелью приборов, под переключателем регулирования освещения комбинации. Чтобы добраться к реле стеклоочистителей, снять переключатель регулирования освещения комбинации и боковую крышку панели приборов.
Шаг Операция Значения Да Нет
1
  1. Установите зажигание в положение on.
  2. С помощью вольтметра проверить подаваемое батареей напряжение на выводе 30 разъема реле стеклоочистителей.
Присутствует ли подаваемое батареей напряжение на выводе 30 разъема?
11-14 В
Перейдите на Шаг 3
Перейдите на Шаг 2
2
Устранить разрыв цепи между выводом 30 разъема реле стеклоочистителей и предохранителем f2.
Ремонт закончен?
-
Система в норме
-
3
  1. Установите зажигание в положение on.
  2. Перевести выключатель стеклоочистителей в положение int.
С помощью вольтметра проверить, присутствует ли подаваемое батареей напряжение на выводе i разъема реле стеклоочистителей?
11-14 В
Перейдите на Шаг 7
Перейдите на Шаг 4
4
  1. Установите зажигание в положение on.
  2. Перевести выключатель стеклоочистителей в положение int.
С помощью вольтметра проверить наличие напряжения аккумулятора на выводе 6 разъема выключателя стеклоочистителей (a6 в хэтчбэке)?
11-14 В
Перейдите на Шаг 6
Перейдите на Шаг 5
5
Заменить выключатель стеклоочистителей.
Ремонт закончен?
-
Система в норме
-
6
Устранить разрыв цепи между выводом 6 разъема выключателя стеклоочистителей (a6 в хэтчбэке) и выводом 30 разъема реле стеклоочистителей.
Ремонт закончен?
-
Система в норме
-
7
  1. Установите зажигание в положение on.
  2. Перевести выключатель стеклоочистителей в положение int.
С помощью вольтметра проверить, присутствует ли пульсирующее напряжение аккумулятора на выводе 30 разъема реле стеклоочистителей?
11-14 В
Перейдите на Шаг 11
Перейдите на Шаг 8
8
С помощью омметра проверить цепь соединения электромотора стеклочистителей с массой.
Исправна ли цепь массы?
0 Ом
Перейдите на Шаг 10
Перейдите на Шаг 9
9
Устранить разрыв цепи массы.
Ремонт закончен?
-
Система в норме
-
10
Заменить реле стеклоочистителей.
Ремонт закончен?
-
Система в норме
-
11
  1. Отсоединить разъем выключателя стеклоочистителей.
  2. Перевести выключатель стеклоочистителей в положение int.
  3. С помощью омметра проверить выключатель стеклоочистителей.
Есть ли электропроводность между выводами 5 и 6 (a5 и a6 в хэтчбэке)?
0 Ом
Перейдите на Шаг 13
Перейдите на Шаг 12
12
Заменить неисправный выключатель стеклоочистителей.
Ремонт закончен?
-
Система в норме
Перейдите на Шаг 14
13
Устранить разрыв цепи между выключателем стеклоочистителей и реле стеклоочистителей.
Ремонт закончен?
-
Система в норме
-
14
Заменить контроллер (sjb).
Ремонт закончен?
-
Система в норме
-

Стеклоочистители ветрового стекла не возвращаются в исходное положение

Шаг Операция Значения Да Нет
1
  1. Установите зажигание в положение on.
  2. С помощью вольтметра проверить подаваемое батареей напряжение на электродвигателе стеклоочистителей.
Присутствует ли подаваемое батареей напряжение на выводе 3 разъема электродвигателя стеклоочистителей?
11-14 В
Перейдите на Шаг 3
Перейдите на Шаг 2
2
Устранить разрыв цепи между электродвигателем стеклоочистителей и предохранителем f2.
-
Система в норме
-
3
  1. Установить зажигание в положение on
  2. Перевести выключатель стеклоочистителей в положение hi.
  3. С помощью вольтметра проверить импульс подаваемого батареей электропитания на электродвигателе стеклоочистителей при переводе выключателя стеклоочистителей в положение off.
Присутствуют ли импульсы подаваемого батареей напряжения на выводе 5 разъема электродвигателя стеклоочистителей при переключении выключателя стеклоочистителей в положение off (выключено)?
11-14 В
Перейдите на Шаг 5
Перейдите на Шаг 4
4
Заменить неисправный электродвигатель стеклоочистителей.
Ремонт закончен?
-
Система в норме
-
5
  1. Установите зажигание в положение on.
  2. Перевести выключатель стеклоочистителей в положение hi.
  3. С помощью вольтметра проверить импульс подаваемого батареей электропитания на реле стеклоочистителей при переводе выключателя стеклоочистителей в положение off.
Присутствуют ли импульсы подаваемого батареей напряжения на выводе 87а разъема реле стеклоочистителей при переключении выключателя стеклоочистителей в положение off (выключено)?
11-14 В
Перейдите на Шаг 7
Перейдите на Шаг 6
6
Устранить разрыв цепи между реле стеклоочистителей и электродвигателем стеклоочистителей.
Ремонт закончен?
-
Система в норме
-
7
  1. Отсоединить реле стеклоочистителей от разъема.
  2. С помощью омметра проверить отсутствие обрывов цепи реле.
Отсутствуют ли обрывы цепи между выводами 30 и 87а разъема реле стеклоочистителей?
0 Ом
Перейдите на Шаг 9
Перейдите на Шаг 8
8
Заменить неисправное реле стеклоочистителей.
Ремонт закончен?
-
Система в норме
-
9
Заменить неисправный выключатель стеклоочистителей.
Ремонт закончен?
-
Система в норме
-

Система омывателей ветрового стекла

Омыватель ветрового стекла не работает, стеклоочистители исправны

Шаг Операция Значения Да Нет
1
Работают ли стеклоочистители ветрового стекла при активизации выключателя омывателя?
-
Перейдите на Шаг 4
Перейдите на Шаг 2
2
  1. Установите зажигание в положение on.
  2. Активируя выключатель стеклоомывателя, с помощью вольтметра проверить подаваемое батареей напряжение на выключателе очистителей ветрового стекла.
Имеется ли напряжение аккумулятора на выводе 4 разъема выключателя стеклоочистителя ветрового стекла (a4 в хэтчбэке)?
11-14 В
Перейдите на Шаг 8
Перейдите на Шаг 3
3
Заменить выключатель стеклоочистителей ветрового стекла.
Ремонт закончен?
-
Система в норме
-
4
Есть ли жидкость в бачке омывателя ветрового стекла?
-
Перейдите на Шаг 6
Перейдите на Шаг 5
5
Наполнить бачок омывателя ветрового стекла.
Ремонт закончен?
-
Система в норме
-
6
Шланги или жиклеры омывателя ветрового стекла забиты или повреждены?
-
Перейдите на Шаг 7
Перейдите на Шаг 8
7
Отремонтировать шланги и жиклеры омывателя.
Ремонт закончен?
-
Система в норме
-
8
  1. Установите зажигание в положение on.
  2. Активировав омыватель ветрового стекла, с помощью вольтметра проверить подаваемое батареей напряжение на насосе омывателя ветрового стекла.
Присутствует ли подаваемое батареей напряжение на насосе омывателя ветрового стекла?
11-14 В
Перейдите на Шаг 10
Перейдите на Шаг 9
9
Устранить разрыв цепи между насосом омывателя ветрового стекла и выключателем очистителей ветрового стекла.
Ремонт закончен?
-
Система в норме
-
10
С помощью омметра проверить цепь массы насоса омывателя ветрового стекла.
Исправна ли цепь массы?
0 Ом
Перейдите на Шаг 12
Перейдите на Шаг 11
11
Устранить обрыв цепи массы насоса омывателя ветрового стекла.
Ремонт закончен?
-
Система в норме
-
12
Заменить насос омывателя ветрового стекла.
Ремонт закончен?
-
Система в норме
Перейдите на Шаг 11
13
Заменить контроллер (sjb).
Ремонт закончен?
-
Система в норме
-

ТЕХНИЧЕСКОЕ ОБСЛУЖИВАНИЕ И РЕМОНТ

ТЕХНИЧЕСКОЕ ОБСЛУЖИВАНИЕ БЕЗ ДЕМОНТАЖА С АВТОМОБИЛЯ



T3B19D02
Показать иллюстрациюПеревод текста в иллюстрациях


Рычаг очистителя ветрового стекла - типовой вариант

Процедура снятия

  1. Открыть капот.
  2. Снять колпак.
  3. Снять гайку с рычага стеклоочистителя.
  4. Стянуть рычаг стеклоочистителя.


T3B19D02
Показать иллюстрациюПеревод текста в иллюстрациях


Процедура установки

  1. Установить рычаг стеклоочистителя.
  2. Примечание: Непосредственный контакт разнородных металлов может привести к быстрой коррозии. Во избежание преждевременной коррозии используйте надлежащий крепеж.

  3. Закрепить рычаг стеклоочистителя с помощью гайки.
  4. Затянуть
    Затянуть гайку рычага стеклоочистителя с моментом 22 Н•м (195 фунт-дюйм).

  5. Снять колпак.
  6. Закрыть капот.


S6B19D01
Показать иллюстрациюПеревод текста в иллюстрациях


Моторедуктор стеклоочистителя ветрового стекла

Процедура снятия

  1. Отсоедините провод от отрицательного вывода аккумуляторной батареи.
  2. Перевести рычаги стеклоочистителей в правое положение.
  3. Снять левую часть вентиляционной решетки в облицовке рамы ветрового стекла. См. раздел 9R, «Передняя часть кузова».
  4. Снять гайку, крепящую систему тяг рычага стеклоочистителя к ведущему валу электродвигателя.


  5. S6B19D02
    Показать иллюстрациюПеревод текста в иллюстрациях


  6. Снять систему тяг рычага стеклоочистителя с ведущего вала электродвигателя.
  7. Отсоединить электрические разъемы.
  8. Снять болты и электродвигатель стеклоочистителей.


S6B19D02
Показать иллюстрациюПеревод текста в иллюстрациях


Процедура установки

    Примечание: Непосредственный контакт разнородных металлов может привести к быстрой коррозии. Во избежание преждевременной коррозии используйте надлежащий крепеж.

  1. Установить электродвигатель стеклоочистителей с помощью болтов.
  2. Затянуть
    Затянуть болты электродвигателя стеклоочистителей с моментом 10 Н•м (88 фунт-дюйм).

  3. Подсоединить электрический разъем.


  4. S6B19D01
    Показать иллюстрациюПеревод текста в иллюстрациях


  5. Надеть систему тяг рычага стеклоочистителя на ведущий вал электродвигателя.
  6. Установить систему тяг рычага стеклоочистителя на ведущий вал электродвигателя с помощью гайки.
  7. Затянуть
    Затянуть гайку системы тяг рычага стеклоочистителя с усилием 10 Н•м (88 фунт-дюйм).

  8. Установить левую часть вентиляционной решетки в облицовке рамы ветрового стекла. См. раздел 9R, «Передняя часть кузова».
  9. Присоедините провод к отрицательному выводу аккумуляторной батареи.


T5B39D02
Показать иллюстрациюПеревод текста в иллюстрациях


Щетка стеклоочистителя ветрового стекла

Процедура снятия

  1. Повернуть щетку стеклоочистителя на рычаге.
  2. Вытащить щетку стеклоочистителя из рычага.


T5B39D02
Показать иллюстрациюПеревод текста в иллюстрациях


Процедура установки

  1. Втолкнуть щетку стеклоочистителя в рычаг.


T5B39D03
Показать иллюстрациюПеревод текста в иллюстрациях


Вставка щетки стеклоочистителя ветрового стекла

Процедура снятия

  1. Стянуть вставку со щетки стеклоочистителя.


T5B39D03
Показать иллюстрациюПеревод текста в иллюстрациях


Процедура установки

  1. Натянуть вставку на щетку стеклоочистителя.


T3B19O01
Показать иллюстрациюПеревод текста в иллюстрациях


Бачок омывателя ветрового стекла

Процедура снятия

  1. Отсоедините провод от отрицательного вывода аккумуляторной батареи.
  2. Снять переднюю левую панель. См. раздел 2Е, «Шины и диски».
  3. Снять винты и брызговик передней колесной арки.


  4. T3B19D08
    Показать иллюстрациюПеревод текста в иллюстрациях


  5. Отсоединить шланг(и) омывателя от бачка.
  6. Отсоединить электрический(ие) разъем(ы) насоса бачка.
  7. Снять болты, гайки и бачок.


T3B19D08
Показать иллюстрациюПеревод текста в иллюстрациях


Процедура установки

    Примечание: Непосредственный контакт разнородных металлов может привести к быстрой коррозии. Во избежание преждевременной коррозии используйте надлежащий крепеж.

  1. Установить бачок с помощью гаек и болтов.
  2. Затянуть
    Затянуть гайки бачка омывателя с усилием 9 Н•м (80 фунт-дюйм).
    Затянуть болты бачка омывателя с усилием 9 Н•м (80 фунт-дюйм).

  3. Присоединить электрический(ие) разъем(ы) насоса бачка.
  4. Подсоединить шланг(и) омывателя к бачку омывателя.


  5. T3B19O01
    Показать иллюстрациюПеревод текста в иллюстрациях


  6. Установить брызговик передней колесной арки с помощью винтов.
  7. Затянуть
    Затянуть винты брызговика передней колесной арки с усилием 1,5 Н•м (13 фунт-дюйм).

  8. Установить переднее левое колесо. См. раздел 2Е, «Шины и диски».
  9. Присоедините провод к отрицательному выводу аккумуляторной батареи.


T3B19D09
Показать иллюстрациюПеревод текста в иллюстрациях


Насос омывателя ветрового стекла

Процедура снятия

  1. Отсоедините провод от отрицательного вывода аккумуляторной батареи.
  2. Снять переднее левое колесо. См. раздел 2Е, «Шины и диски».
  3. Снять винты и брызговик передней колесной арки.
  4. Отсоединить электрический разъем.
  5. Отсоединить шланг омывателя.
  6. Снять насос омывателя.


T3B19D09
Показать иллюстрациюПеревод текста в иллюстрациях


Процедура установки

  1. Установить насос омывателя.
  2. Подсоединить шланг омывателя.
  3. Подсоединить электрический разъем.
  4. Примечание: Непосредственный контакт разнородных металлов может привести к быстрой коррозии. Во избежание преждевременной коррозии используйте надлежащий крепеж.

  5. Установить брызговик передней колесной арки с помощью винтов.
  6. Затянуть
    Затянуть винты брызговика передней колесной арки с усилием 1,5 Н•м (13 фунт-дюйм).

  7. Установить переднее левое колесо. См. раздел 2Е, «Шины и диски».
  8. Присоедините провод к отрицательному выводу аккумуляторной батареи.


T3B19D10
Показать иллюстрациюПеревод текста в иллюстрациях


Жиклеры омывателя ветрового стекла

Процедура снятия

  1. Открыть капот.
  2. Отсоединить шланг омывателя от жиклера.
  3. Снять жиклер с капота.


T3B19D10
Показать иллюстрациюПеревод текста в иллюстрациях


Процедура установки

  1. Установить жиклер в капот.
  2. Подсоединить шланг омывателя к жиклеру.
  3. Закрыть капот.


S6B19D04
Показать иллюстрациюПеревод текста в иллюстрациях


Шланги омывателя ветрового стекла

Процедура снятия

  1. Открыть капот.
  2. Отсоединить шланг омывателя ветрового стекла от жиклеров омывателя на капоте.
  3. Снять переднюю левую панель. См. раздел 2Е, «Шины и диски».
  4. Снять винты и брызговик передней колесной арки.
  5. Отсоединить шланг омывателя от бачка омывателя.


S6B19D04
Показать иллюстрациюПеревод текста в иллюстрациях


Процедура установки

  1. Подсоединить шланг омывателя к бачку омывателя.
  2. Примечание: Непосредственный контакт разнородных металлов может привести к быстрой коррозии. Во избежание преждевременной коррозии используйте надлежащий крепеж.

  3. Установить брызговик передней колесной арки с помощью винтов.
  4. Затянуть
    Затянуть винты брызговика передней колесной арки с усилием 1,5 Н•м (13 фунт-дюйм).

  5. Установить переднее левое колесо. См. раздел 2Е, «Шины и диски».
  6. Подсоединить шланг омывателя ветрового стекла к жиклерам омывателя на капоте.
  7. Закрыть капот.

ОБЩЕЕ ОПИСАНИЕ И РАБОТА СИСТЕМЫ

Система стеклоочистителей ветрового стекла

Система стеклоочистителей ветрового стекла состоит из электродвигателя стеклоочистителей, системы тяг, рычагов стеклоочистителей со щетками и выключателя стеклоочистителей/омывателей. Цепь очистителей ветрового стекла включает в себя устройство автоматического возврата в исходное положение, которое состоит из червячной передачи и кулачкового диска, чтобы временно замыкать цепь, когда переключатель переводится в положении OFF. Система стеклоочистителей приводится в движение электродвигателем с магнитом постоянного типа. Электродвигатель стеклоочистителей ветрового стекла монтируется на щиток передка и соединяется непосредственно с системой тяг стеклоочистителей ветрового стекла.
Электродвигатель очистителей ветрового стекла имеет две скорости: LO (низкую) и HI (высокую), и способен работать в прерывающемся режиме. Выключатель стеклоочистителей является неотъемлемой частью выключателя стеклоочистителей/омывателей. Стеклоочистители ветрового стекла включаются рычагом, расположенным справа на рулевой колонке.

Система омывателей ветрового стекла

В систему омывателей ветрового стекла входят бачок с омывающей жидкостью, насос омывающей жидкости, шланги, жиклеры и выключатель стеклоочистителей/омывателей. Бачок омывателя ветрового стекла установлен за брызговиком колесной арки переднего левого колеса. К бачку прикреплен насос омывателя, подающий омывающую жидкость через шланги в два жиклера, установленных на капоте. Выключатель омывателей является неотъемлемой частью выключателя стеклоочистителей/омывателей. Омыватели ветрового стекла включаются рычагом, расположенным справа на рулевой колонке.


На предыдущую страницу На следующую страницу
https://vnx.su/ 🛠 Руководства по ремонту и эксплуатации для автомобилей

Поиск по сайту

Остались вопросы или пожелания? Пишите на почту: support@vnx.su

Карта Сайта