Tacuma-Rezzo
To Previous Page To Next Page



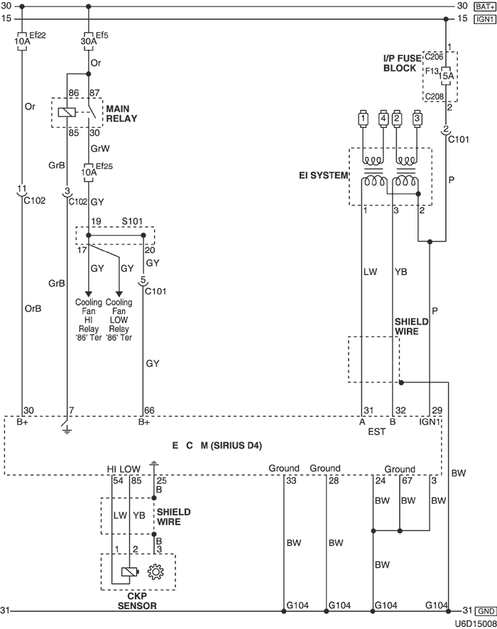
3. ECM (ENGINE CONTROL MODULE) - 1.6D (SIRIUS D4)

1) battery power supply, ground, ei system & ckp sensor circuit

U6D15008.png


a. CONNECTOR INFORMATION

connector no
(pin no, color)
connecting wiring harness connector position
C101(15 Pin, Black) Engine – Front Behind the Left Headlamp
C102 (16 pin, Black) Engine – Front Behind the Left Headlamp
C103 (6 Pin, Gray) Front – Engine Under the Engine Fuse Block
C206 (3 Pin, Brown) I/P Fuse Block – IP Front the I/P Fuse Block
C208 (14 Pin, White) I/P Fuse Block – Front Behind the I/P Fuse Block
S101 (White) Front Inside the Engine Fuse Block
G104 Engine Under the Intake Manifold

b. CONNECTOR IDENTIFICATION SYMBOL & PIN NUMBER POSITION

U6D1P003.png


c. POSITION OF CONNECTORS AND GROUNDS

U5D12005.png


d. SPLICE PACK

s101

U6D1S008.png


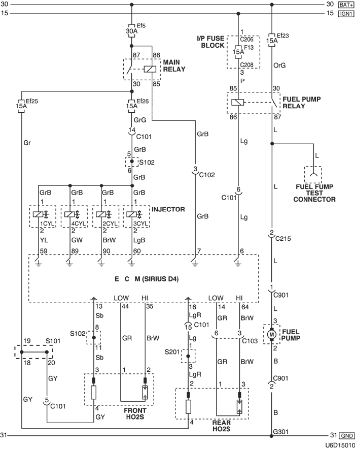
2) fuel pump, heated o2 sensor & injector circuit : euro iv

U6D15010.png


a. CONNECTOR INFORMATION

connector no
(pin no, color)
connecting wiring harness connector position
C101(15 Pin, Black) Engine – Front Behind the Left Headlamp
C102 (16 pin, Black) Engine – Front Behind the Left Headlamp
C103 (6 Pin, Gray) Front – Engine Under the Engine Fuse Block
C206 (3 Pin, Brown) I/P Fuse Block – IP Front the I/P Fuse Block
C208 (14 Pin, White) I/P Fuse Block – Front Behind the I/P Fuse Block
C215 (16 Pin, White) Floor – Front Under the I/P Fuse Block
C901 (6 Pin, Black) Fuel Tank – Floor Behind the Fuel Tank
S101 (White) Front Inside the Engine Fuse Block
S102 (Black) Engine Rear Intake Manifold
S201 (Colorless) Front Left Upper the Driver Leg Room
G301 Floor Under the Driver Room Floor

b. CONNECTOR IDENTIFICATION SYMBOL & PIN NUMBER POSITION

U6D1P004.png


c. POSITION OF CONNECTORS AND GROUNDS

U5D12005.png


d. SPLICE PACK

s101 (sirius d4)

U6D1S001.png


s102 (sirius d4)

U6D1S004.png


s201 (sirius d4)

U6D1S006.png


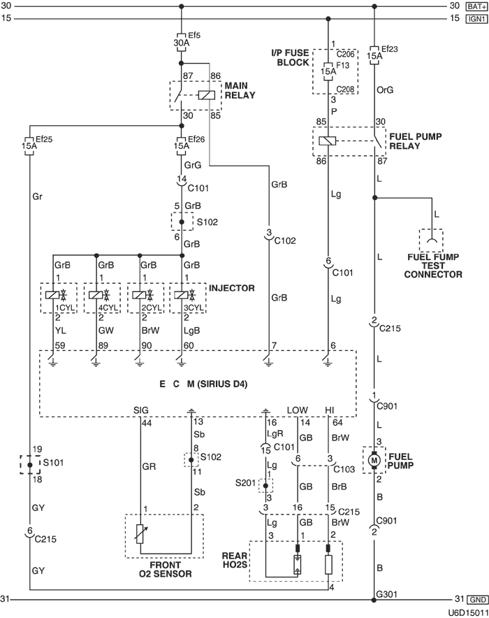
3) fuel pump, o2 sensor & injector circuit : euro iii

U6D15011.png


a. CONNECTOR INFORMATION

connector no
(pin no, color)
connecting wiring harness connector position
C101(15 Pin, Black) Engine – Front Behind the Left Headlamp
C102 (16 pin, Black) Engine – Front Behind the Left Headlamp
C103 (6 Pin, Gray) Front – Engine Under the Engine Fuse Block
C206 (3 Pin, Brown) I/P Fuse Block – IP Front the I/P Fuse Block
C208 (14 Pin, White) I/P Fuse Block – Front Behind the I/P Fuse Block
C215 (16 Pin, White) Floor – Front Under the I/P Fuse Block
C901 (6 Pin, Black) Fuel Tank – Floor Behind the Fuel Tank
S101 (White) Front Inside the Engine Fuse Block
S102 (Black) Engine Rear Intake Manifold
S201 (Colorless) Front Left Upper the Driver Leg Room
G301 Floor Under the Driver Room Floor

b. CONNECTOR IDENTIFICATION SYMBOL & PIN NUMBER POSITION

U6D1P005.png


c. POSITION OF CONNECTORS AND GROUNDS

U5D12005.png


d. SPLICE PACK

s101 (sirius d4)

U6D1S008.png


s102 (sirius d4)

U6D1S004.png


s201 (sirius d4)

U6D1S006.png


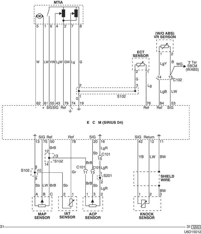
4) mtia & sensor (vr, map, iat, acp, ect & knock) circuit

U6D15012.png


a. CONNECTOR INFORMATION

connector no
(pin no, color)
connecting wiring harness connector position
C101(15 Pin, Black) Engine – Front Behind the Left Headlamp
C102 (16 pin, Black) Engine – Front Behind the Left Headlamp
S102 (Black) Engine Rear Intake Manifold
S201 (Colorless) Front Left Upper the Driver Leg Room

b. CONNECTOR IDENTIFICATION SYMBOL & PIN NUMBER POSITION

U6D1P006.png


c. POSITION OF CONNECTORS AND GROUNDS

U5D12005.png


d. SPLICE PACK

s102 (sirius d4)

U6D1S004.png


s201 (sirius d4)

U6D1S006.png


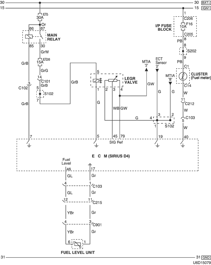
5) legr valve & fuel gauge circuit : euro iv

U6D15079.png


a. CONNECTOR INFORMATION

connector no
(pin no, color)
connecting wiring harness connector position
C101(15 Pin, Black) Engine – Front Behind the Left Headlamp
C102 (16 pin, Black) Engine – Front Behind the Left Headlamp
C103 (6 Pin, Gray) Front – Engine Under the Engine Fuse Block
C205 (14 Pin, White) I/P Fuse Block – IP Front the I/P Fuse Block
C206 (3 Pin, Brown) I/P Fuse Block – IP Front the I/P Fuse Block
C212 (18 Pin, Blue) Front – IP Left Upper the Driver Leg Room
C215 (16 Pin, White) Floor – Front Under the I/P Fuse Block
C901 (6 Pin, Black) Fuel Tank – Floor Behind the Fuel Tank
S102 (Black) Engine Rear Intake Manifold
S202 (Orange) IP Rear Right Instrument Panel

b. CONNECTOR IDENTIFICATION SYMBOL & PIN NUMBER POSITION

U6D1P009.png


c. POSITION OF CONNECTORS AND GROUNDS

U4D12018.png


d. SPLICE PACK

s102 (sirius d4)

U6D1S004.png


s202

U5D1S015.png


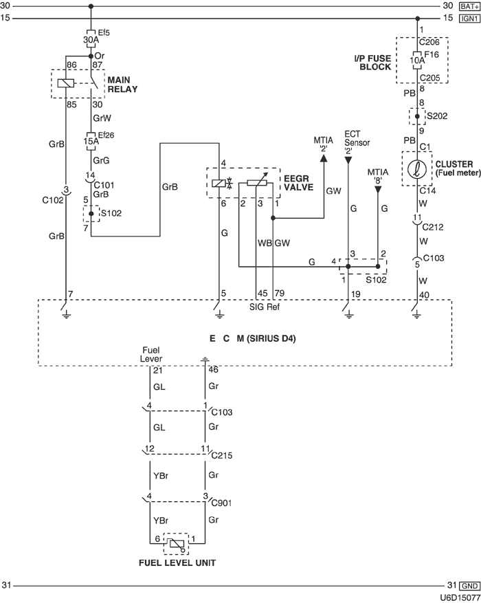
6) eegr valve & fuel gauge circuit : euro iii

U6D15077.png


a. CONNECTOR INFORMATION

connector no
(pin no, color)
connecting wiring harness connector position
C101(15 Pin, Black) Engine – Front Behind the Left Headlamp
C102 (16 pin, Black) Engine – Front Behind the Left Headlamp
C103 (6 Pin, Gray) Front – Engine Under the Engine Fuse Block
C205 (14 Pin, White) I/P Fuse Block – IP Front the I/P Fuse Block
C206 (3 Pin, Brown) I/P Fuse Block – IP Front the I/P Fuse Block
C212 (18 Pin, Blue) Front – IP Left Upper the Driver Leg Room
C215 (16 Pin, White) Floor – Front Under the I/P Fuse Block
C901 (6 Pin, Black) Fuel Tank – Floor Behind the Fuel Tank
S102 (Black) Engine Rear Intake Manifold
S202 (Orange) IP Rear Right Instrument Panel

b. CONNECTOR IDENTIFICATION SYMBOL & PIN NUMBER POSITION

U4D1P081.png


c. POSITION OF CONNECTORS AND GROUNDS

U4D12018.png


d. SPLICE PACK

s102 (sirius d4)

U6D1S004.png


s202

U5D1S015.png


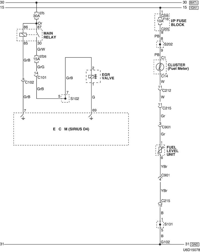
7) egr valve & fuel gauge circuit : non eobd

U6D15078.png


a. CONNECTOR INFORMATION

connector no
(pin no, color)
connecting wiring harness connector position
C101(15 Pin, Black) Engine – Front Behind the Left Headlamp
C102 (16 pin, Black) Engine – Front Behind the Left Headlamp
C205 (14 Pin, White) I/P Fuse Block – IP Front the I/P Fuse Block
C206 (3 Pin, Brown) I/P Fuse Block – IP Front the I/P Fuse Block
C212 (18 Pin, Blue) Front – IP Left Upper the Driver Leg Room
C215 (16 Pin, White) Floor – Front Under the I/P Fuse Block
C901 (6 Pin, Black) Fuel Tank – Floor Behind the Fuel Tank
S101 (White) Front Inside the Engine Fuse Block
S102 (Black) Engine Rear Intake Manifold
S202 (Orange) IP Rear Right Instrument Panel
G101 Battery Behind the Battery

b. CONNECTOR IDENTIFICATION SYMBOL & PIN NUMBER POSITION

U4D1P082.png


c. POSITION OF CONNECTORS AND GROUNDS

U5D12005.png


d. SPLICE PACK

s101

U6D1S008.png


s102 (sirius d4)

U6D1S004.png


s202

U5D1S015.png


8) evap canister purge solenoid, vss & cmp sensor circuit

U5D15086.png


a. CONNECTOR INFORMATION

connector no
(pin no, color)
connecting wiring harness connector position
C101(15 Pin, Black) Engine – Front Behind the Left Headlamp
C102 (16 pin, Black) Engine – Front Behind the Left Headlamp
C205 (14 Pin, White) I/P Fuse Block – IP Front the I/P Fuse Block
C206 (3 Pin, Brown) I/P Fuse Block – IP Front the I/P Fuse Block
C208 (14 Pin, White) I/P Fuse Block – Front Behind the I/P Fuse Block
C214 (26 pin, Yellow) Front – IP Left Upper the Driver Leg Room
C219 (15 Pin, White) IP – FATC Upper the Evaporator Housing
S101 (White) Front Inside the Engine Fuse Block
S202 (Orange) IP Rear Right Instrument Panel
S206 (Violet) IP Rear Left Instrument Panel
G201 IP Rear Right Instrument Panel

b. CONNECTOR IDENTIFICATION SYMBOL & PIN NUMBER POSITION

U5D1P032.png


c. POSITION OF CONNECTORS AND GROUNDS

U5D12005.png


U4D12006.png


d. SPLICE PACK

s101

U6D1S008.png


s202

U5D1S015.png


s206

U5D1S018.png


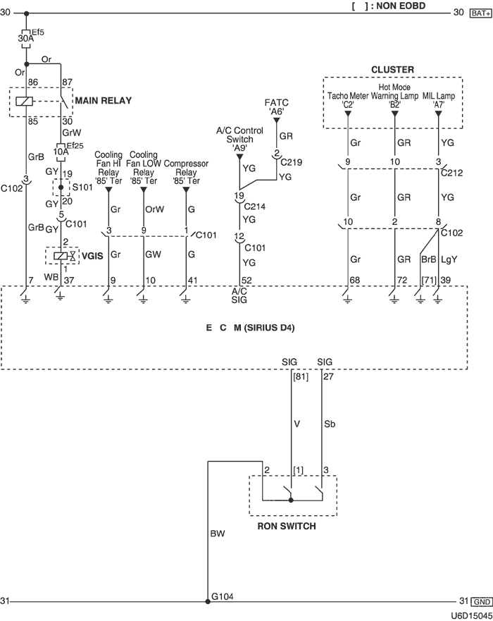
9) cluster, power steering pressure switch & ron switch circuit

U6D15045.png


a. CONNECTOR INFORMATION

connector no
(pin no, color)
connecting wiring harness connector position
C101(15 Pin, Black) Engine – Front Behind the Left Headlamp
C102 (16 pin, Black) Engine – Front Behind the Left Headlamp
C212 (18 Pin, Blue) Front – IP Left Upper the Driver Leg Room
C214 (26 Pin, Yellow) Front – IP Left Upper the Driver Leg Room
C219 (15 Pin, White) IP – FATC Upper the Evaporator Housing
S101 (White) Front Inside the Engine Fuse Block
G104 Engine Under the Intake Manifold

b. CONNECTOR IDENTIFICATION SYMBOL & PIN NUMBER POSITION

U4D1P084.png


c. POSITION OF CONNECTORS AND GROUNDS

U4D12024.png


U5D12005.png


d. SPLICE PACK

s101

U6D1S008.png


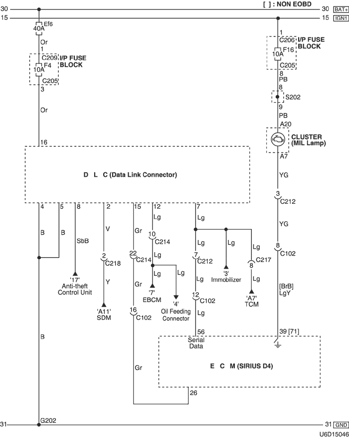
10) dlc (data link connector) circuit

U6D15046.png


a. CONNECTOR INFORMATION

connector no
(pin no, color)
connecting wiring harness connector position
C102 (16 pin, Black) Engine – Front Behind the Left Headlamp
C205 (14 Pin, White) I/P Fuse Block – IP Front the I/P Fuse Block
C206 (3 Pin, Brown) I/P Fuse Block – IP Front the I/P Fuse Block
C209 (1 Pin, Colorless) I/P Fuse Block – Front Behind the I/P Fuse Block
C212 (18 Pin, Blue) Front – IP Left Upper the Driver Leg Room
C214 (26 pin, Yellow) Front – IP Left Upper the Driver Leg Room
C217 (22 Pin, White) IP – TCM Center Upper the Driver Leg Room
C218 (4 Pin, White) Air Bag – IP Right Upper the Driver Leg Room
S202 (Orange) IP Rear Right Instrument Panel
G202 IP Rear Right Ashtray

b. CONNECTOR IDENTIFICATION SYMBOL & PIN NUMBER POSITION

U5D1P033.png


c. POSITION OF CONNECTORS AND GROUNDS

U4D12025.png


U5D12005.png


d. SPLICE PACK

s202

U5D1S015.png


To Previous Page To Next Page


https://vnx.su/ 🛠 Руководства по ремонту и эксплуатации для автомобилей

Поиск по сайту

Остались вопросы или пожелания? Пишите на почту: support@vnx.su

Карта Сайта