К началу документа
Tacuma-Rezzo
На предыдущую страницуНа следующую страницу
Главная страница GMDEЗагрузить нединамическое оглавлениеЗагрузить динамическое оглавлениеПомощь



3. КОНТРОЛЛЕР ЭЛЕКТРОННОЙ СИСТЕМЫ УПРАВЛЕНИЯ ДВИГАТЕЛЕМ - 1.6D (SIRIUS D4)

1) ЦЕПЬ ЭЛЕКТРОПИТАНИЯ ОТ АККУМУЛЯТОРНОЙ БАТАРЕИ, МАССЫ, СИСТЕМЫ ЭЛЕКТРОННОГО ЗАЖИГАНИЯ И ДАТЧИКА ПОЛОЖЕНИЯ КОЛЕНВАЛА

U6D15008.png
Показать иллюстрациюПеревод текста в иллюстрациях


а. ИНФОРМАЦИЯ О РАЗЪЁМЕ

№ РАЗЪЁМА
(№ И ЦВЕТ КОНТАКТА)
СОЕДИНИТЕЛЬНЫЙ ЖГУТ ПРОВОДОВПОЛОЖЕНИЕ РАЗЪЁМА
С101 (контакт 15, черный) Двигатель - передняя часть кузова За левой фарой
С102 (контакт 16, черный) Двигатель - передняя часть кузова За левой фарой
С103 (контакт 6, серый) Передняя часть - двигатель Под блоком предохранителей в моторном отсеке
C206 (контакт 3, коричневый) Блок предохранителей на приборной панели - приборная панель Передняя часть блока предохранителей на приборной панели
С208 (контакт 14, белый) Блок предохранителей на приборной панели - передняя часть За блоком предохранителей на приборной панели
S101 (бел.) ПЕРЕДНЯЯ ЧАСТЬ Внутренняя сторона блока предохранителей в моторном отсеке
G104 Двигатель Под впускным коллектором

б. УСЛОВНОЕ ОБОЗНАЧЕНИЕ & И НАХОЖДЕНИЕ НОМЕРА КОНТАКТА

U6D1P003.png
Показать иллюстрациюПеревод текста в иллюстрациях


в. РАСПОЛОЖЕНИЕ РАЗЪЁМОВ И СОЕДИНЕНИЙ МАССЫ

U5D12005.png
Показать иллюстрациюПеревод текста в иллюстрациях


г. КОНТАКТНАЯ КОЛОДКА

s101 (sirius d4)

U6D1S001.png
Показать иллюстрациюПеревод текста в иллюстрациях


2) ЦЕПЬ ТОПЛИВНОГО НАСОСА, ДАТЧИКА o2 С ПОДОГРЕВОМ И ФОРСУНКИ : euro iv

U6D15010.png
Показать иллюстрациюПеревод текста в иллюстрациях


а. ИНФОРМАЦИЯ О РАЗЪЁМЕ

№ РАЗЪЁМА
(№ И ЦВЕТ КОНТАКТА)
СОЕДИНИТЕЛЬНЫЙ ЖГУТ ПРОВОДОВПОЛОЖЕНИЕ РАЗЪЁМА
С101 (контакт 15, черный) Двигатель - передняя часть кузова За левой фарой
С102 (контакт 16, черный) Двигатель - передняя часть кузова За левой фарой
С103 (контакт 6, серый) Передняя часть - двигатель Под блоком предохранителей в моторном отсеке
C206 (контакт 3, коричневый) Блок предохранителей на приборной панели - приборная панель Передняя часть блока предохранителей на приборной панели
С208 (контакт 14, белый) Блок предохранителей на приборной панели - передняя часть За блоком предохранителей на приборной панели
С215 (контакт 16, белый) Пол - передняя часть Под блоком предохранителей на приборной панели
С901 (контакт 6, черный) Топливный бак - пол За топливным баком
S101 (бел.) ПЕРЕДНЯЯ ЧАСТЬ Внутренняя сторона блока предохранителей в моторном отсеке
S102 (черн.) Двигатель Задняя часть впускного коллектора
S201 (бесцветн.) ПЕРЕДНЯЯ ЧАСТЬ Левая верхняя часть пространства для ног водителя
G301 Пол Под полом в салоне автомобиля

б. УСЛОВНОЕ ОБОЗНАЧЕНИЕ & И НАХОЖДЕНИЕ НОМЕРА КОНТАКТА

U6D1P004.png
Показать иллюстрациюПеревод текста в иллюстрациях


в. РАСПОЛОЖЕНИЕ РАЗЪЁМОВ И СОЕДИНЕНИЙ МАССЫ

U5D12005.png
Показать иллюстрациюПеревод текста в иллюстрациях


г. КОНТАКТНАЯ КОЛОДКА

s101 (sirius d4)

U6D1S001.png
Показать иллюстрациюПеревод текста в иллюстрациях


s102 (sirius d4)

U6D1S004.png
Показать иллюстрациюПеревод текста в иллюстрациях


s201 (sirius d4)

U6D1S006.png
Показать иллюстрациюПеревод текста в иллюстрациях


3) ЦЕПЬ ТОПЛИВНОГО НАСОСА, ДАТЧИКА o2 И ФОРСУНКИ : euro iii

U6D15011.png
Показать иллюстрациюПеревод текста в иллюстрациях


а. ИНФОРМАЦИЯ О РАЗЪЁМЕ

№ РАЗЪЁМА
(№ И ЦВЕТ КОНТАКТА)
СОЕДИНИТЕЛЬНЫЙ ЖГУТ ПРОВОДОВПОЛОЖЕНИЕ РАЗЪЁМА
С101 (контакт 15, черный) Двигатель - передняя часть кузова За левой фарой
С102 (контакт 16, черный) Двигатель - передняя часть кузова За левой фарой
С103 (контакт 6, серый) Передняя часть - двигатель Под блоком предохранителей в моторном отсеке
C206 (контакт 3, коричневый) Блок предохранителей на приборной панели - приборная панель Передняя часть блока предохранителей на приборной панели
С208 (контакт 14, белый) Блок предохранителей на приборной панели - передняя часть За блоком предохранителей на приборной панели
С215 (контакт 16, белый) Пол - передняя часть Под блоком предохранителей на приборной панели
С901 (контакт 6, черный) Топливный бак - пол За топливным баком
S101 (бел.) ПЕРЕДНЯЯ ЧАСТЬ Внутренняя сторона блока предохранителей в моторном отсеке
S102 (черн.) Двигатель Задняя часть впускного коллектора
S201 (бесцветн.) ПЕРЕДНЯЯ ЧАСТЬ Левая верхняя часть пространства для ног водителя
G301 Пол Под полом в салоне автомобиля

б. УСЛОВНОЕ ОБОЗНАЧЕНИЕ & И НАХОЖДЕНИЕ НОМЕРА КОНТАКТА

U6D1P005.png
Показать иллюстрациюПеревод текста в иллюстрациях


в. РАСПОЛОЖЕНИЕ РАЗЪЁМОВ И СОЕДИНЕНИЙ МАССЫ

U5D12005.png
Показать иллюстрациюПеревод текста в иллюстрациях


г. КОНТАКТНАЯ КОЛОДКА

s101 (sirius d4)

U6D1S001.png
Показать иллюстрациюПеревод текста в иллюстрациях


s102 (sirius d4)

U6D1S004.png
Показать иллюстрациюПеревод текста в иллюстрациях


s201 (sirius d4)

U6D1S006.png
Показать иллюстрациюПеревод текста в иллюстрациях


4) ЦЕПЬ ПРИВОДА РЕГУЛЯТОРА ХОЛОСТОГО ХОДА ГЛАВНОЙ ДРОССЕЛЬНОЙ ЗАСЛОНКИ И ДАТЧИКОВ (ЭЛЕКТРОМАГНИТНОГО, АБСОЛЮТНОГО ДАВЛЕНИЯ В КОЛЛЕКТОРЕ, ТЕМПЕРАТУРЫ ВПУСКНОГО ВОЗДУХА, ДАВЛЕНИЯ КОМПРЕССОРА, ТЕМПЕРАТУРЫ ОХЛАЖДАЮЩЕЙ ЖИДКОСТИ И ДЕТОНАЦИИ)

U6D15012.png
Показать иллюстрациюПеревод текста в иллюстрациях


а. ИНФОРМАЦИЯ О РАЗЪЁМЕ

№ РАЗЪЁМА
(№ И ЦВЕТ КОНТАКТА)
СОЕДИНИТЕЛЬНЫЙ ЖГУТ ПРОВОДОВПОЛОЖЕНИЕ РАЗЪЁМА
С101 (контакт 15, черный) Двигатель - передняя часть кузова За левой фарой
С102 (контакт 16, черный) Двигатель - передняя часть кузова За левой фарой
S102 (черн.) Двигатель Задняя часть впускного коллектора
S201 (бесцветн.) ПЕРЕДНЯЯ ЧАСТЬ Левая верхняя часть пространства для ног водителя

б. УСЛОВНОЕ ОБОЗНАЧЕНИЕ & И НАХОЖДЕНИЕ НОМЕРА КОНТАКТА

U6D1P006.png
Показать иллюстрациюПеревод текста в иллюстрациях


в. РАСПОЛОЖЕНИЕ РАЗЪЁМОВ И СОЕДИНЕНИЙ МАССЫ

U5D12005.png
Показать иллюстрациюПеревод текста в иллюстрациях


г. КОНТАКТНАЯ КОЛОДКА

s102 (sirius d4)

U6D1S004.png
Показать иллюстрациюПеревод текста в иллюстрациях


s201 (sirius d4)

U6D1S006.png
Показать иллюстрациюПеревод текста в иллюстрациях


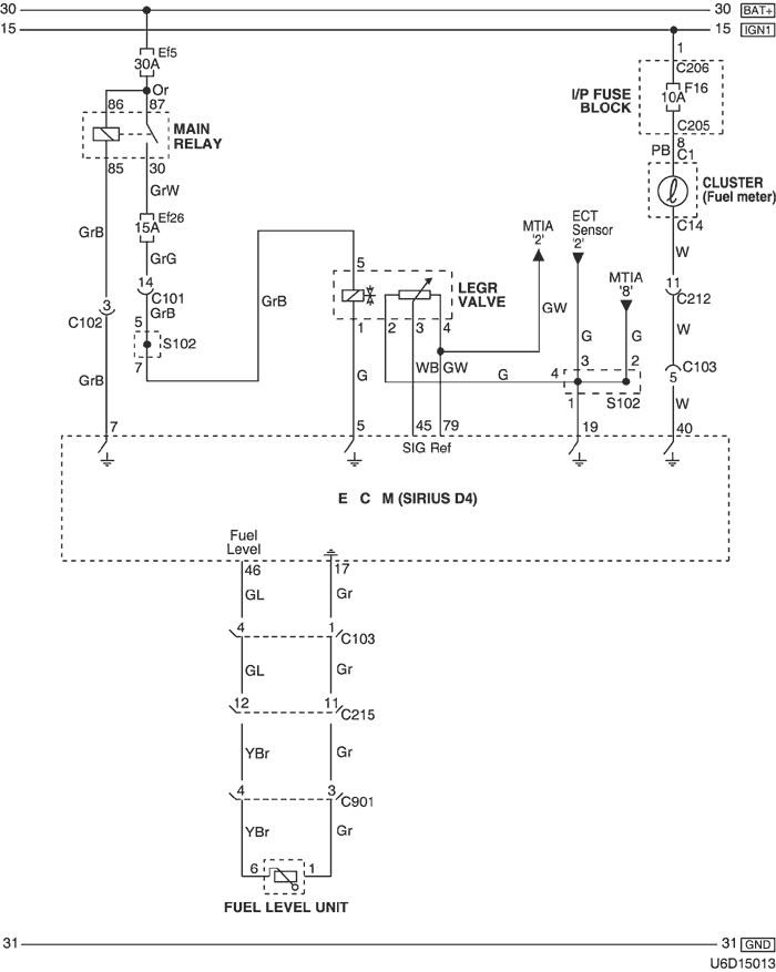
5) ЦЕПЬ КЛАПАНА РЕЦИРКУЛЯЦИИ ОТРАБОТАВШИХ ГАЗОВ И УКАЗАТЕЛЯ УРОВНЯ ТОПЛИВА : euro iv

U6D15013.png
Показать иллюстрациюПеревод текста в иллюстрациях


а. ИНФОРМАЦИЯ О РАЗЪЁМЕ

№ РАЗЪЁМА
(№ И ЦВЕТ КОНТАКТА)
СОЕДИНИТЕЛЬНЫЙ ЖГУТ ПРОВОДОВПОЛОЖЕНИЕ РАЗЪЁМА
С101 (контакт 15, черный) Двигатель - передняя часть кузова За левой фарой
С102 (контакт 16, черный) Двигатель - передняя часть кузова За левой фарой
С103 (контакт 6, серый) Передняя часть - двигатель Под блоком предохранителей в моторном отсеке
С205 (контакт 14, белый) Блок предохранителей на приборной панели - приборная панель Передняя часть блока предохранителей на приборной панели
C206 (контакт 3, коричневый) Блок предохранителей на приборной панели - приборная панель Передняя часть блока предохранителей на приборной панели
С212 (контакт 18, синий) Передняя часть - приборная панель Левая верхняя часть пространства для ног водителя
С215 (контакт 16, белый) Пол - передняя часть Под блоком предохранителей на приборной панели
С901 (контакт 6, черный) Топливный бак - пол За топливным баком
S102 (черн.) Двигатель Задняя часть впускного коллектора

б. УСЛОВНОЕ ОБОЗНАЧЕНИЕ & И НАХОЖДЕНИЕ НОМЕРА КОНТАКТА

U6D1P009.png
Показать иллюстрациюПеревод текста в иллюстрациях


в. РАСПОЛОЖЕНИЕ РАЗЪЁМОВ И СОЕДИНЕНИЙ МАССЫ

U5D12005.png
Показать иллюстрациюПеревод текста в иллюстрациях


U4D12006.png
Показать иллюстрациюПеревод текста в иллюстрациях


U4D12018.png
Показать иллюстрациюПеревод текста в иллюстрациях


г. КОНТАКТНАЯ КОЛОДКА

s102 (sirius d4)

U6D1S004.png
Показать иллюстрациюПеревод текста в иллюстрациях


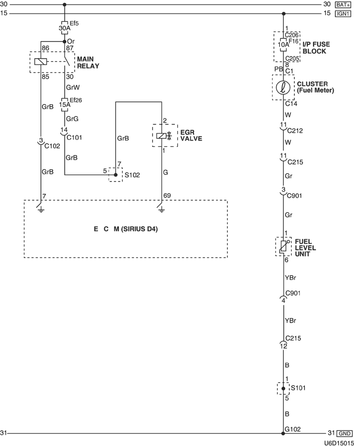
6) ЦЕПЬ КЛАПАНА РЕЦИРКУЛЯЦИИ ОТРАБОТАВШИХ ГАЗОВ И УКАЗАТЕЛЯ УРОВНЯ ТОПЛИВА : euro iii

U6D15014.png
Показать иллюстрациюПеревод текста в иллюстрациях


а. ИНФОРМАЦИЯ О РАЗЪЁМЕ

№ РАЗЪЁМА
(№ И ЦВЕТ КОНТАКТА)
СОЕДИНИТЕЛЬНЫЙ ЖГУТ ПРОВОДОВПОЛОЖЕНИЕ РАЗЪЁМА
С101 (контакт 15, черный) Двигатель - передняя часть кузова За левой фарой
С102 (контакт 16, черный) Двигатель - передняя часть кузова За левой фарой
С103 (контакт 6, серый) Передняя часть - двигатель Под блоком предохранителей в моторном отсеке
С205 (контакт 14, белый) Блок предохранителей на приборной панели - приборная панель Передняя часть блока предохранителей на приборной панели
C206 (контакт 3, коричневый) Блок предохранителей на приборной панели - приборная панель Передняя часть блока предохранителей на приборной панели
С212 (контакт 18, синий) Передняя часть - приборная панель Левая верхняя часть пространства для ног водителя
С215 (контакт 16, белый) Пол - передняя часть Под блоком предохранителей на приборной панели
С901 (контакт 6, черный) Топливный бак - пол За топливным баком
S102 (черн.) Двигатель Задняя часть впускного коллектора

б. УСЛОВНОЕ ОБОЗНАЧЕНИЕ & И НАХОЖДЕНИЕ НОМЕРА КОНТАКТА

U4D1P010.png
Показать иллюстрациюПеревод текста в иллюстрациях


в. РАСПОЛОЖЕНИЕ РАЗЪЁМОВ И СОЕДИНЕНИЙ МАССЫ

U5D12005.png
Показать иллюстрациюПеревод текста в иллюстрациях


U4D12006.png
Показать иллюстрациюПеревод текста в иллюстрациях


U4D12018.png
Показать иллюстрациюПеревод текста в иллюстрациях


г. КОНТАКТНАЯ КОЛОДКА

s102 (sirius d4)

U6D1S004.png
Показать иллюстрациюПеревод текста в иллюстрациях


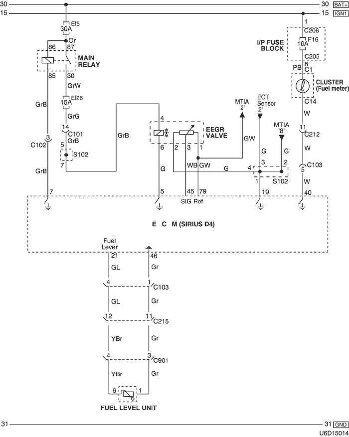
7) ЦЕПЬ КЛАПАНА РЕЦИРКУЛЯЦИИ ОТРАБОТАВШИХ ГАЗОВ И УКАЗАТЕЛЯ УРОВНЯ ТОПЛИВА : БЕЗ БОРТОВОЙ СИСТЕМЫ ДИАГНОСТИКИ

U6D15015.png
Показать иллюстрациюПеревод текста в иллюстрациях


а. ИНФОРМАЦИЯ О РАЗЪЁМЕ

№ РАЗЪЁМА
(№ И ЦВЕТ КОНТАКТА)
СОЕДИНИТЕЛЬНЫЙ ЖГУТ ПРОВОДОВПОЛОЖЕНИЕ РАЗЪЁМА
С101 (контакт 15, черный) Двигатель - передняя часть кузова За левой фарой
С102 (контакт 16, черный) Двигатель - передняя часть кузова За левой фарой
С205 (контакт 14, белый) Блок предохранителей на приборной панели - приборная панель Передняя часть блока предохранителей на приборной панели
C206 (контакт 3, коричневый) Блок предохранителей на приборной панели - приборная панель Передняя часть блока предохранителей на приборной панели
С212 (контакт 18, синий) Передняя часть - приборная панель Левая верхняя часть пространства для ног водителя
С215 (контакт 16, белый) Пол - передняя часть Под блоком предохранителей на приборной панели
С901 (контакт 6, черный) Топливный бак - пол За топливным баком
S101 (бел.) ПЕРЕДНЯЯ ЧАСТЬ Внутренняя сторона блока предохранителей в моторном отсеке
S102 (черн.) Двигатель Задняя часть впускного коллектора
G102 ПЕРЕДНЯЯ ЧАСТЬ За левой фарой

б. УСЛОВНОЕ ОБОЗНАЧЕНИЕ & И НАХОЖДЕНИЕ НОМЕРА КОНТАКТА

U5D1P004.png
Показать иллюстрациюПеревод текста в иллюстрациях


в. РАСПОЛОЖЕНИЕ РАЗЪЁМОВ И СОЕДИНЕНИЙ МАССЫ

U5D12005.png
Показать иллюстрациюПеревод текста в иллюстрациях


г. КОНТАКТНАЯ КОЛОДКА

s101 (sirius d4)

U6D1S001.png
Показать иллюстрациюПеревод текста в иллюстрациях


s102 (sirius d4)

U6D1S004.png
Показать иллюстрациюПеревод текста в иллюстрациях


8) ЦЕПЬ КЛАПАНА ПРОДУВКИ АДСОРБЕРА СИСТЕМЫ УЛАВЛИВАНИЯ ПАРОВ БЕНЗИНА, ДАТЧИКА СКОРОСТИ АВТОМОБИЛЯ И ДАТЧИКА ПОЛОЖЕНИЯ РАСПРЕДЕЛИТЕЛЬНОГО ВАЛА

U5D15014.png
Показать иллюстрациюПеревод текста в иллюстрациях


а. ИНФОРМАЦИЯ О РАЗЪЁМЕ

№ РАЗЪЁМА
(№ И ЦВЕТ КОНТАКТА)
СОЕДИНИТЕЛЬНЫЙ ЖГУТ ПРОВОДОВПОЛОЖЕНИЕ РАЗЪЁМА
С101 (контакт 15, черный) Двигатель - передняя часть кузова За левой фарой
С102 (контакт 16, черный) Двигатель - передняя часть кузова За левой фарой
С205 (контакт 14, белый) Блок предохранителей на приборной панели - приборная панель Передняя часть блока предохранителей на приборной панели
C206 (контакт 3, коричневый) Блок предохранителей на приборной панели - приборная панель Передняя часть блока предохранителей на приборной панели
С208 (контакт 14, белый) Блок предохранителей на приборной панели - передняя часть За блоком предохранителей на приборной панели
С214 (контакт 22, желтый) Передняя часть - приборная панель Левая верхняя часть пространства для ног водителя
С219 (контакт 15, белый) Приборная панель - автоматическое регулирование температуры Над корпусом испарителя
S101 (бел.) ПЕРЕДНЯЯ ЧАСТЬ Внутренняя сторона блока предохранителей в моторном отсеке
S204 (оранжев.) Приборная панель За приборной панелью в центре
G201 Приборная панель Над кронштейном блока предохранителей на приборной панели

б. УСЛОВНОЕ ОБОЗНАЧЕНИЕ & И НАХОЖДЕНИЕ НОМЕРА КОНТАКТА

U5D1P005.png
Показать иллюстрациюПеревод текста в иллюстрациях


в. РАСПОЛОЖЕНИЕ РАЗЪЁМОВ И СОЕДИНЕНИЙ МАССЫ

U5D12005.png
Показать иллюстрациюПеревод текста в иллюстрациях


U4D12006.png
Показать иллюстрациюПеревод текста в иллюстрациях


г. КОНТАКТНАЯ КОЛОДКА

s101 (sirius d4)

U6D1S001.png
Показать иллюстрациюПеревод текста в иллюстрациях


s204

U5D1S008.png
Показать иллюстрациюПеревод текста в иллюстрациях


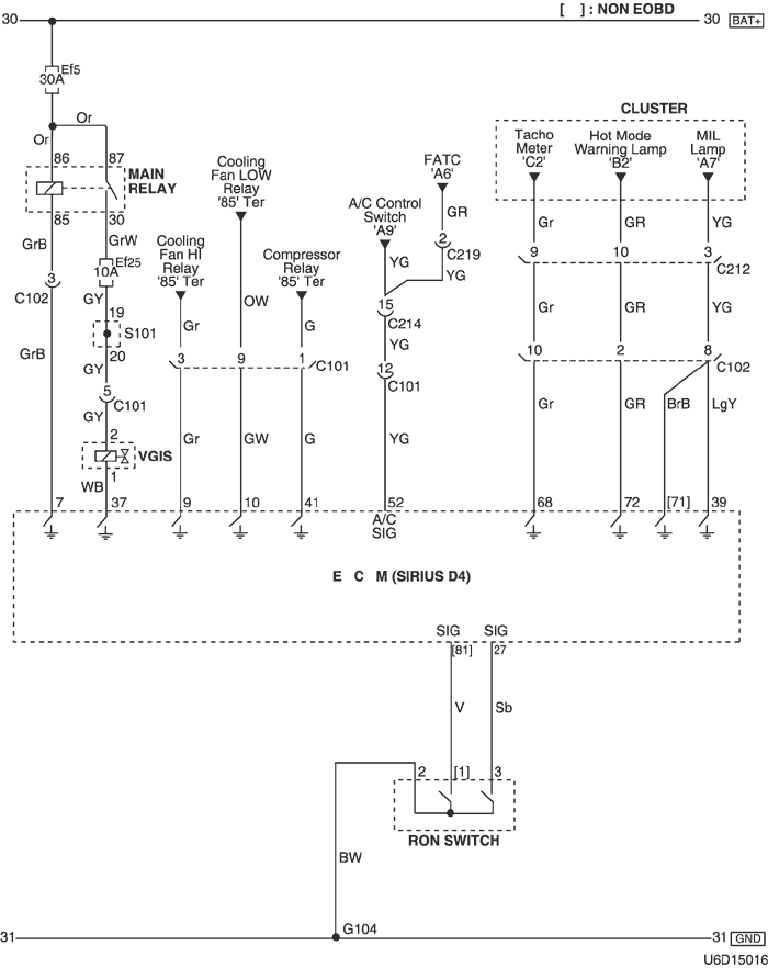
9) ЦЕПЬ КОМБИНАЦИИ ПРИБОРОВ, РЕЛЕ ДАВЛЕНИЯ В СИСТЕМЕ РУЛЕВОГО УПРАВЛЕНИЯ С ГИДРОУСИЛИТЕЛЕМ И ПЕРЕКЛЮЧАТЕЛЯ ОКТАНОВОГО ЧИСЛА

U6D15016.png
Показать иллюстрациюПеревод текста в иллюстрациях


а. ИНФОРМАЦИЯ О РАЗЪЁМЕ

№ РАЗЪЁМА
(№ И ЦВЕТ КОНТАКТА)
СОЕДИНИТЕЛЬНЫЙ ЖГУТ ПРОВОДОВПОЛОЖЕНИЕ РАЗЪЁМА
С101 (контакт 15, черный) Двигатель - передняя часть кузова За левой фарой
С102 (контакт 16, черный) Двигатель - передняя часть кузова За левой фарой
С212 (контакт 18, синий) Передняя часть - приборная панель Левая верхняя часть пространства для ног водителя
С214 (контакт 22, желтый) Передняя часть - приборная панель Левая верхняя часть пространства для ног водителя
С219 (контакт 15, белый) Приборная панель - автоматическое регулирование температуры Над корпусом испарителя
S101 (бел.) ПЕРЕДНЯЯ ЧАСТЬ Внутренняя сторона блока предохранителей в моторном отсеке
G104 Двигатель Под впускным коллектором

б. УСЛОВНОЕ ОБОЗНАЧЕНИЕ & И НАХОЖДЕНИЕ НОМЕРА КОНТАКТА

U4D1P013.png
Показать иллюстрациюПеревод текста в иллюстрациях


в. РАСПОЛОЖЕНИЕ РАЗЪЁМОВ И СОЕДИНЕНИЙ МАССЫ

U4D12003.png
Показать иллюстрациюПеревод текста в иллюстрациях


U5D12005.png
Показать иллюстрациюПеревод текста в иллюстрациях


г. КОНТАКТНАЯ КОЛОДКА

s101 (sirius d4)

U6D1S001.png
Показать иллюстрациюПеревод текста в иллюстрациях


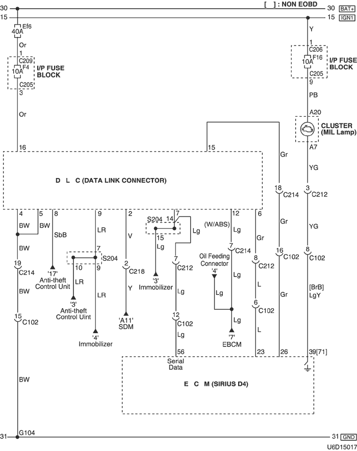
10) ЦЕПЬ КОЛОДКИ ДИАГНОСТИКИ

U6D15017.png
Показать иллюстрациюПеревод текста в иллюстрациях


а. ИНФОРМАЦИЯ О РАЗЪЁМЕ

№ РАЗЪЁМА
(№ И ЦВЕТ КОНТАКТА)
СОЕДИНИТЕЛЬНЫЙ ЖГУТ ПРОВОДОВПОЛОЖЕНИЕ РАЗЪЁМА
С102 (контакт 16, черный) Двигатель - передняя часть кузова За левой фарой
С205 (контакт 14, белый) Блок предохранителей на приборной панели - приборная панель Передняя часть блока предохранителей на приборной панели
C206 (контакт 3, коричневый) Блок предохранителей на приборной панели - приборная панель Передняя часть блока предохранителей на приборной панели
C209 (контакт 1, бесцветный) Блок предохранителей на приборной панели - передняя часть За блоком предохранителей на приборной панели
С212 (контакт 18, синий) Передняя часть - приборная панель Левая верхняя часть пространства для ног водителя
С214 (контакт 22, желтый) Передняя часть - приборная панель Левая верхняя часть пространства для ног водителя
С218 (контакт 4, белый) Подушка безопасности - приборная панель Правая верхняя часть пространства для ног водителя
S204 (оранжев.) Приборная панель За приборной панелью в центре
G104 Двигатель Под впускным коллектором

б. УСЛОВНОЕ ОБОЗНАЧЕНИЕ & И НАХОЖДЕНИЕ НОМЕРА КОНТАКТА

U5D1P006.png
Показать иллюстрациюПеревод текста в иллюстрациях


в. РАСПОЛОЖЕНИЕ РАЗЪЁМОВ И СОЕДИНЕНИЙ МАССЫ

U5D12005.png
Показать иллюстрациюПеревод текста в иллюстрациях


U4D12004.png
Показать иллюстрациюПеревод текста в иллюстрациях


г. КОНТАКТНАЯ КОЛОДКА

s204

U5D1S008.png
Показать иллюстрациюПеревод текста в иллюстрациях


На предыдущую страницуНа следующую страницу


https://vnx.su/ 🛠 Руководства по ремонту и эксплуатации для автомобилей

Поиск по сайту

Остались вопросы или пожелания? Пишите на почту: support@vnx.su

Карта Сайта