К началу документа
Kalos/Aveo
На предыдущую страницу На следующую страницу
Главная страница GMDE Загрузить нединамическое оглавление Загрузить динамическое оглавление Помощь



3. ECM (ENGINE CONTROL MODULE) : HV - 240

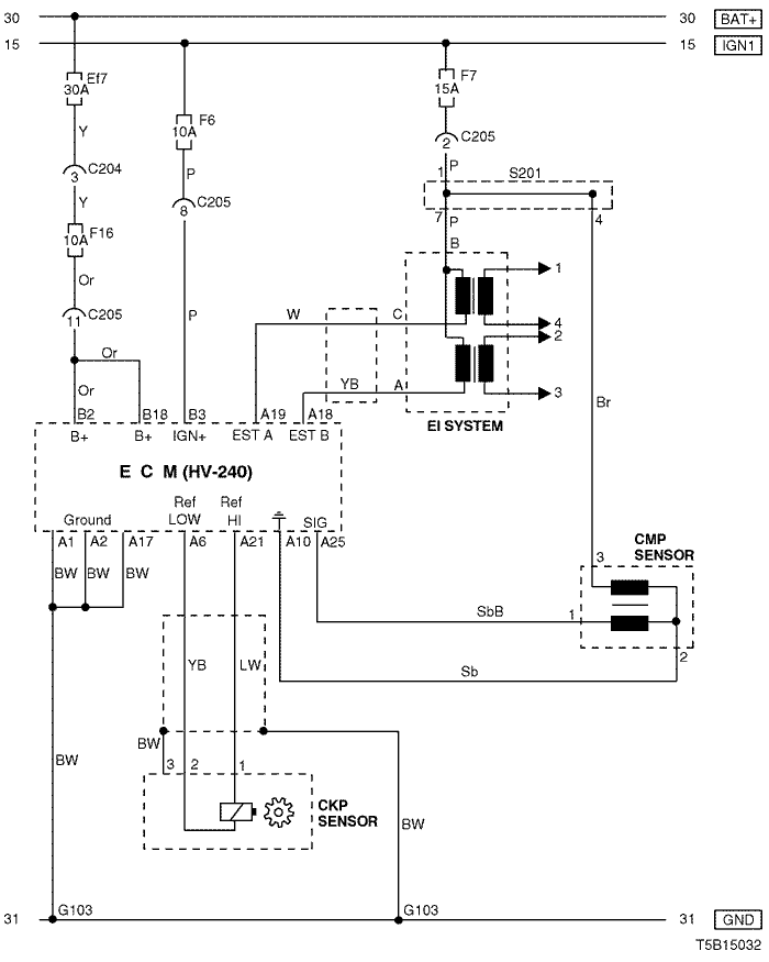
1) battery power supply, ground, ei system, ckp sensor & cmp sensor circuit

T5B15032.png
Показать иллюстрациюПеревод текста в иллюстрациях


а. ИНФОРМАЦИЯ О РАЗЪЁМЕ

№ РАЗЪЁМА
(№ И ЦВЕТ КОНТАКТА)
СОЕДИНИТЕЛЬНЫЙ ЖГУТ ПРОВОДОВ ПОЛОЖЕНИЕ РАЗЪЁМА
C204 (4 Pin, White) Front – IP Under I/P Fuse Block
C205 (18 Pin, Gray) IP – Engine Behind I/P Fuse Block
G103 Engine Next to #4 Injector

б. УСЛОВНОЕ ОБОЗНАЧЕНИЕ & И НАХОЖДЕНИЕ НОМЕРА КОНТАКТА

T5B1P012.png
Показать иллюстрациюПеревод текста в иллюстрациях


в. РАСПОЛОЖЕНИЕ РАЗЪЁМОВ И СОЕДИНЕНИЙ МАССЫ

T3B12013.png
Показать иллюстрациюПеревод текста в иллюстрациях


T3B12012.png
Показать иллюстрациюПеревод текста в иллюстрациях


г. КОНТАКТНАЯ КОЛОДКА

s201

T3B1S002.png
Показать иллюстрациюПеревод текста в иллюстрациях


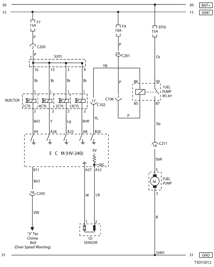
2) fuel pump, injector & o2 sensor circuit

T3D15012.png
Показать иллюстрациюПеревод текста в иллюстрациях


а. ИНФОРМАЦИЯ О РАЗЪЁМЕ

№ РАЗЪЁМА
(№ И ЦВЕТ КОНТАКТА)
СОЕДИНИТЕЛЬНЫЙ ЖГУТ ПРОВОДОВ ПОЛОЖЕНИЕ РАЗЪЁМА
C102 (20 Pin, White) Engine – Front Engine Room Fuse Block
C106 (8 Pin, Black) Front - Body Behind Left A Pillar
C201 (18 Pin, Blue) Body – IP Under I/P Fuse Block
C205 (18 Pin, Gray) IP – Engine Behind I/P Fuse Block
C211 (22 Pin, Yellow) Front – Body Under Left A Pillar
G401 Body (H/B) Left Tail Gate Panel

б. УСЛОВНОЕ ОБОЗНАЧЕНИЕ & И НАХОЖДЕНИЕ НОМЕРА КОНТАКТА

T5B1P013.png
Показать иллюстрациюПеревод текста в иллюстрациях


в. РАСПОЛОЖЕНИЕ РАЗЪЁМОВ И СОЕДИНЕНИЙ МАССЫ

T3B12013.png
Показать иллюстрациюПеревод текста в иллюстрациях


T3B12012.png
Показать иллюстрациюПеревод текста в иллюстрациях


г. КОНТАКТНАЯ КОЛОДКА

s201

T3B1S002.png
Показать иллюстрациюПеревод текста в иллюстрациях


3) iac & sensor (map, ect, tp, iat, knock, acp) circuit

T3B15010.png
Показать иллюстрациюПеревод текста в иллюстрациях


а. ИНФОРМАЦИЯ О РАЗЪЁМЕ

№ РАЗЪЁМА
(№ И ЦВЕТ КОНТАКТА)
СОЕДИНИТЕЛЬНЫЙ ЖГУТ ПРОВОДОВ ПОЛОЖЕНИЕ РАЗЪЁМА
C205 (18 Pin, Gray) IP – Engine Behind I/P Fuse Block

б. УСЛОВНОЕ ОБОЗНАЧЕНИЕ & И НАХОЖДЕНИЕ НОМЕРА КОНТАКТА

T3B1P010.png
Показать иллюстрациюПеревод текста в иллюстрациях


в. РАСПОЛОЖЕНИЕ РАЗЪЁМОВ И СОЕДИНЕНИЙ МАССЫ

T3B12013.png
Показать иллюстрациюПеревод текста в иллюстрациях


T3B12012.png
Показать иллюстрациюПеревод текста в иллюстрациях


г. КОНТАКТНАЯ КОЛОДКА

s201

T3B1S002.png
Показать иллюстрациюПеревод текста в иллюстрациях


4) evap canister purge solenoid, cluster & vss circuit

T3B15011.png
Показать иллюстрациюПеревод текста в иллюстрациях


а. ИНФОРМАЦИЯ О РАЗЪЁМЕ

№ РАЗЪЁМА
(№ И ЦВЕТ КОНТАКТА)
СОЕДИНИТЕЛЬНЫЙ ЖГУТ ПРОВОДОВ ПОЛОЖЕНИЕ РАЗЪЁМА
C102 (20 Pin, White) Engine – Front Engine Room Fuse Block
C202 (11 Pin, White) TCM – IP Behind I/P Fuse Block
C205 (18 Pin, Gray) IP – Engine Behind I/P Fuse Block
G103 Engine Next to #4 Injector
G202 IP Behind Right Ashtray

б. УСЛОВНОЕ ОБОЗНАЧЕНИЕ & И НАХОЖДЕНИЕ НОМЕРА КОНТАКТА

T3B1P011.png
Показать иллюстрациюПеревод текста в иллюстрациях


в. РАСПОЛОЖЕНИЕ РАЗЪЁМОВ И СОЕДИНЕНИЙ МАССЫ

T3B12013.png
Показать иллюстрациюПеревод текста в иллюстрациях


г. КОНТАКТНАЯ КОЛОДКА

s201

T3B1S002.png
Показать иллюстрациюПеревод текста в иллюстрациях


s202

T5B1S004.png
Показать иллюстрациюПеревод текста в иллюстрациях


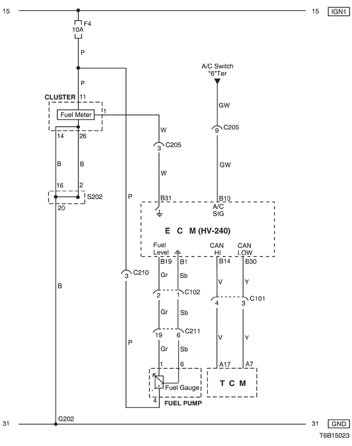
5) cluster, fuel pump & tcm circuit

T6B15023.png
Показать иллюстрациюПеревод текста в иллюстрациях


а. ИНФОРМАЦИЯ О РАЗЪЁМЕ

№ РАЗЪЁМА
(№ И ЦВЕТ КОНТАКТА)
СОЕДИНИТЕЛЬНЫЙ ЖГУТ ПРОВОДОВ ПОЛОЖЕНИЕ РАЗЪЁМА
C101 (4 Pin, Black) Engine – TCM Behind Coolant Reservoir
C102 (20 Pin, White) Engine – Front Engine Room Fuse Block
C205 (18 Pin, Gray) IP – Engine Behind I/P Fuse Block
C211 (22 Pin, Yellow) Front – Body Under Left A Pillar
G202 IP Behind Right Ashtray

б. УСЛОВНОЕ ОБОЗНАЧЕНИЕ & И НАХОЖДЕНИЕ НОМЕРА КОНТАКТА

T5B1P014.png
Показать иллюстрациюПеревод текста в иллюстрациях


в. РАСПОЛОЖЕНИЕ РАЗЪЁМОВ И СОЕДИНЕНИЙ МАССЫ

T3B12013.png
Показать иллюстрациюПеревод текста в иллюстрациях


T3B12020.png
Показать иллюстрациюПеревод текста в иллюстрациях


г. КОНТАКТНАЯ КОЛОДКА

s202

T5B1S004.png
Показать иллюстрациюПеревод текста в иллюстрациях


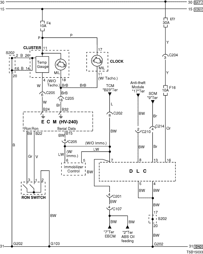
6) dlc, mil lamp & ron switch circuit

T5B15033.png
Показать иллюстрациюПеревод текста в иллюстрациях


а. ИНФОРМАЦИЯ О РАЗЪЁМЕ

№ РАЗЪЁМА
(№ И ЦВЕТ КОНТАКТА)
СОЕДИНИТЕЛЬНЫЙ ЖГУТ ПРОВОДОВ ПОЛОЖЕНИЕ РАЗЪЁМА
C107 (10 Pin, Black) Front – Body Behind Left A Pillar
C201 (18 Pin, Blue) Body – IP Under I/P Fuse Block
C202 (11 Pin, White) TCM – IP Behind I/P Fuse Block
C204 (4 Pin, White) Front – IP Under I/P Fuse Block
C205 (18 Pin, Gray) IP – Engine Behind I/P Fuse Block
C210 (8 Pin, Green) IP – Body Under Left A Pillar
C214 (4 Pin, White) Air Bag - IP Behind Audio
G103 Engine Next to #4 Injector
G202 IP Behind Right Ashtray

б. УСЛОВНОЕ ОБОЗНАЧЕНИЕ & И НАХОЖДЕНИЕ НОМЕРА КОНТАКТА

T5B1P056.png
Показать иллюстрациюПеревод текста в иллюстрациях


в. РАСПОЛОЖЕНИЕ РАЗЪЁМОВ И СОЕДИНЕНИЙ МАССЫ

T3B12020.png
Показать иллюстрациюПеревод текста в иллюстрациях


T3B12004.png
Показать иллюстрациюПеревод текста в иллюстрациях


T3B12013.png
Показать иллюстрациюПеревод текста в иллюстрациях


г. КОНТАКТНАЯ КОЛОДКА

s202

T5B1S004.png
Показать иллюстрациюПеревод текста в иллюстрациях


На предыдущую страницу На следующую страницу


https://vnx.su/ 🛠 Руководства по ремонту и эксплуатации для автомобилей

Поиск по сайту

Остались вопросы или пожелания? Пишите на почту: support@vnx.su

Карта Сайта