К началу документа
MATIZ
На предыдущую страницуНа следующую страницу
Главная страница GMDEЗагрузить нединамическое оглавлениеЗагрузить динамическое оглавлениеПомощь



5. КОНДИЦИОНЕР ВОЗДУХА

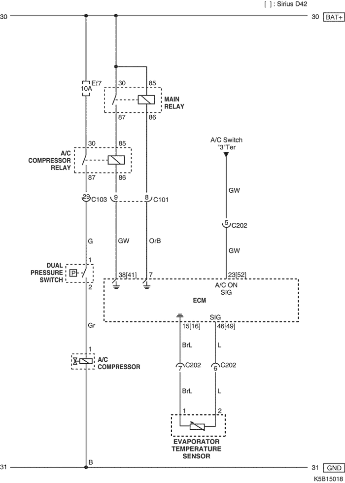
1) ЦЕПЬ КОМПРЕССОРА КОНДИЦИОНЕРА, ДАТЧИКА ТЕМПЕРАТУРЫ ИСПАРИТЕЛЯ

K5B15018.png
Показать иллюстрациюПеревод текста в иллюстрациях


а. ИНФОРМАЦИЯ О РАЗЪЁМЕ

№ РАЗЪЁМА
(№ И ЦВЕТ КОНТАКТА)
СОЕДИНИТЕЛЬНЫЙ ЖГУТ ПРОВОДОВПОЛОЖЕНИЕ РАЗЪЁМА
С101 (контакт 32, черный) Двигатель - блок предохранителей в моторном отсеке Блок предохранителей в моторном отсеке
C103 (контакт 32, коричневый) Передняя часть кузова - блок предохранителей в моторном отсеке Блок предохранителей в моторном отсеке
С202 (контакт 23, белый) Двигатель - приборная панель Левая часть пространства для ног водителя

б. УСЛОВНОЕ ОБОЗНАЧЕНИЕ & И НАХОЖДЕНИЕ НОМЕРА КОНТАКТА

K5B1P018.png
Показать иллюстрациюПеревод текста в иллюстрациях


в. РАСПОЛОЖЕНИЕ РАЗЪЁМОВ И СОЕДИНЕНИЙ МАССЫ

K5B12005.png
Показать иллюстрациюПеревод текста в иллюстрациях


K5B12004.png
Показать иллюстрациюПеревод текста в иллюстрациях


K5B12009.png
Показать иллюстрациюПеревод текста в иллюстрациях


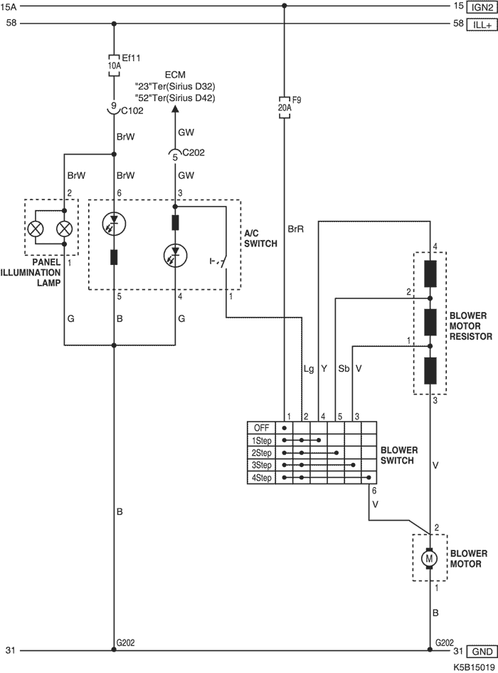
2) ЦЕПЬ ПЕРЕКЛЮЧАТЕЛЯ КОНДИЦИОНЕРА, ДВИГАТЕЛЯ ВЕНТИЛЯТОРА И РЕЗИСТОРА ЭЛЕКТРОВЕНТИЛЯТОРА

K5B15019.png
Показать иллюстрациюПеревод текста в иллюстрациях


а. ИНФОРМАЦИЯ О РАЗЪЁМЕ

№ РАЗЪЁМА
(№ И ЦВЕТ КОНТАКТА)
СОЕДИНИТЕЛЬНЫЙ ЖГУТ ПРОВОДОВПОЛОЖЕНИЕ РАЗЪЁМА
С102 (контакт 32, серый) Приборная панель - блок предохранителей в моторном отсеке Блок предохранителей в моторном отсеке
С202 (контакт 23, белый) Двигатель - приборная панель Левая часть пространства для ног водителя
G202 Приборная панель Под напольной консолью

б. УСЛОВНОЕ ОБОЗНАЧЕНИЕ & И НАХОЖДЕНИЕ НОМЕРА КОНТАКТА

K5B1P019.png
Показать иллюстрациюПеревод текста в иллюстрациях


в. РАСПОЛОЖЕНИЕ РАЗЪЁМОВ И СОЕДИНЕНИЙ МАССЫ

K5B12005.png
Показать иллюстрациюПеревод текста в иллюстрациях


K5B12009.png
Показать иллюстрациюПеревод текста в иллюстрациях


На предыдущую страницуНа следующую страницу


https://vnx.su/ 🛠 Руководства по ремонту и эксплуатации для автомобилей

Поиск по сайту

Остались вопросы или пожелания? Пишите на почту: support@vnx.su

Карта Сайта