К началу документа
MATIZ
На предыдущую страницуНа следующую страницу
Главная страница GMDEЗагрузить нединамическое оглавлениеЗагрузить динамическое оглавлениеПомощь



4. КОНТРОЛЛЕР КПП

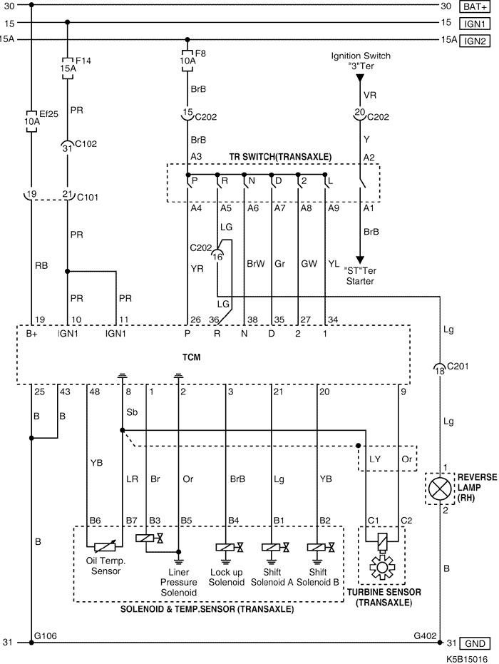
1) ЦЕПЬ ЭЛЕКТРОПИТАНИЯ, СОЕДИНЕНИЙ С МАССОЙ, ПЕРЕКЛЮЧАТЕЛЯ ПАРКОВКИ/НЕЙТРАЛИ И ДАТЧИКОВ (ТУРБИНЫ, КЛАПАНА И ТЕМПЕР.)

K5B15016.png
Показать иллюстрациюПеревод текста в иллюстрациях


а. ИНФОРМАЦИЯ О РАЗЪЁМЕ

№ РАЗЪЁМА
(№ И ЦВЕТ КОНТАКТА)
СОЕДИНИТЕЛЬНЫЙ ЖГУТ ПРОВОДОВПОЛОЖЕНИЕ РАЗЪЁМА
С101 (контакт 32, черный) Двигатель - блок предохранителей в моторном отсеке Блок предохранителей в моторном отсеке
С102 (контакт 32, серый) Приборная панель - блок предохранителей в моторном отсеке Блок предохранителей в моторном отсеке
С201 (контакт 26, белый) Приборная панель - пол Левая часть пространства для ног водителя
С202 (контакт 23, белый) Двигатель - приборная панель Левая часть пространства для ног водителя
G106 Двигатель Под стартером
G402 Пол Под правой задней стойкой

б. УСЛОВНОЕ ОБОЗНАЧЕНИЕ & И НАХОЖДЕНИЕ НОМЕРА КОНТАКТА

K5B1P016.png
Показать иллюстрациюПеревод текста в иллюстрациях


в. РАСПОЛОЖЕНИЕ РАЗЪЁМОВ И СОЕДИНЕНИЙ МАССЫ

K5B12007.png
Показать иллюстрациюПеревод текста в иллюстрациях


K5B12008.png
Показать иллюстрациюПеревод текста в иллюстрациях


K5B12009.png
Показать иллюстрациюПеревод текста в иллюстрациях


K5B12013.png
Показать иллюстрациюПеревод текста в иллюстрациях


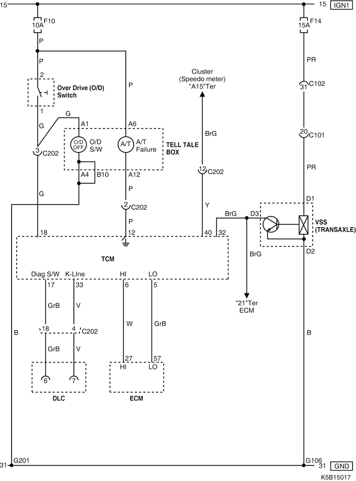
2) ЦЕПЬ БЛОКА СИГНАЛИЗАТОРОВ, КОМБИНАЦИИ ПРИБОРОВ, ДАТЧИКА СКОРОСТИ АВТОМОБИЛЯ, КОЛОДКИ ДИАГНОСТИКИ, КОНТРОЛЛЕРА ЭСУД И ВЫКЛЮЧАТЕЛЯ ПОВЫШАЮЩЕЙ ПЕРЕДАЧИ

K5B15017.png
Показать иллюстрациюПеревод текста в иллюстрациях


а. ИНФОРМАЦИЯ О РАЗЪЁМЕ

№ РАЗЪЁМА
(№ И ЦВЕТ КОНТАКТА)
СОЕДИНИТЕЛЬНЫЙ ЖГУТ ПРОВОДОВПОЛОЖЕНИЕ РАЗЪЁМА
С101 (контакт 32, черный) Двигатель - блок предохранителей в моторном отсеке Блок предохранителей в моторном отсеке
С102 (контакт 32, серый) Приборная панель - блок предохранителей в моторном отсеке Блок предохранителей в моторном отсеке
С202 (контакт 23, белый) Двигатель - приборная панель Левая часть пространства для ног водителя
G201 Приборная панель Под левой передней стойкой

б. УСЛОВНОЕ ОБОЗНАЧЕНИЕ & И НАХОЖДЕНИЕ НОМЕРА КОНТАКТА

K5B1P017.png
Показать иллюстрациюПеревод текста в иллюстрациях


в. РАСПОЛОЖЕНИЕ РАЗЪЁМОВ И СОЕДИНЕНИЙ МАССЫ

K5B12007.png
Показать иллюстрациюПеревод текста в иллюстрациях


K5B12008.png
Показать иллюстрациюПеревод текста в иллюстрациях


K5B12009.png
Показать иллюстрациюПеревод текста в иллюстрациях


На предыдущую страницуНа следующую страницу


https://vnx.su/ 🛠 Руководства по ремонту и эксплуатации для автомобилей

Поиск по сайту

Остались вопросы или пожелания? Пишите на почту: support@vnx.su

Карта Сайта