To the top of the document
Orlando
   
GMDE Start Page Load static TOC Load dynamic TOC Help?

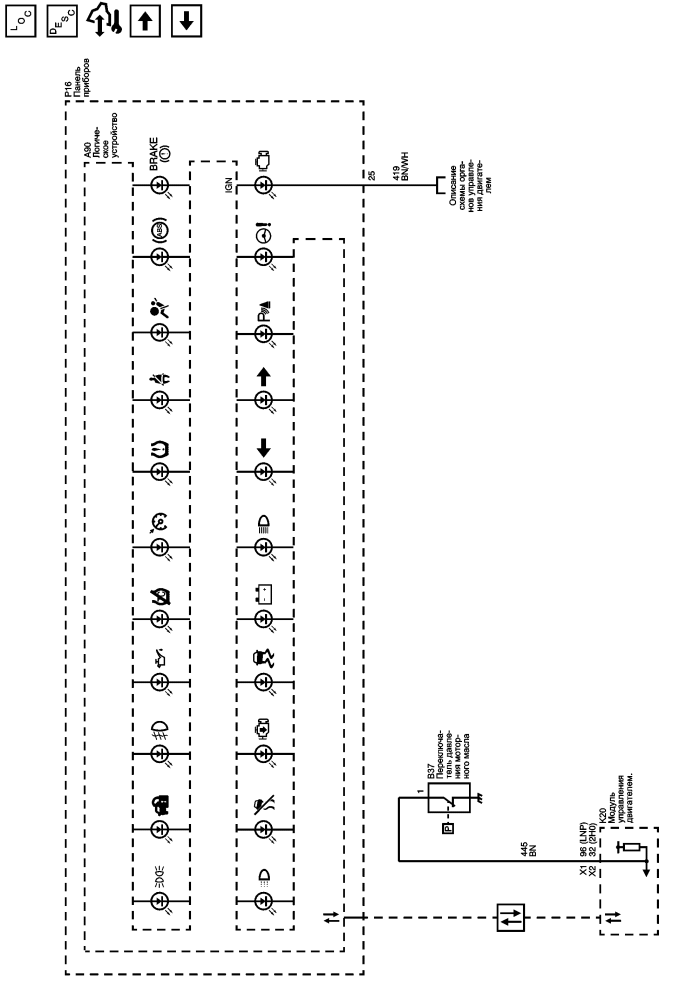
Индикаторы


          
            |                         |            
2564171RU.png

Display graphic

Power, Ground, Serial Data, and Gauges

Ссылки на подсистемы

   


© copyright chevrolet. All rights reserved