To the top of the document
Orlando
   
GMDE Start Page Load static TOC Load dynamic TOC Help?

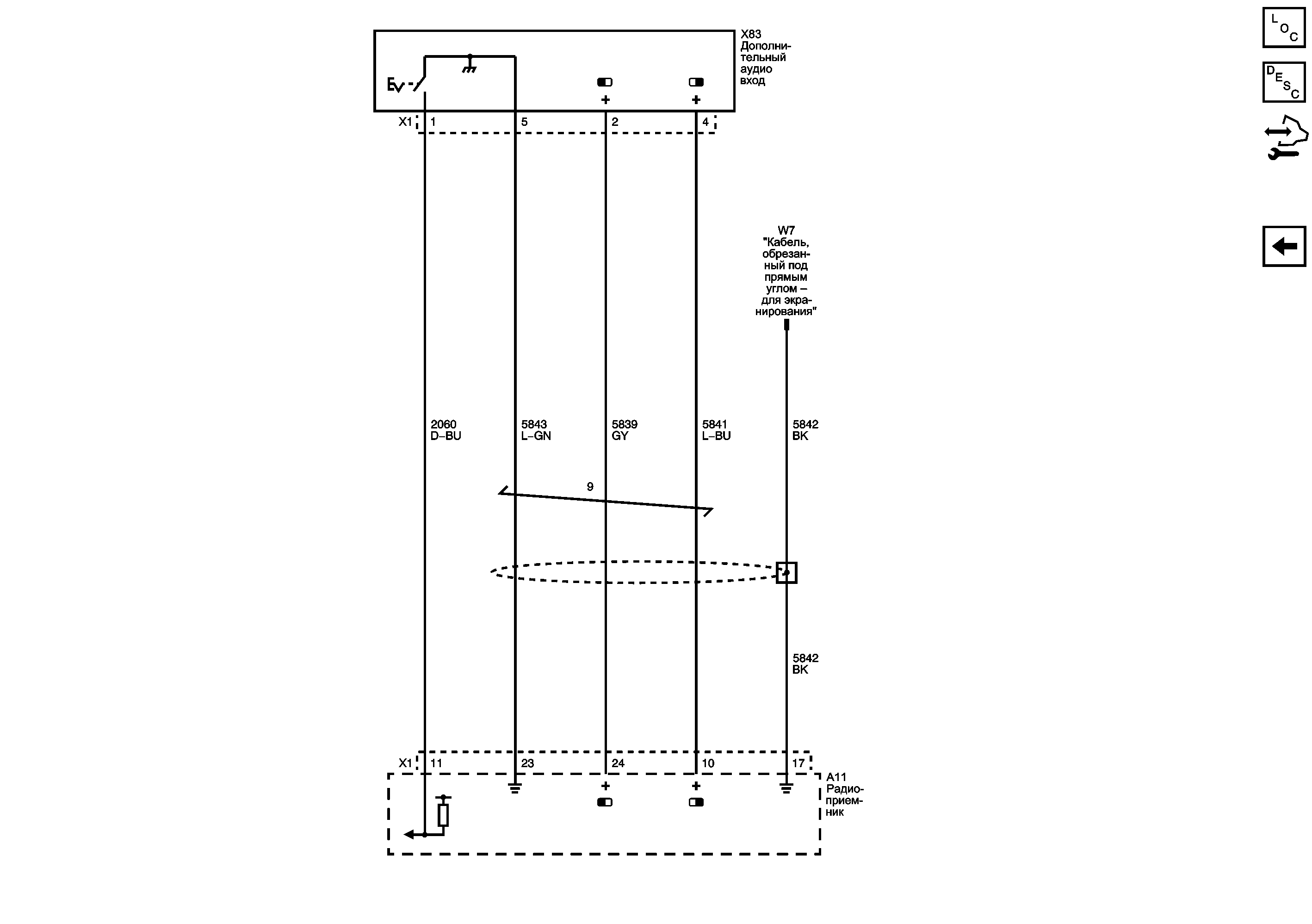
Вход аудио (без kta)


          
            |                         |            
2564102RU.png

Display graphic

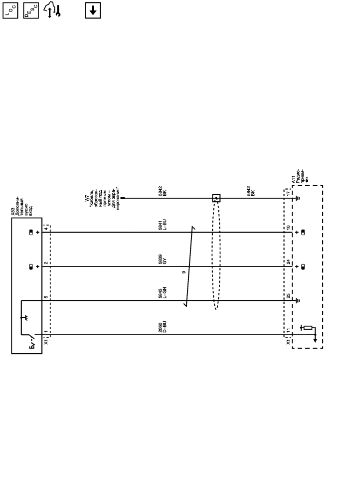
Интерфейс мультимедийного плеера (КТА)

   


© copyright chevrolet. All rights reserved