Orlando |
||||||||
|
|
|
|||||||

Список электрических компонентов управления
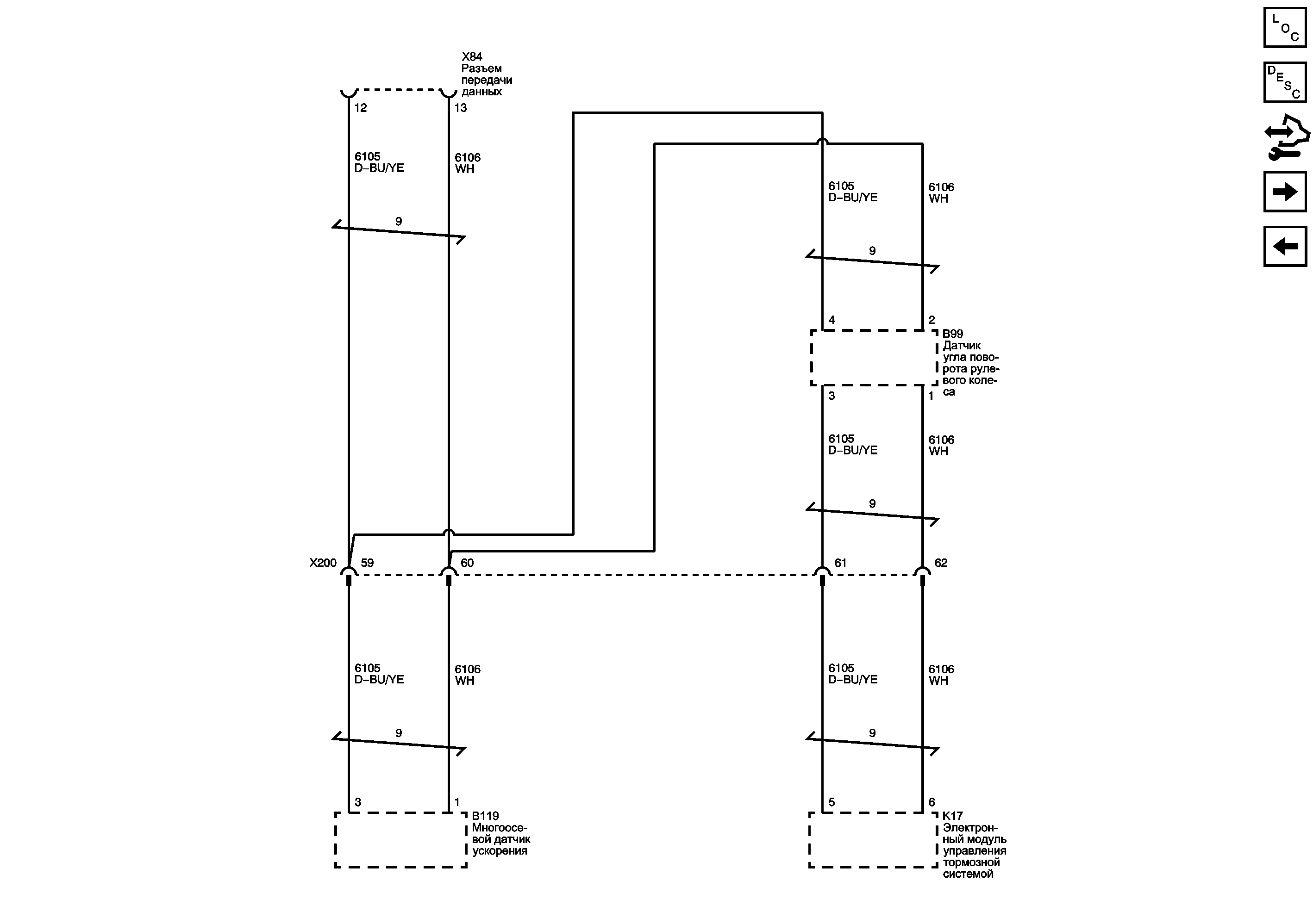
Описание и функционирование каналов обмена данными
Модуль управления Справочные сведения
Активна передача последовательных данных
Схематические обозначения электрических элементов управления
| https://vnx.su/ 🛠 Руководства по ремонту и эксплуатации для автомобилей |
| https://vnx.su/ 🛠 Руководства по ремонту и эксплуатации для автомобилей |