Cruze |
||||||||
|
|
|
|||||||

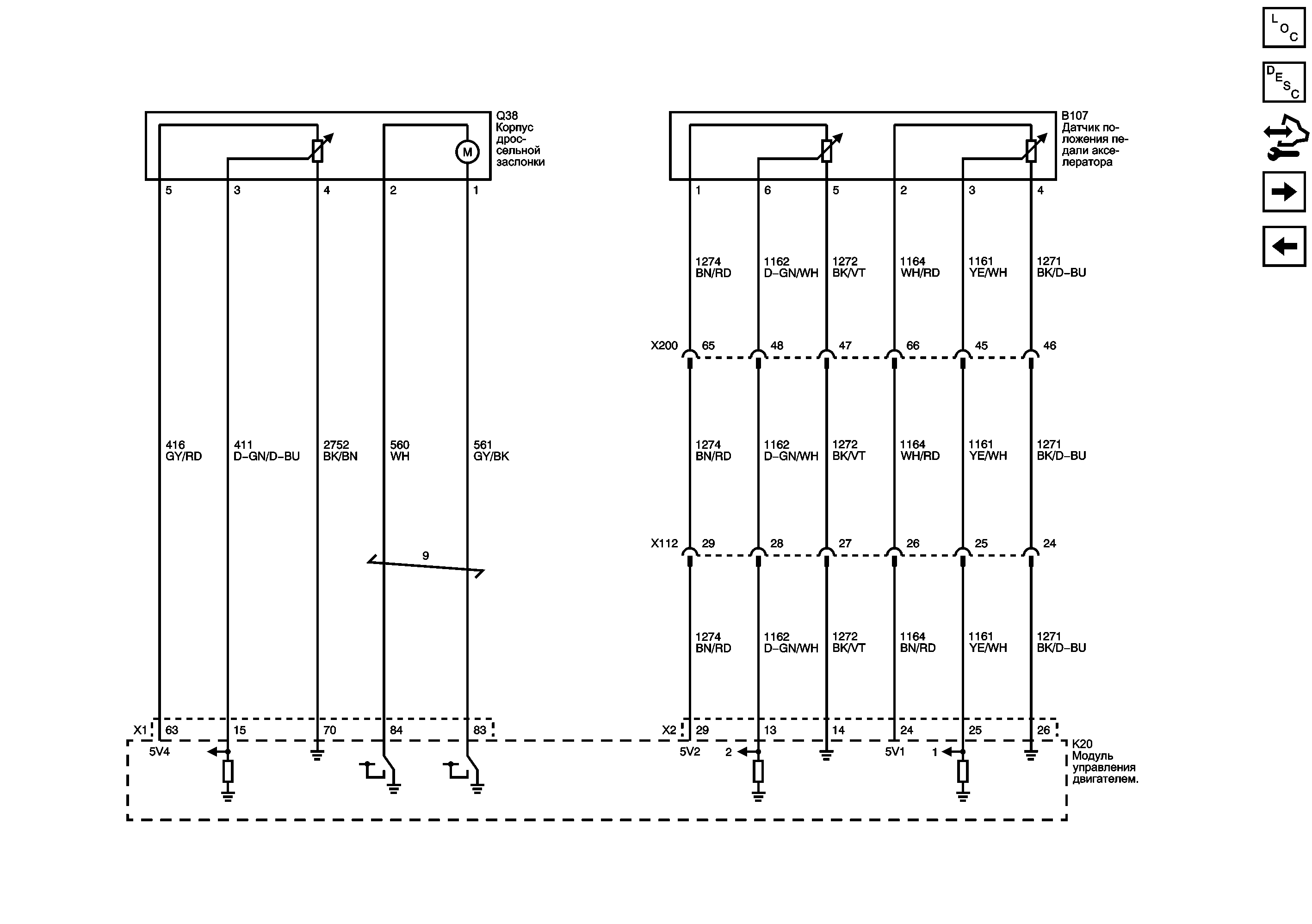
Список электрических компонентов управления
Модуль управления Справочные сведения
Датчик данных двигателя - Датчик кислорода
Датчики параметров работы двигателя - давление, температура и вода в топливе
| https://vnx.su/ 🛠 Руководства по ремонту и эксплуатации для автомобилей |