Cruze |
||||||||
|
|
|
|||||||

Список электрических компонентов управления
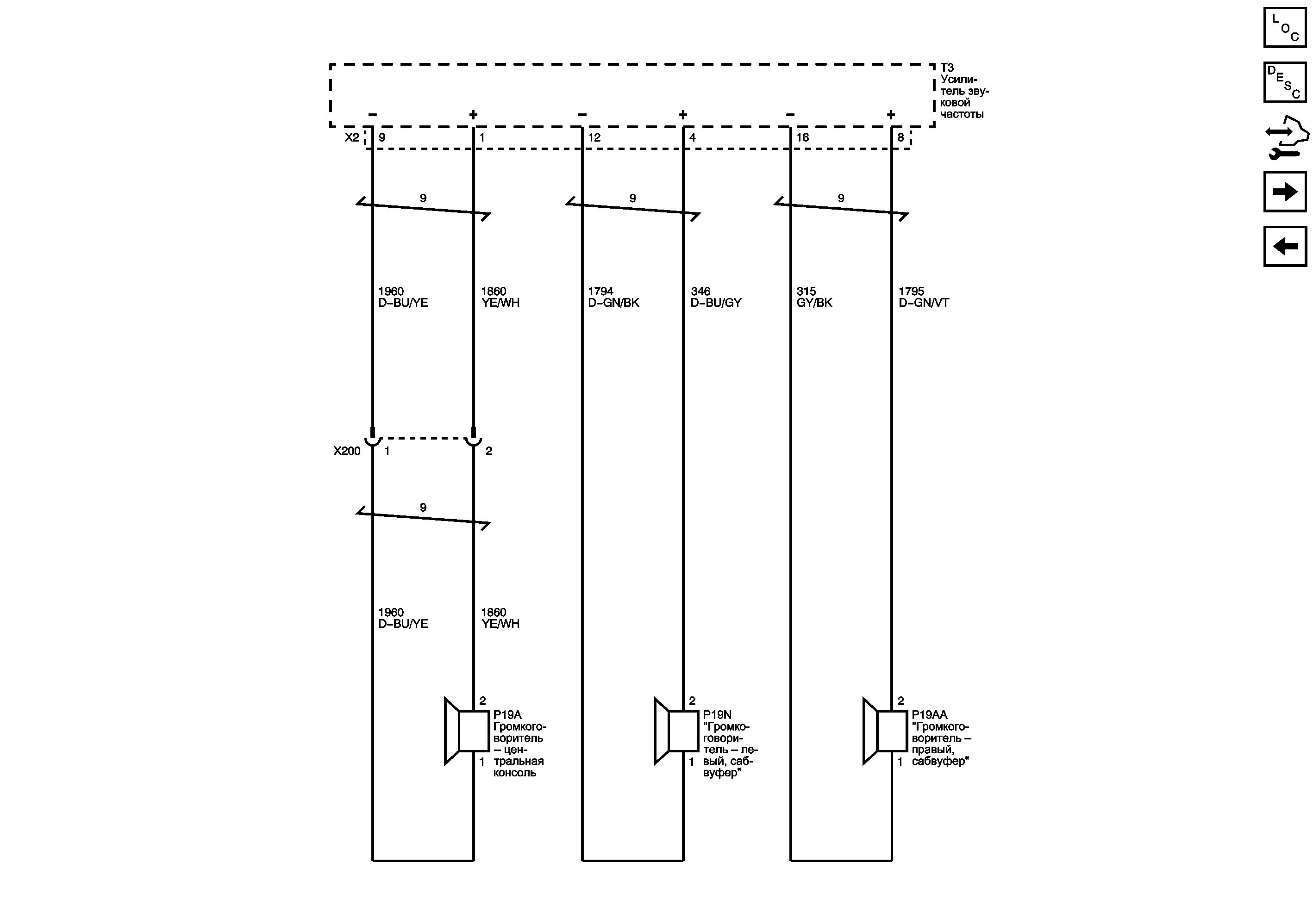
Радио/аудиосистема, описание и принципы работы
Модуль управления Справочные сведения
Значки на основной принципиальной электрической схеме
| https://vnx.su/ 🛠 Руководства по ремонту и эксплуатации для автомобилей |