Tacuma-Rezzo
To Previous Page To Next Page



28. ANTI-THEFT CONTROL SYSTEM CIRCUIT

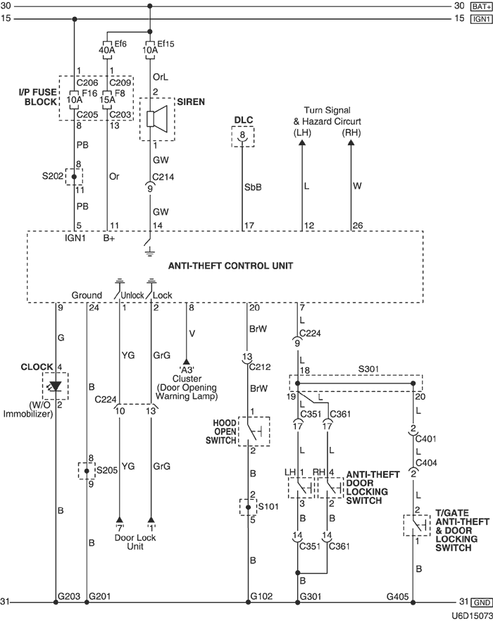
1) only anti-theft

U6D15073.png


a. CONNECTOR INFORMATION

connector no
(pin no, color)
connecting wiring harness connector position
C203 (22 Pin, White) I/P Fuse Block – IP Front the I/P Fuse Block
C204 (12 Pin, White) I/P Fuse Block – IP Front the I/P Fuse Block
C205 (14 Pin, White) I/P Fuse Block – IP Front the I/P Fuse Block
C206 (3 Pin, Brown) I/P Fuse Block – IP Front the I/P Fuse Block
C209 (1 Pin, Colorless) I/P Fuse Block – Front Behind the I/P Fuse Block
C212 (18 Pin, Blue) Front – IP Left Upper the Driver Leg Room
C214 (26 Pin, Yellow) Front – IP Left Upper the Driver Leg Room
C224 (14 Pin, White) IP – Floor Under the Door Lock Unit
C351 (29 Pin, White) Floor – Co-Driver Door Inside Light 'A' Pillar
C361 (29 Pin, White) Floor – Driver Door Inside Right 'A' Pillar
C401 (10 Pin, White) Tailgate – Floor Behind the Rear Quarter Glass
C404 (8 Pin, White) Tailgate – Tailgate, AUX Left Under Tailgate Behind the Tail Lamp
S101 (White) Front Inside the Engine Fuse Block
S202 (Orange) IP Rear Right Instrument Panel
S205 (Orange) IP Rear Center Instrument Panel
S301 (Black) Floor Under the Driver Crossmember Panel
G102 Front Behind the Left Headlamp
G201 IP Rear Right Instrument Panel
G203 IP Under Right Ashtray
G301 Floor Under the Driver Room Floor
G405 Tailgate, Aux Under the Rear Wiper Motor

b. CONNECTOR IDENTIFICATION SYMBOL & PIN NUMBER POSITION

U6D1P012.png


c. POSITION OF CONNECTORS AND GROUNDS

U4D12024.png


d. SPLICE PACK

s101

U6D1S008.png


s202

U5D1S015.png


s205

U5D1S017.png


s301

U5D1S019.png


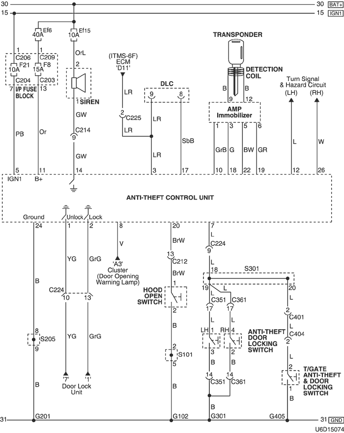
2) with immobilizer

U6D15074.png


a. CONNECTOR INFORMATION

connector no
(pin no, color)
connecting wiring harness connector position
C203 (22 Pin, White) I/P Fuse Block – IP Front the I/P Fuse Block
C204 (12 Pin, White) I/P Fuse Block – IP Front the I/P Fuse Block
C205 (14 Pin, White) I/P Fuse Block – IP Front the I/P Fuse Block
C206 (3 Pin, Brown) I/P Fuse Block – IP Front the I/P Fuse Block
C209 (1 Pin, Colorless) I/P Fuse Block – Front Behind the I/P Fuse Block
C212 (18 Pin, Blue) Front – IP Left Upper the Driver Leg Room
C214 (26 Pin, Yellow) Front – IP Left Upper the Driver Leg Room
C224 (14 Pin, White) IP – Floor Under the Door Lock Unit
C225 (8 Pin, White) IP – ECM Center Upper The Driver Leg Room
C351 (29 Pin, White) Floor – Co-Driver Door Inside Light 'A' Pillar
C361 (29 Pin, White) Floor – Driver Door Inside Right 'A' Pillar
C401 (10 Pin, White) Tailgate – Floor Behind the Rear Quarter Glass
C404 (8 Pin, White) Tailgate – Tailgate, AUX Left Under Tailgate Behind the Tail Lamp
S101 (White) Front Inside the Engine Fuse Block
S202 (Orange) IP Rear Right Instrument Panel
S205 (Orange) IP Rear Center Instrument Panel
S301 (Black) Floor Under the Driver Crossmember Panel
G102 Front Behind the Left Headlamp
G201 IP Rear Right Instrument Panel
G301 Floor Under the Driver Room Floor
G405 Tailgate, Aux Under the Rear Wiper Motor

b. CONNECTOR IDENTIFICATION SYMBOL & PIN NUMBER POSITION

U6D1P013.png


c. POSITION OF CONNECTORS AND GROUNDS

U4D12024.png


d. SPLICE PACK

s101

U6D1S008.png


s202

U5D1S015.png


s301

U5D1S019.png


To Previous Page To Next Page


https://vnx.su/ 🛠 Руководства по ремонту и эксплуатации для автомобилей

Поиск по сайту

Остались вопросы или пожелания? Пишите на почту: support@vnx.su

Карта Сайта