К началу документа
Nubira-Lacetti
На предыдущую страницуНа следующую страницу
Главная страница GMDEЗагрузить нединамическое оглавлениеЗагрузить динамическое оглавлениеПомощь



19. WIPER CIRCUIT

1) w/o rain sensor & w/o fatc : notch back

J5B15073.png
Показать иллюстрациюПеревод текста в иллюстрациях


а. ИНФОРМАЦИЯ О РАЗЪЁМЕ

№ РАЗЪЁМА
(№ И ЦВЕТ КОНТАКТА)
СОЕДИНИТЕЛЬНЫЙ ЖГУТ ПРОВОДОВПОЛОЖЕНИЕ РАЗЪЁМА
C113 (16 Pin, Black) Body – Front Behind ECM Bracket
C201 (76 Pin, Black) I.P – I.P Fuse Block I.P Fuse Block
C202 (89 Pin, White) I.P – Body Left CO-Driver Leg Room
G101 Front Behind Left Head Lamp
G204 Body Below Left CO-Driver Leg Room

б. УСЛОВНОЕ ОБОЗНАЧЕНИЕ & И НАХОЖДЕНИЕ НОМЕРА КОНТАКТА

J3D1P029.png
Показать иллюстрациюПеревод текста в иллюстрациях


в. РАСПОЛОЖЕНИЕ РАЗЪЁМОВ И СОЕДИНЕНИЙ МАССЫ

J5B12006.png
Показать иллюстрациюПеревод текста в иллюстрациях


J3B12003.png
Показать иллюстрациюПеревод текста в иллюстрациях


J3B12020.png
Показать иллюстрациюПеревод текста в иллюстрациях


2) w/o rain sensor & w/o fatc : hatch back (w/o rear intermittent)

J6B15046.png
Показать иллюстрациюПеревод текста в иллюстрациях


а. ИНФОРМАЦИЯ О РАЗЪЁМЕ

№ РАЗЪЁМА
(№ И ЦВЕТ КОНТАКТА)
СОЕДИНИТЕЛЬНЫЙ ЖГУТ ПРОВОДОВПОЛОЖЕНИЕ РАЗЪЁМА
C201 (76 Pin, Black) I.P – I.P Fuse Block I.P Fuse Block
C202 (89 Pin, White) I.P – Body Left CO-Driver Leg Room
C404 (8 Pin, White) T/Gate. EXT. – Body Inside Left C Pillar
C405 (8 Pin, White) T/Gate. EXT. – T/Gate Beside Left Rear Wiper Motor
G204 Body Below Left CO-Driver Leg Room
G402 T/Gate. EXT. Inside Driver C Pillar

б. УСЛОВНОЕ ОБОЗНАЧЕНИЕ & И НАХОЖДЕНИЕ НОМЕРА КОНТАКТА

J3D1P030.png
Показать иллюстрациюПеревод текста в иллюстрациях


в. РАСПОЛОЖЕНИЕ РАЗЪЁМОВ И СОЕДИНЕНИЙ МАССЫ

J3B12031.png
Показать иллюстрациюПеревод текста в иллюстрациях


J3B12003.png
Показать иллюстрациюПеревод текста в иллюстрациях


J3B12020.png
Показать иллюстрациюПеревод текста в иллюстрациях


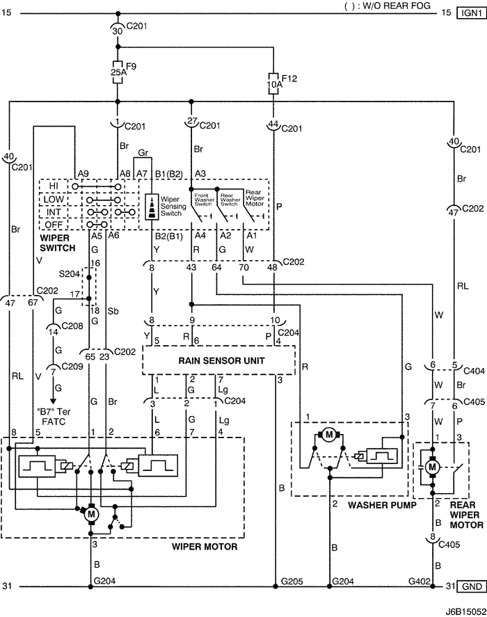
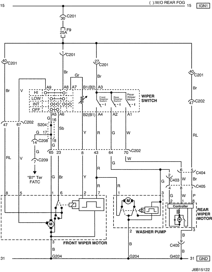
3) w/o rain sensor & w/o fatc : hatch back (w/ rear intermittent)

J6B15120.png
Показать иллюстрациюПеревод текста в иллюстрациях


а. ИНФОРМАЦИЯ О РАЗЪЁМЕ

№ РАЗЪЁМА
(№ И ЦВЕТ КОНТАКТА)
СОЕДИНИТЕЛЬНЫЙ ЖГУТ ПРОВОДОВПОЛОЖЕНИЕ РАЗЪЁМА
C201 (76 Pin, Black) I.P – I.P Fuse Block I.P Fuse Block
C202 (89 Pin, White) I.P – Body Left CO-Driver Leg Room
C404 (8 Pin, White) T/Gate. EXT. – Body Inside Left C Pillar
C405 (10 Pin, White) T/Gate. EXT. – T/Gate Beside Left Rear Wiper Motor
G204 Body Below Left CO-Driver Leg Room
G402 T/Gate. EXT. Inside Driver C Pillar

б. УСЛОВНОЕ ОБОЗНАЧЕНИЕ & И НАХОЖДЕНИЕ НОМЕРА КОНТАКТА

J6B1P024.png
Показать иллюстрациюПеревод текста в иллюстрациях


в. РАСПОЛОЖЕНИЕ РАЗЪЁМОВ И СОЕДИНЕНИЙ МАССЫ

J3B12031.png
Показать иллюстрациюПеревод текста в иллюстрациях


J3B12003.png
Показать иллюстрациюПеревод текста в иллюстрациях


J3B12020.png
Показать иллюстрациюПеревод текста в иллюстрациях


4) w/o rain sensor & w/o fatc : station wagon

J6B15047.png
Показать иллюстрациюПеревод текста в иллюстрациях


а. ИНФОРМАЦИЯ О РАЗЪЁМЕ

№ РАЗЪЁМА
(№ И ЦВЕТ КОНТАКТА)
СОЕДИНИТЕЛЬНЫЙ ЖГУТ ПРОВОДОВПОЛОЖЕНИЕ РАЗЪЁМА
C201 (76 Pin, Black) I.P – I.P Fuse Block I.P Fuse Block
C202 (89 Pin, White) I.P – Body Left CO-Driver Leg Room
C403 (4 Pin, White) T/Gate. EXT. - Body Inside Left C Pillar
C404 (8 Pin, White) T/Gate. EXT. – Body Inside Left C Pillar
C405 (8 Pin, White) T/Gate. EXT. – T/Gate Beside Left Rear Wiper Motor
C406 (4 Pin, White) T/Gate. EXT. - T/Gate Beside Left Rear Wiper Motor
G204 Body Below Left CO-Driver Leg Room
G304 Body Below Left Rear Combination Lamp

б. УСЛОВНОЕ ОБОЗНАЧЕНИЕ & И НАХОЖДЕНИЕ НОМЕРА КОНТАКТА

J5B1P053.png
Показать иллюстрациюПеревод текста в иллюстрациях


в. РАСПОЛОЖЕНИЕ РАЗЪЁМОВ И СОЕДИНЕНИЙ МАССЫ

J5B12006.png
Показать иллюстрациюПеревод текста в иллюстрациях


J3B12003.png
Показать иллюстрациюПеревод текста в иллюстрациях


J3B12020.png
Показать иллюстрациюПеревод текста в иллюстрациях


5) w/ rain sensor & w/o fatc : notch back

J5B15136.png
Показать иллюстрациюПеревод текста в иллюстрациях


а. ИНФОРМАЦИЯ О РАЗЪЁМЕ

№ РАЗЪЁМА
(№ И ЦВЕТ КОНТАКТА)
СОЕДИНИТЕЛЬНЫЙ ЖГУТ ПРОВОДОВПОЛОЖЕНИЕ РАЗЪЁМА
C113 (16 Pin, Black) Body – Front Behind ECM Bracket
C201 (76 Pin, Black) I.P – I.P Fuse Block I.P Fuse Block
C202 (89 Pin, White) I.P – Body Left CO-Driver Leg Room
C204 (14 Pin, White) Roof – Body (W/ Rain Sensor) Left CO-Driver Leg Room
C204 (8 Pin, White) Roof – Body (W/O Rain Sensor) Left CO-Driver Leg Room
G101 Front Behind Left Head Lamp
G204 Body Below Left CO-Driver Leg Room
G205 Roof Inside CO-Driver A Pillar

б. УСЛОВНОЕ ОБОЗНАЧЕНИЕ & И НАХОЖДЕНИЕ НОМЕРА КОНТАКТА

J3D1P031.png
Показать иллюстрациюПеревод текста в иллюстрациях


в. РАСПОЛОЖЕНИЕ РАЗЪЁМОВ И СОЕДИНЕНИЙ МАССЫ

J5B12006.png
Показать иллюстрациюПеревод текста в иллюстрациях


J3B12003.png
Показать иллюстрациюПеревод текста в иллюстрациях


J3B12020.png
Показать иллюстрациюПеревод текста в иллюстрациях


6) w/ rain sensor & w/o fatc : hatch back (w/o rear intermittent)

J6B15048.png
Показать иллюстрациюПеревод текста в иллюстрациях


а. ИНФОРМАЦИЯ О РАЗЪЁМЕ

№ РАЗЪЁМА
(№ И ЦВЕТ КОНТАКТА)
СОЕДИНИТЕЛЬНЫЙ ЖГУТ ПРОВОДОВПОЛОЖЕНИЕ РАЗЪЁМА
C201 (76 Pin, Black) I.P – I.P Fuse Block I.P Fuse Block
C202 (89 Pin, White) I.P – Body Left CO-Driver Leg Room
C204 (14 Pin, White) Roof – Body (W/ Rain Sensor) Left CO-Driver Leg Room
C204 (8 Pin, White) Roof – Body (W/O Rain Sensor) Left CO-Driver Leg Room
C404 (8 Pin, White) T/Gate. EXT. – Body Inside Left C Pillar
C405 (8 Pin, White) T/Gate. EXT. – T/Gate Beside Left Rear Wiper Motor
G204 Body Below Left CO-Driver Leg Room
G205 Roof Inside CO-Driver A Pillar
G402 T/Gate. EXT. Inside Driver C Pillar

б. УСЛОВНОЕ ОБОЗНАЧЕНИЕ & И НАХОЖДЕНИЕ НОМЕРА КОНТАКТА

J3D1P032.png
Показать иллюстрациюПеревод текста в иллюстрациях


в. РАСПОЛОЖЕНИЕ РАЗЪЁМОВ И СОЕДИНЕНИЙ МАССЫ

J3B12031.png
Показать иллюстрациюПеревод текста в иллюстрациях


J3B12003.png
Показать иллюстрациюПеревод текста в иллюстрациях


J3B12020.png
Показать иллюстрациюПеревод текста в иллюстрациях


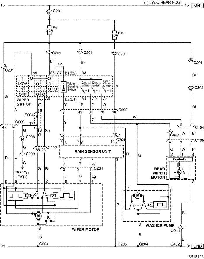
7) w/ rain sensor & w/o fatc : hatch back (w/ rear intermittent)

J6B15121.png
Показать иллюстрациюПеревод текста в иллюстрациях


а. ИНФОРМАЦИЯ О РАЗЪЁМЕ

№ РАЗЪЁМА
(№ И ЦВЕТ КОНТАКТА)
СОЕДИНИТЕЛЬНЫЙ ЖГУТ ПРОВОДОВПОЛОЖЕНИЕ РАЗЪЁМА
C201 (76 Pin, Black) I.P – I.P Fuse Block I.P Fuse Block
C202 (89 Pin, White) I.P – Body Left CO-Driver Leg Room
C204 (14 Pin, White) Roof – Body (W/ Rain Sensor) Left CO-Driver Leg Room
C204 (8 Pin, White) Roof – Body (W/O Rain Sensor) Left CO-Driver Leg Room
C404 (8 Pin, White) T/Gate. EXT. – Body Inside Left C Pillar
C405 (10 Pin, White) T/Gate. EXT. – T/Gate Beside Left Rear Wiper Motor
G204 Body Below Left CO-Driver Leg Room
G205 Roof Inside CO-Driver A Pillar
G402 T/Gate. EXT. Inside Driver C Pillar

б. УСЛОВНОЕ ОБОЗНАЧЕНИЕ & И НАХОЖДЕНИЕ НОМЕРА КОНТАКТА

J6B1P025.png
Показать иллюстрациюПеревод текста в иллюстрациях


в. РАСПОЛОЖЕНИЕ РАЗЪЁМОВ И СОЕДИНЕНИЙ МАССЫ

J3B12031.png
Показать иллюстрациюПеревод текста в иллюстрациях


J3B12003.png
Показать иллюстрациюПеревод текста в иллюстрациях


J3B12020.png
Показать иллюстрациюПеревод текста в иллюстрациях


8) w/ rain sensor & w/o fatc : station wagon

J6B15049.png
Показать иллюстрациюПеревод текста в иллюстрациях


а. ИНФОРМАЦИЯ О РАЗЪЁМЕ

№ РАЗЪЁМА
(№ И ЦВЕТ КОНТАКТА)
СОЕДИНИТЕЛЬНЫЙ ЖГУТ ПРОВОДОВПОЛОЖЕНИЕ РАЗЪЁМА
C201 (76 Pin, Black) I.P – I.P Fuse Block I.P Fuse Block
C202 (89 Pin, White) I.P – Body Left CO-Driver Leg Room
C204 (14 Pin, White) Roof – Body (W/ Rain Sensor) Left CO-Driver Leg Room
C204 (8 Pin, White) Roof – Body (W/O Rain Sensor) Left CO-Driver Leg Room
C403 (4 Pin, White) T/Gate. EXT. - Body Inside Left C Pillar
C404 (8 Pin, White) T/Gate. EXT. – Body Inside Left C Pillar
C405 (8 Pin, White) T/Gate. EXT. – T/Gate Beside Left Rear Wiper Motor
C406 (4 Pin, White) T/Gate. EXT. - T/Gate Beside Left Rear Wiper Motor
G204 Body Below Left CO-Driver Leg Room
G205 Roof Inside CO-Driver A Pillar
G304 Body Below Left Rear Combination Lamp

б. УСЛОВНОЕ ОБОЗНАЧЕНИЕ & И НАХОЖДЕНИЕ НОМЕРА КОНТАКТА

J5B1P054.png
Показать иллюстрациюПеревод текста в иллюстрациях


в. РАСПОЛОЖЕНИЕ РАЗЪЁМОВ И СОЕДИНЕНИЙ МАССЫ

J5B12006.png
Показать иллюстрациюПеревод текста в иллюстрациях


J3B12003.png
Показать иллюстрациюПеревод текста в иллюстрациях


J3B12020.png
Показать иллюстрациюПеревод текста в иллюстрациях


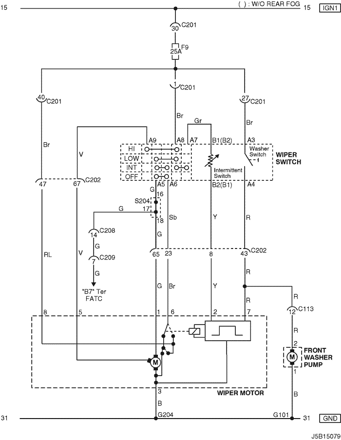
9) w/o rain sensor & fatc : notch back

J5B15079.png
Показать иллюстрациюПеревод текста в иллюстрациях


а. ИНФОРМАЦИЯ О РАЗЪЁМЕ

№ РАЗЪЁМА
(№ И ЦВЕТ КОНТАКТА)
СОЕДИНИТЕЛЬНЫЙ ЖГУТ ПРОВОДОВПОЛОЖЕНИЕ РАЗЪЁМА
C113 (16 Pin, Black) Body – Front Behind ECM Bracket
C201 (76 Pin, Black) I.P – I.P Fuse Block I.P Fuse Block
C202 (89 Pin, White) I.P – Body Left CO-Driver Leg Room
C208 (15 Pin, White) I.P – FATC Behind Glove Box
C209 (20 Pin, Black) FATC – FATC.Aux Between Heater Core and Evaporator Core
S204 (Magenta) I.P Behind Audio Mounting
G101 Front Behind Left Head Lamp
G204 Body Below Left CO-Driver Leg Room

б. УСЛОВНОЕ ОБОЗНАЧЕНИЕ & И НАХОЖДЕНИЕ НОМЕРА КОНТАКТА

J3D1P033.png
Показать иллюстрациюПеревод текста в иллюстрациях


в. РАСПОЛОЖЕНИЕ РАЗЪЁМОВ И СОЕДИНЕНИЙ МАССЫ

J5B12006.png
Показать иллюстрациюПеревод текста в иллюстрациях


J3B12003.png
Показать иллюстрациюПеревод текста в иллюстрациях


г. КОНТАКТНАЯ КОЛОДКА

s204

J5B1S007.png
Показать иллюстрациюПеревод текста в иллюстрациях


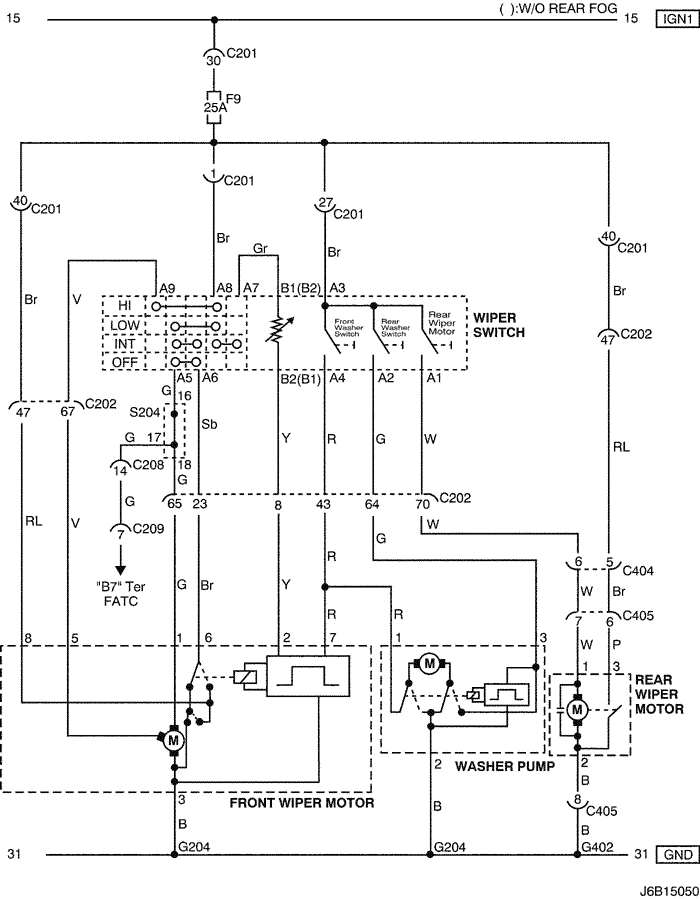
10) w/o rain sensor & fatc : hatch back (w/o rear intermittent)

J6B15050.png
Показать иллюстрациюПеревод текста в иллюстрациях


а. ИНФОРМАЦИЯ О РАЗЪЁМЕ

№ РАЗЪЁМА
(№ И ЦВЕТ КОНТАКТА)
СОЕДИНИТЕЛЬНЫЙ ЖГУТ ПРОВОДОВПОЛОЖЕНИЕ РАЗЪЁМА
C201 (76 Pin, Black) I.P – I.P Fuse Block I.P Fuse Block
C202 (89 Pin, White) I.P – Body Left CO-Driver Leg Room
C208 (15 Pin, White) I.P – FATC Behind Glove Box
C209 (20 Pin, Black) FATC – FATC.Aux Between Heater Core and Evaporator Core
C404 (8 Pin, White) T/Gate. EXT. – Body Inside Left C Pillar
C405 (8 Pin, White) T/Gate. EXT. – T/Gate Beside Left Rear Wiper Motor
S204 (Magenta) I.P Behind Audio Mounting
G204 Body Below Left CO-Driver Leg Room
G402 T/Gate. EXT. Inside Driver C Pillar

б. УСЛОВНОЕ ОБОЗНАЧЕНИЕ & И НАХОЖДЕНИЕ НОМЕРА КОНТАКТА

J3D1P034.png
Показать иллюстрациюПеревод текста в иллюстрациях


в. РАСПОЛОЖЕНИЕ РАЗЪЁМОВ И СОЕДИНЕНИЙ МАССЫ

J3B12031.png
Показать иллюстрациюПеревод текста в иллюстрациях


J3B12003.png
Показать иллюстрациюПеревод текста в иллюстрациях


г. КОНТАКТНАЯ КОЛОДКА

s204

J5B1S007.png
Показать иллюстрациюПеревод текста в иллюстрациях


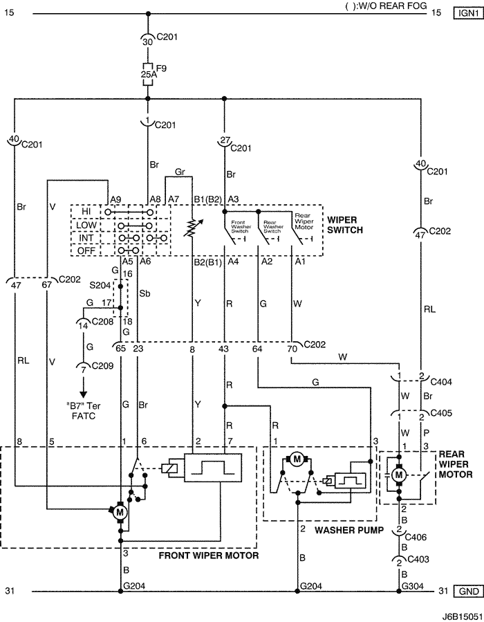
11) w/o rain sensor & fatc : hatch back (w/ rear intermittent)

J6B15122.png
Показать иллюстрациюПеревод текста в иллюстрациях


а. ИНФОРМАЦИЯ О РАЗЪЁМЕ

№ РАЗЪЁМА
(№ И ЦВЕТ КОНТАКТА)
СОЕДИНИТЕЛЬНЫЙ ЖГУТ ПРОВОДОВПОЛОЖЕНИЕ РАЗЪЁМА
C201 (76 Pin, Black) I.P – I.P Fuse Block I.P Fuse Block
C202 (89 Pin, White) I.P – Body Left CO-Driver Leg Room
C208 (15 Pin, White) I.P – FATC Behind Glove Box
C209 (20 Pin, Black) FATC – FATC.Aux Between Heater Core and Evaporator Core
C404 (8 Pin, White) T/Gate. EXT. – Body Inside Left C Pillar
C405 (10 Pin, White) T/Gate. EXT. – T/Gate Beside Left Rear Wiper Motor
S204 (Magenta) I.P Behind Audio Mounting
G204 Body Below Left CO-Driver Leg Room
G402 T/Gate. EXT. Inside Driver C Pillar

б. УСЛОВНОЕ ОБОЗНАЧЕНИЕ & И НАХОЖДЕНИЕ НОМЕРА КОНТАКТА

J6B1P026.png
Показать иллюстрациюПеревод текста в иллюстрациях


в. РАСПОЛОЖЕНИЕ РАЗЪЁМОВ И СОЕДИНЕНИЙ МАССЫ

J3B12031.png
Показать иллюстрациюПеревод текста в иллюстрациях


J3B12003.png
Показать иллюстрациюПеревод текста в иллюстрациях


г. КОНТАКТНАЯ КОЛОДКА

s204

J5B1S007.png
Показать иллюстрациюПеревод текста в иллюстрациях


12) w/o rain sensor & fatc : station wagon

J6B15051.png
Показать иллюстрациюПеревод текста в иллюстрациях


а. ИНФОРМАЦИЯ О РАЗЪЁМЕ

№ РАЗЪЁМА
(№ И ЦВЕТ КОНТАКТА)
СОЕДИНИТЕЛЬНЫЙ ЖГУТ ПРОВОДОВПОЛОЖЕНИЕ РАЗЪЁМА
C201 (76 Pin, Black) I.P – I.P Fuse Block I.P Fuse Block
C202 (89 Pin, White) I.P – Body Left CO-Driver Leg Room
C208 (15 Pin, White) I.P – FATC Behind Glove Box
C209 (20 Pin, Black) FATC – FATC.Aux Between Heater Core and Evaporator Core
C403 (4 Pin, White) T/Gate. EXT. - Body Inside Left C Pillar
C404 (8 Pin, White) T/Gate. EXT. – Body Inside Left C Pillar
C405 (8 Pin, White) T/Gate. EXT. – T/Gate Beside Left Rear Wiper Motor
C406 (4 Pin, White) T/Gate. EXT. - T/Gate Beside Left Rear Wiper Motor
S204 (Magenta) I.P Behind Audio Mounting
G204 Body Below Left CO-Driver Leg Room
G304 Body Below Left Rear Combination Lamp

б. УСЛОВНОЕ ОБОЗНАЧЕНИЕ & И НАХОЖДЕНИЕ НОМЕРА КОНТАКТА

J5B1P055.png
Показать иллюстрациюПеревод текста в иллюстрациях


в. РАСПОЛОЖЕНИЕ РАЗЪЁМОВ И СОЕДИНЕНИЙ МАССЫ

J5B12006.png
Показать иллюстрациюПеревод текста в иллюстрациях


J3B12003.png
Показать иллюстрациюПеревод текста в иллюстрациях


г. КОНТАКТНАЯ КОЛОДКА

s204

J5B1S007.png
Показать иллюстрациюПеревод текста в иллюстрациях


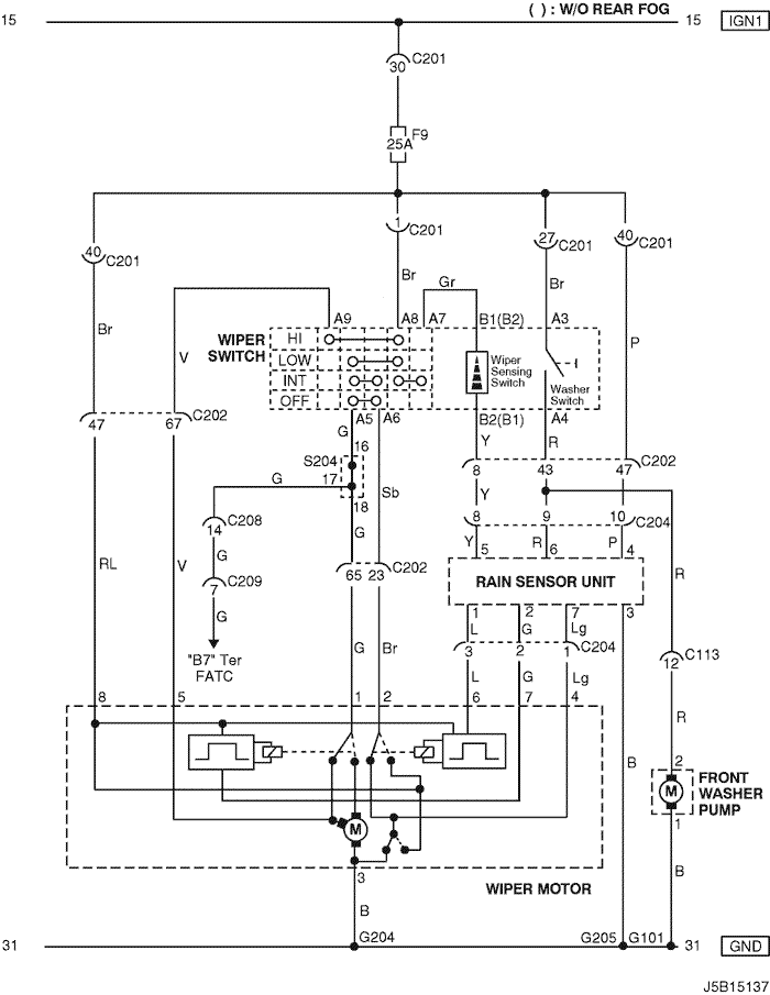
13) w/ rain sensor & fatc : notch back

J5B15137.png
Показать иллюстрациюПеревод текста в иллюстрациях


а. ИНФОРМАЦИЯ О РАЗЪЁМЕ

№ РАЗЪЁМА
(№ И ЦВЕТ КОНТАКТА)
СОЕДИНИТЕЛЬНЫЙ ЖГУТ ПРОВОДОВПОЛОЖЕНИЕ РАЗЪЁМА
C113 (16 Pin, Black) Body – Front Behind ECM Bracket
C201 (76 Pin, Black) I.P – I.P Fuse Block I.P Fuse Block
C202 (89 Pin, White) I.P – Body Left CO-Driver Leg Room
C204 (14 Pin, White) Roof – Body (W/ Rain Sensor) Left CO-Driver Leg Room
C204 (8 Pin, White) Roof – Body (W/O Rain Sensor) Left CO-Driver Leg Room
C208 (15 Pin, White) I.P – FATC Behind Glove Box
C209 (20 Pin, Black) FATC – FATC.Aux Between Heater Core and Evaporator Core
S204 (Magenta) I.P Behind Audio Mounting
G101 Front Behind Left Head Lamp
G204 Body Below Left CO-Driver Leg Room
G205 Roof Inside CO-Driver A Pillar

б. УСЛОВНОЕ ОБОЗНАЧЕНИЕ & И НАХОЖДЕНИЕ НОМЕРА КОНТАКТА

J3D1P035.png
Показать иллюстрациюПеревод текста в иллюстрациях


в. РАСПОЛОЖЕНИЕ РАЗЪЁМОВ И СОЕДИНЕНИЙ МАССЫ

J5B12006.png
Показать иллюстрациюПеревод текста в иллюстрациях


J3B12003.png
Показать иллюстрациюПеревод текста в иллюстрациях


г. КОНТАКТНАЯ КОЛОДКА

s204

J5B1S007.png
Показать иллюстрациюПеревод текста в иллюстрациях


14) w/ rain sensor & fatc : hatch back (w/o rear intermittent)

J6B15052.png
Показать иллюстрациюПеревод текста в иллюстрациях


а. ИНФОРМАЦИЯ О РАЗЪЁМЕ

№ РАЗЪЁМА
(№ И ЦВЕТ КОНТАКТА)
СОЕДИНИТЕЛЬНЫЙ ЖГУТ ПРОВОДОВПОЛОЖЕНИЕ РАЗЪЁМА
C201 (76 Pin, Black) I.P – I.P Fuse Block I.P Fuse Block
C202 (89 Pin, White) I.P – Body Left CO-Driver Leg Room
C204 (14 Pin, White) Roof – Body (W/ Rain Sensor) Left CO-Driver Leg Room
C204 (8 Pin, White) Roof – Body (W/O Rain Sensor) Left CO-Driver Leg Room
C208 (15 Pin, White) I.P – FATC Behind Glove Box
C209 (20 Pin, Black) FATC – FATC.Aux Between Heater Core and Evaporator Core
C404 (8 Pin, White) T/Gate. EXT. – Body Inside Left C Pillar
C405 (8 Pin, White) T/Gate. EXT. – T/Gate Beside Left Rear Wiper Motor
S204 (Magenta) I.P Behind Audio Mounting
G204 Body Below Left CO-Driver Leg Room
G205 Roof Inside CO-Driver A Pillar
G402 T/Gate. EXT. Inside Driver C Pillar

б. УСЛОВНОЕ ОБОЗНАЧЕНИЕ & И НАХОЖДЕНИЕ НОМЕРА КОНТАКТА

J3D1P036.png
Показать иллюстрациюПеревод текста в иллюстрациях


в. РАСПОЛОЖЕНИЕ РАЗЪЁМОВ И СОЕДИНЕНИЙ МАССЫ

J3B12031.png
Показать иллюстрациюПеревод текста в иллюстрациях


J3B12003.png
Показать иллюстрациюПеревод текста в иллюстрациях


г. КОНТАКТНАЯ КОЛОДКА

s204

J5B1S007.png
Показать иллюстрациюПеревод текста в иллюстрациях


15) w/ rain sensor & fatc : hatch back (w/ rear intermittent)

J6B15123.png
Показать иллюстрациюПеревод текста в иллюстрациях


а. ИНФОРМАЦИЯ О РАЗЪЁМЕ

№ РАЗЪЁМА
(№ И ЦВЕТ КОНТАКТА)
СОЕДИНИТЕЛЬНЫЙ ЖГУТ ПРОВОДОВПОЛОЖЕНИЕ РАЗЪЁМА
C201 (76 Pin, Black) I.P – I.P Fuse Block I.P Fuse Block
C202 (89 Pin, White) I.P – Body Left CO-Driver Leg Room
C204 (14 Pin, White) Roof – Body (W/ Rain Sensor) Left CO-Driver Leg Room
C204 (8 Pin, White) Roof – Body (W/O Rain Sensor) Left CO-Driver Leg Room
C208 (15 Pin, White) I.P – FATC Behind Glove Box
C209 (20 Pin, Black) FATC – FATC.Aux Between Heater Core and Evaporator Core
C404 (8 Pin, White) T/Gate. EXT. – Body Inside Left C Pillar
C405 (10 Pin, White) T/Gate. EXT. – T/Gate Beside Left Rear Wiper Motor
S204 (Magenta) I.P Behind Audio Mounting
G204 Body Below Left CO-Driver Leg Room
G205 Roof Inside CO-Driver A Pillar
G402 T/Gate. EXT. Inside Driver C Pillar

б. УСЛОВНОЕ ОБОЗНАЧЕНИЕ & И НАХОЖДЕНИЕ НОМЕРА КОНТАКТА

J6B1P027.png
Показать иллюстрациюПеревод текста в иллюстрациях


в. РАСПОЛОЖЕНИЕ РАЗЪЁМОВ И СОЕДИНЕНИЙ МАССЫ

J3B12031.png
Показать иллюстрациюПеревод текста в иллюстрациях


J3B12003.png
Показать иллюстрациюПеревод текста в иллюстрациях


г. КОНТАКТНАЯ КОЛОДКА

s204

J5B1S007.png
Показать иллюстрациюПеревод текста в иллюстрациях


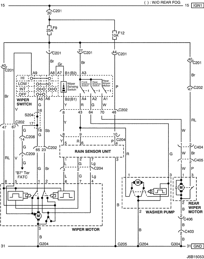
16) w/ rain sensor & fatc : station wagon

J6B15053.png
Показать иллюстрациюПеревод текста в иллюстрациях


а. ИНФОРМАЦИЯ О РАЗЪЁМЕ

№ РАЗЪЁМА
(№ И ЦВЕТ КОНТАКТА)
СОЕДИНИТЕЛЬНЫЙ ЖГУТ ПРОВОДОВПОЛОЖЕНИЕ РАЗЪЁМА
C201 (76 Pin, Black) I.P – I.P Fuse Block I.P Fuse Block
C202 (89 Pin, White) I.P – Body Left CO-Driver Leg Room
C204 (14 Pin, White) Roof – Body (W/ Rain Sensor) Left CO-Driver Leg Room
C204 (8 Pin, White) Roof – Body (W/O Rain Sensor) Left CO-Driver Leg Room
C208 (15 Pin, White) I.P – FATC Behind Glove Box
C209 (20 Pin, Black) FATC – FATC.Aux Between Heater Core and Evaporator Core
C403 (4 Pin, White) T/Gate. EXT. - Body Inside Left C Pillar
C404 (8 Pin, White) T/Gate. EXT. – Body Inside Left C Pillar
C405 (8 Pin, White) T/Gate. EXT. – T/Gate Beside Left Rear Wiper Motor
C406 (4 Pin, White) T/Gate. EXT. - T/Gate Beside Left Rear Wiper Motor
S204 (Magenta) I.P Behind Audio Mounting
G204 Body Below Left CO-Driver Leg Room
G205 Roof Inside CO-Driver A Pillar
G304 Body Below Left Rear Combination Lamp

б. УСЛОВНОЕ ОБОЗНАЧЕНИЕ & И НАХОЖДЕНИЕ НОМЕРА КОНТАКТА

J5B1P056.png
Показать иллюстрациюПеревод текста в иллюстрациях


в. РАСПОЛОЖЕНИЕ РАЗЪЁМОВ И СОЕДИНЕНИЙ МАССЫ

J5B12006.png
Показать иллюстрациюПеревод текста в иллюстрациях


J3B12003.png
Показать иллюстрациюПеревод текста в иллюстрациях


г. КОНТАКТНАЯ КОЛОДКА

s204

J5B1S007.png
Показать иллюстрациюПеревод текста в иллюстрациях


На предыдущую страницуНа следующую страницу


https://vnx.su/ 🛠 Руководства по ремонту и эксплуатации для автомобилей

Поиск по сайту

Остались вопросы или пожелания? Пишите на почту: support@vnx.su

Карта Сайта