To the top of the document
Orlando
   
GMDE Start Page Load static TOC Load dynamic TOC Help?

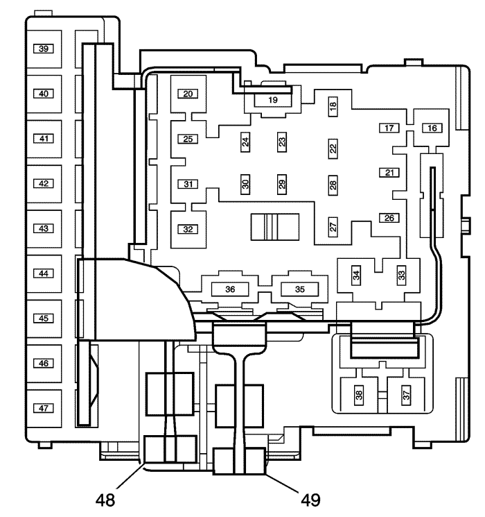
x51a Блок предохранителей- вид снизу приборной панели, предохранители


          2405334
   


© copyright chevrolet. All rights reserved