To the top of the document
Orlando
   
GMDE Start Page Load static TOC Load dynamic TOC Help?

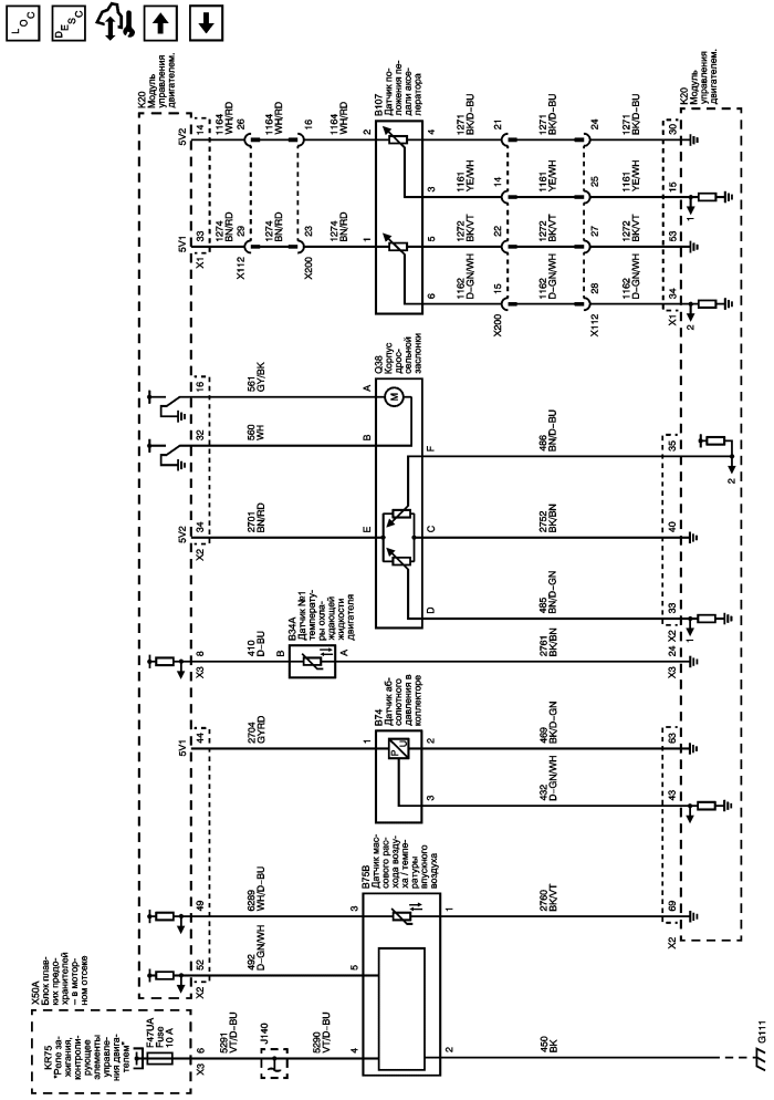
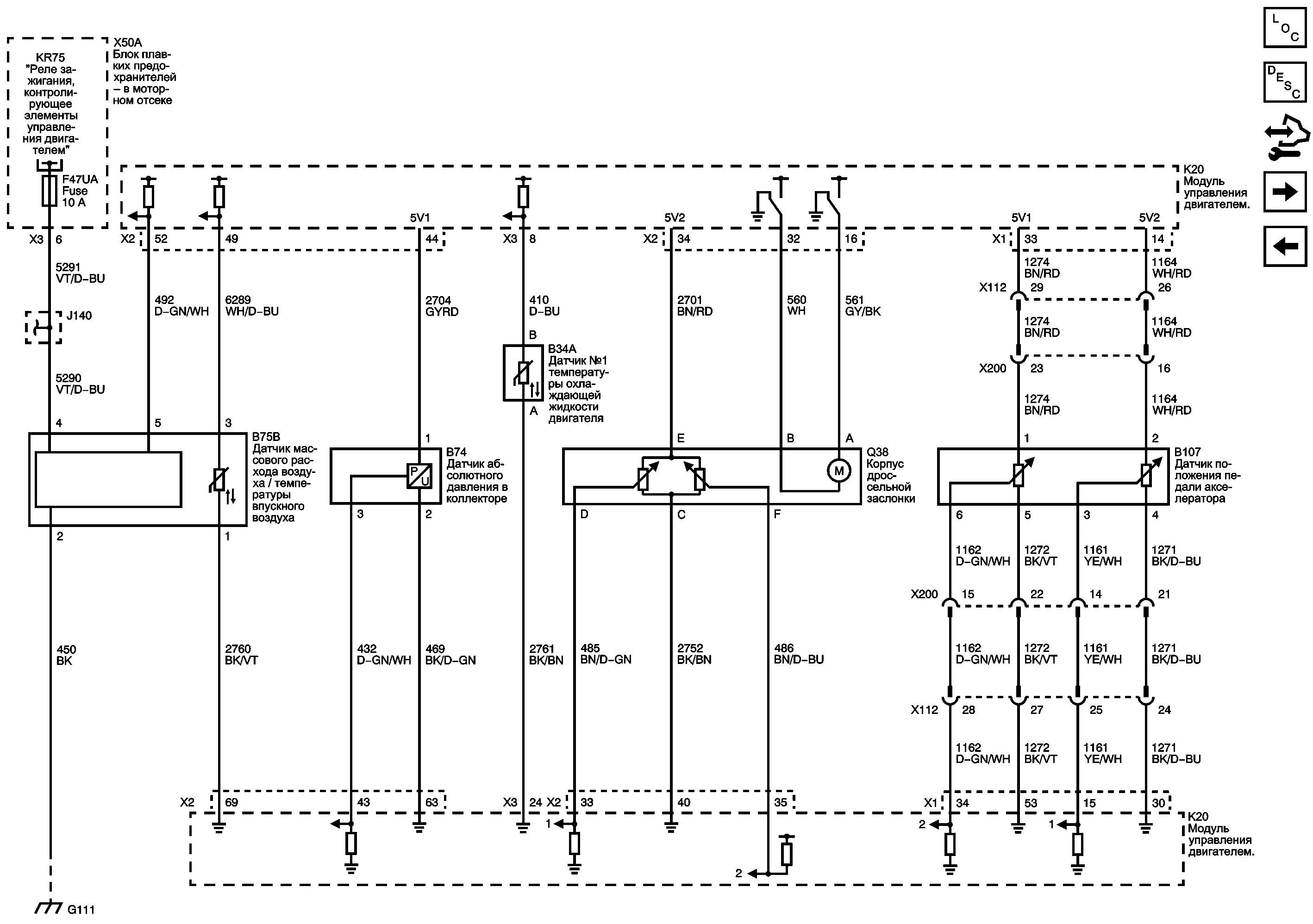
Датчики параметров работы двигателя- давления, температуры и положения дроссельной заслонки


          
            |                         |            
2580092RU.png

Display graphic

   


© copyright chevrolet. All rights reserved