To the top of the document
Orlando
   
GMDE Start Page Load static TOC Load dynamic TOC Help?

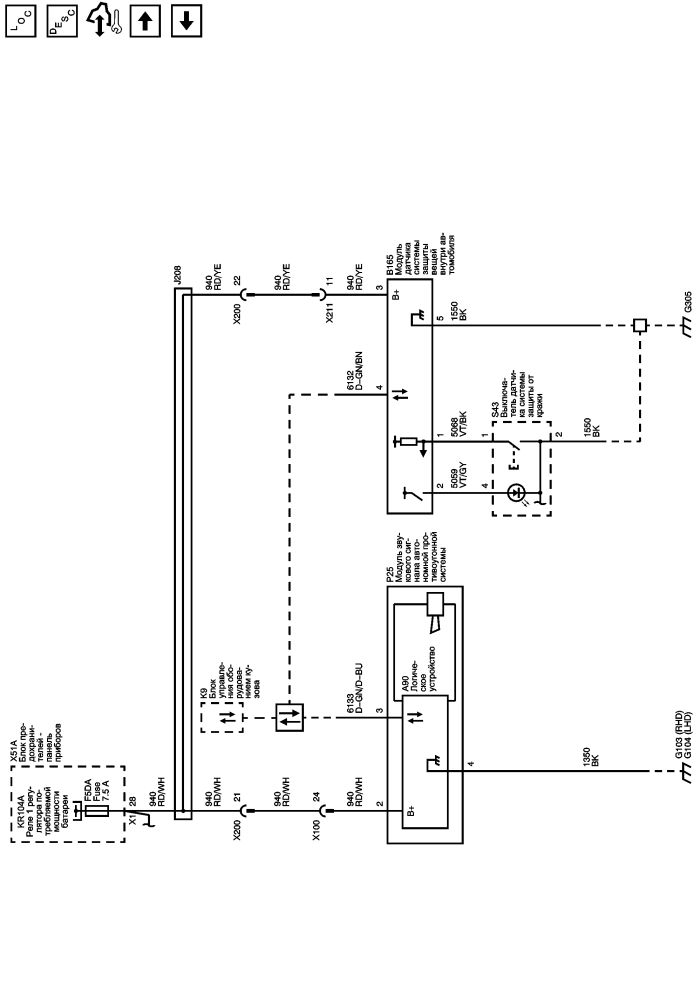
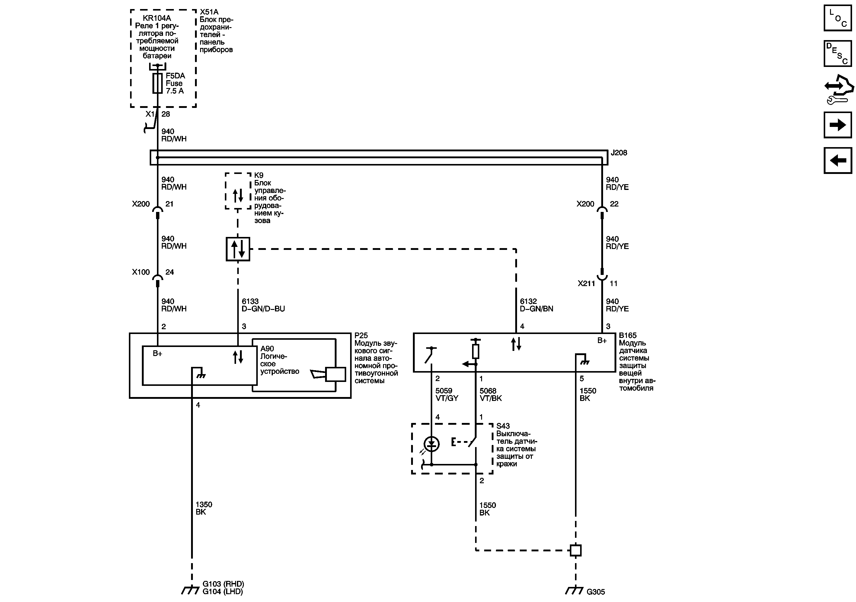
Аварийный сигнализатор и датчик проникновения (utu)


          
            |                         |            
2565234RU.png

Display graphic

   


© copyright chevrolet. All rights reserved