Cruze |
||||||||
|
|
|
|||||||

Список электрических компонентов управления
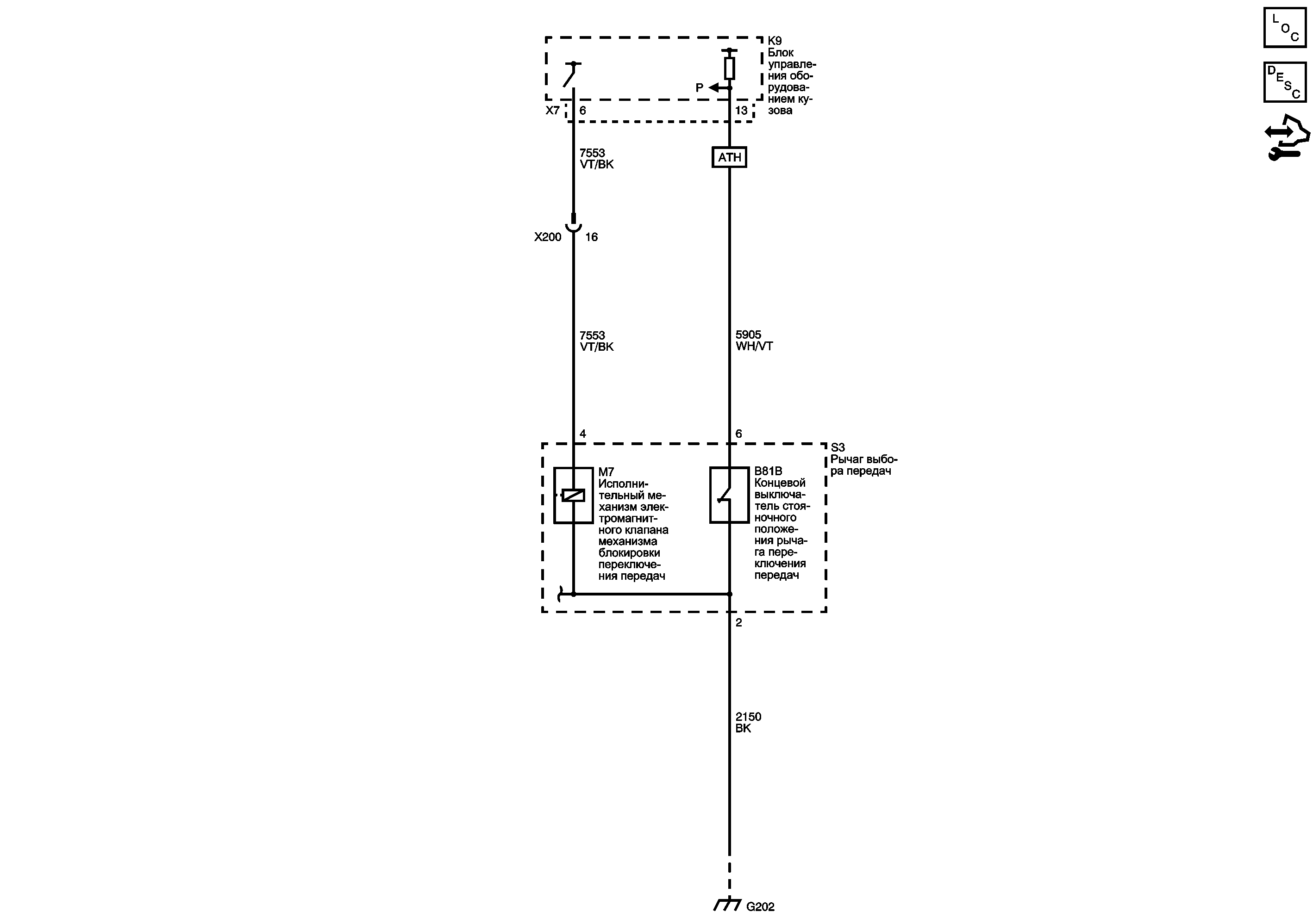
Описание стопора включения передач автоматической трансмиссии и его функций
Модуль управления Справочные сведения
| https://vnx.su/ 🛠 Руководства по ремонту и эксплуатации для автомобилей |