Cruze |
||||||||
|
|
|
|||||||

Список электрических компонентов управления
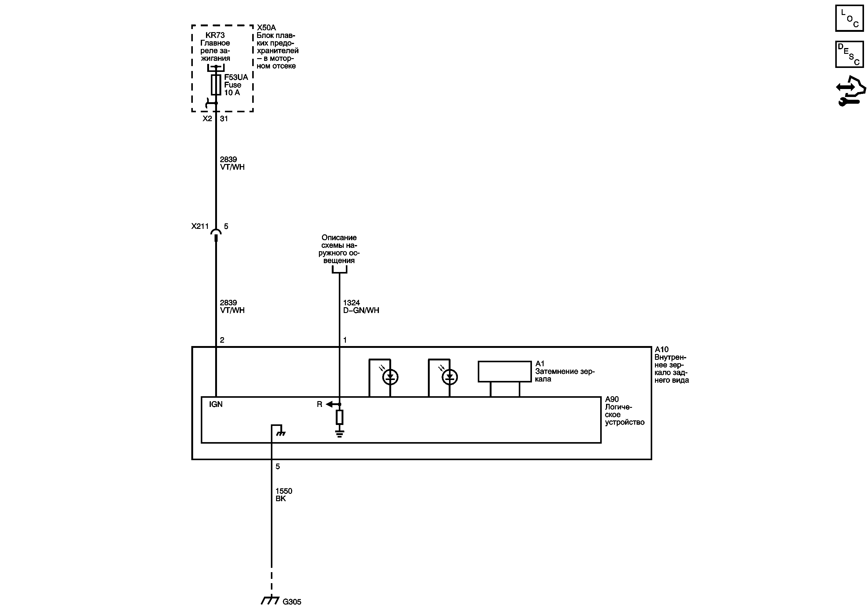
Описание и принцип работы автоматического переключения режимов день-ночь зеркала
Модуль управления Справочные сведения
Предохранители F5UA, F13UA, F53UA и F65UA
| https://vnx.su/ 🛠 Руководства по ремонту и эксплуатации для автомобилей |