Cruze |
||||||||
|
|
|
|||||||

Список электрических компонентов управления
Системы наружного освещения Описание и принцип работы
Модуль управления Справочные сведения
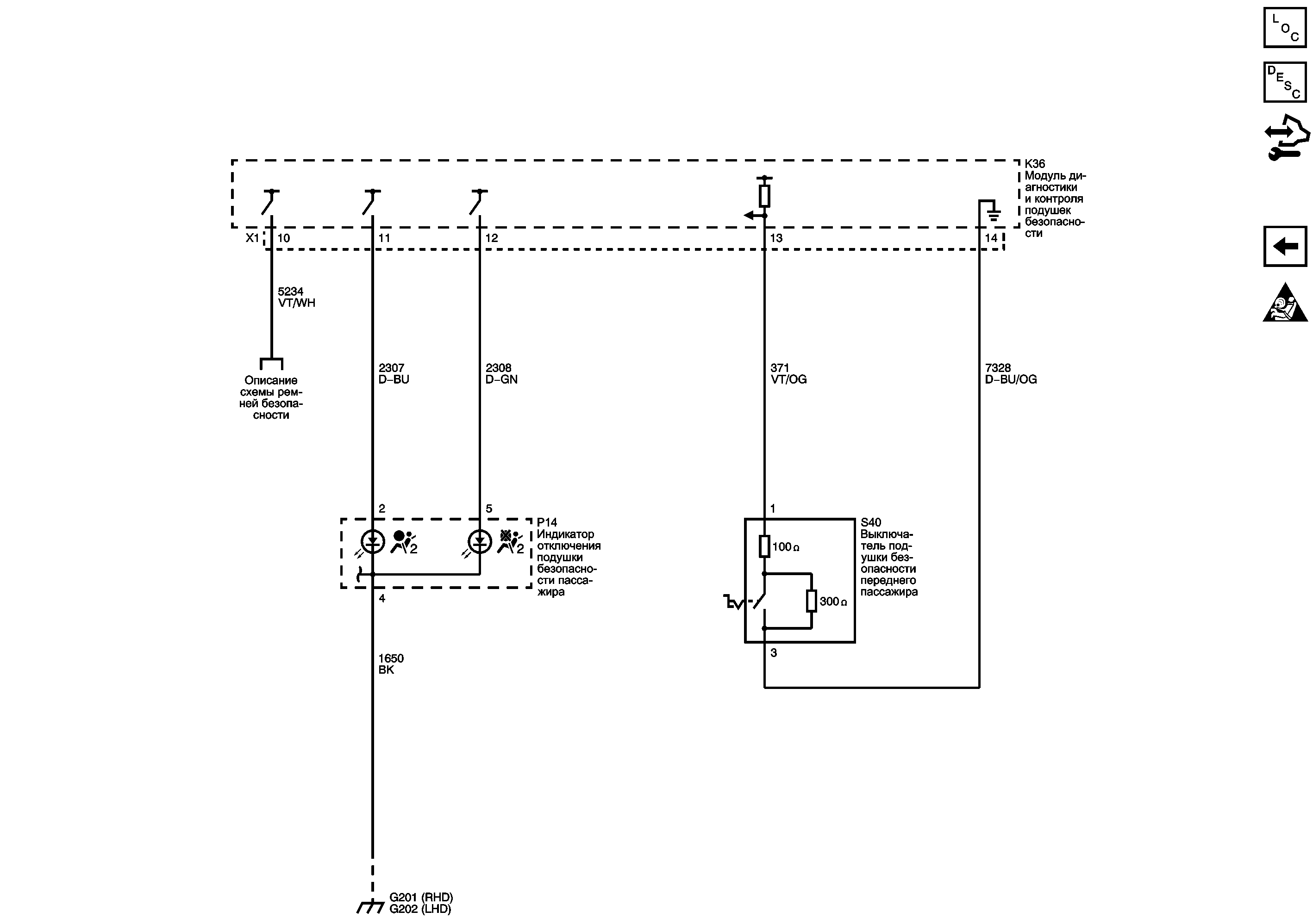
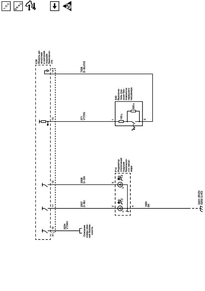
Датчики бокового удара, боковые подушки безопасности и подушки безопасности в крыше
Значки на основной принципиальной электрической схеме
Выключатели ремней безопасности сиденья и индикаторы
Схематические изображения распределителя массы
| https://vnx.su/ 🛠 Руководства по ремонту и эксплуатации для автомобилей |