Cruze |
||||||||
|
|
|
|||||||

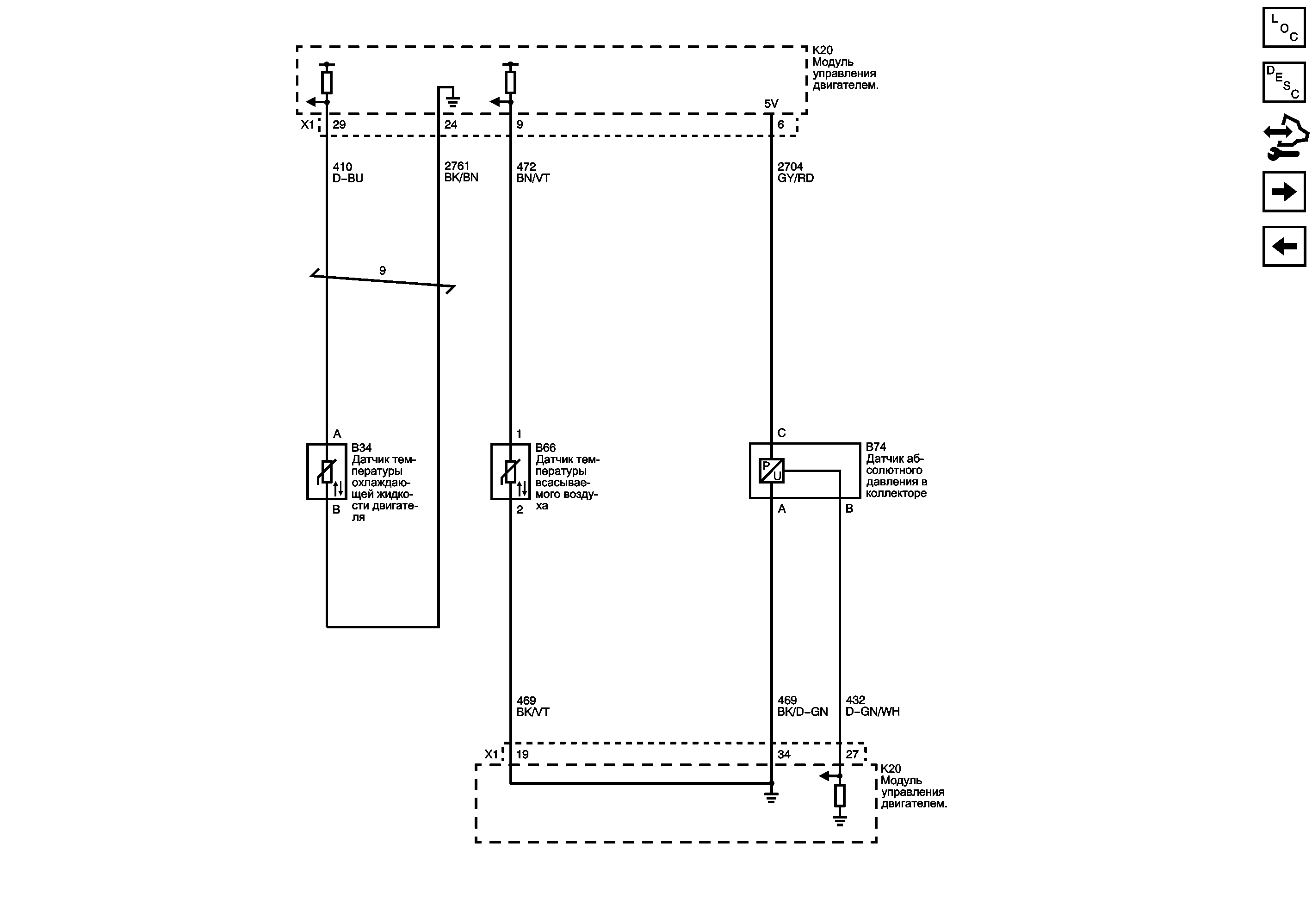
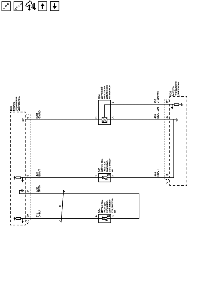
Список электрических компонентов управления
Модуль управления Справочные сведения
Датчики данных двигателя - средства управления дроссельной заслонкой
Шина 5 В и шина низкого опорного сигнала (2 из 2)
Электрический центр - Обозначение - Иллюстрации
Предохранители F47UA, F59UA и F62UA
Схематические обозначения электрических элементов управления
| https://vnx.su/ 🛠 Руководства по ремонту и эксплуатации для автомобилей |