К верхней части документа
Cruze
   
Начальная страница GMDE Загрузить статическое содержание Загрузить динамическое содержание Справка?

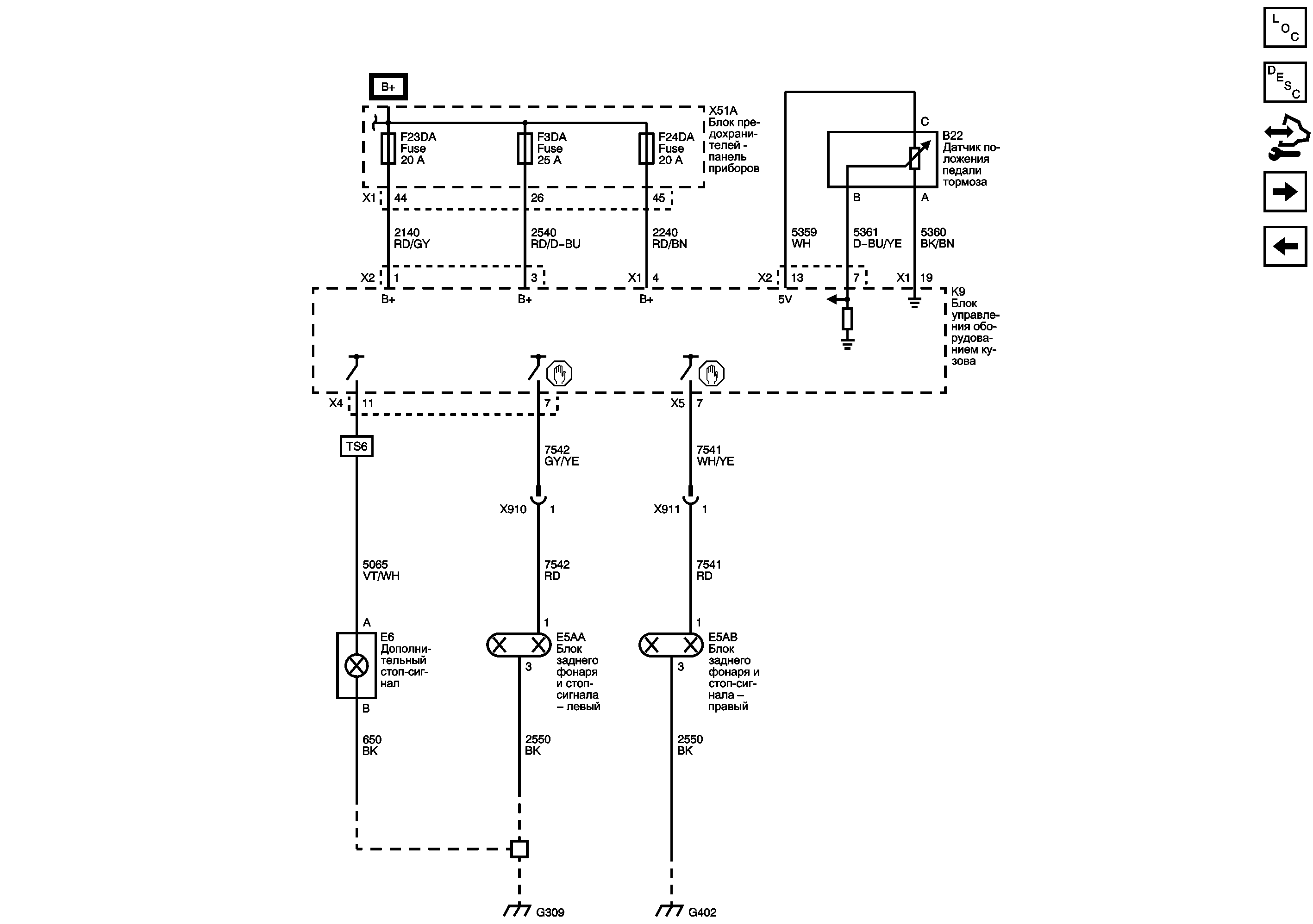
Лампы стоп-сигнала



            |                         |            
2443434RU.png

Графический дисплей

Список электрических компонентов управления

Системы наружного освещения Описание и принцип работы

Модуль управления Справочные сведения

Фонари заднего хода

Лампы указателей поворота

Автоматические выключатели F12DA и F13DA и предохранители F14DA, F15DA, F17DA, F21DA, F23DA, F24DA и F25DA

Предохранители F3DA, F3UD, F6UD, F8DA, F9DA, F10DA, F11DA и F16DA

Автоматические выключатели F12DA и F13DA и предохранители F14DA, F15DA, F17DA, F21DA, F23DA, F24DA и F25DA

G309

G400 и G402

   


https://vnx.su/ 🛠 Руководства по ремонту и эксплуатации для автомобилей

Поиск по сайту

Остались вопросы или пожелания? Пишите на почту: support@vnx.su

Карта Сайта