Captiva |
||||||||
|
|
|
|||||||

Список электрических компонентов управления
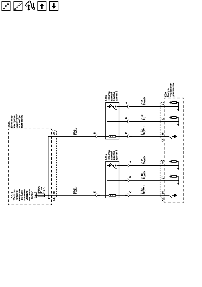
Модуль управления Справочные сведения
Средства управления зажиганием - система зажигания
Датчики параметров работы двигателя - давления, температуры и положения дроссельной заслонки
| https://vnx.su/ 🛠 Руководства по ремонту и эксплуатации для автомобилей |