Captiva |
||||||||
|
|
|
|||||||

Список электрических компонентов управления
Описание и работа комбинации приборов
Модуль управления Справочные сведения
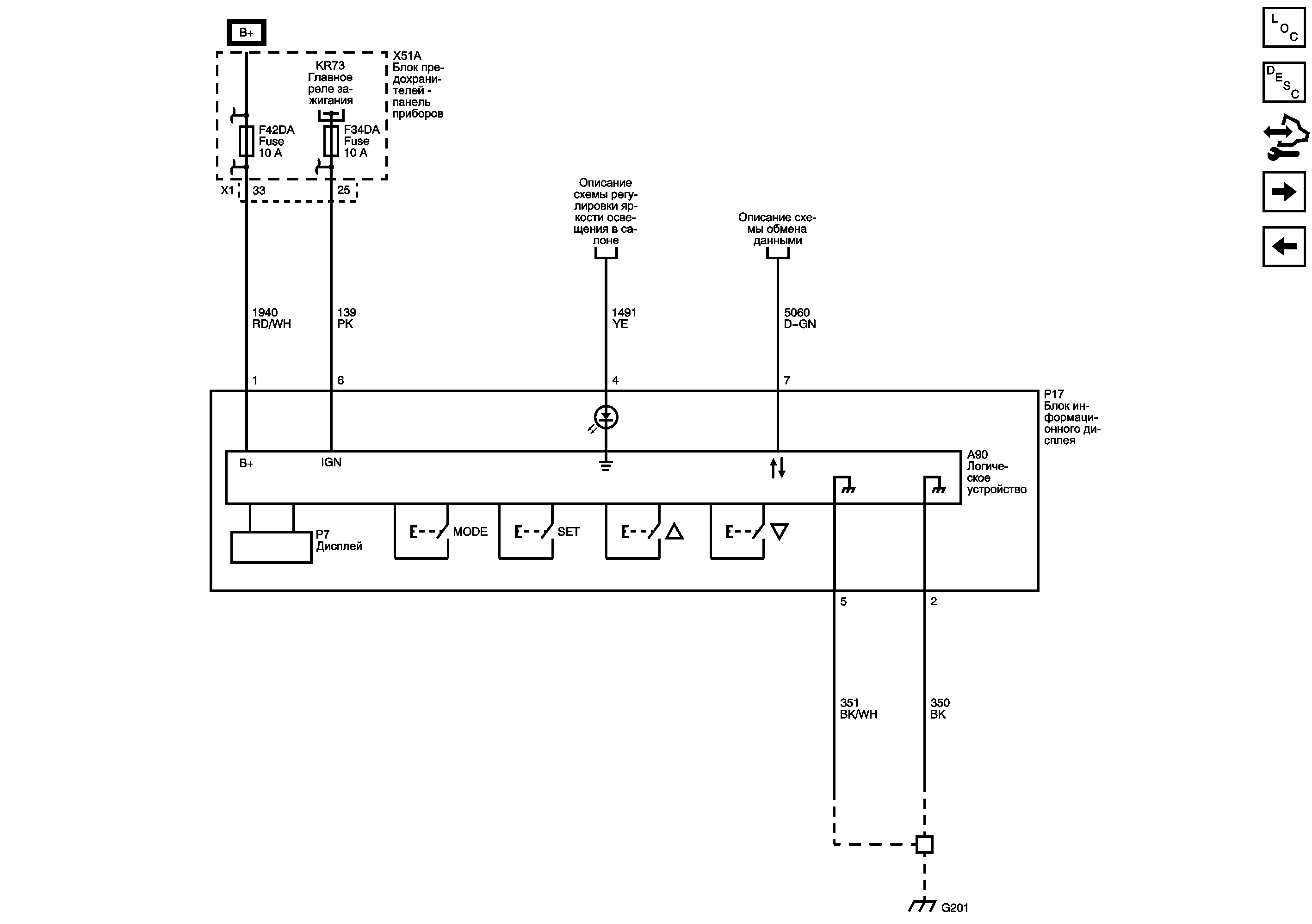
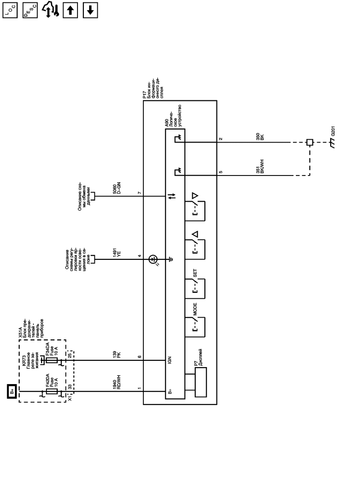
Модуль информационного дисплея (короткая колесная база)
Аналоговые часы (удлиненная колесная база)
Предохранители F33DA, F34DA, F36DA, F37DA, F39DA и F40DA
| https://vnx.su/ 🛠 Руководства по ремонту и эксплуатации для автомобилей |