К началу документа
Aveo
На предыдущую страницу На следующую страницу
Главная страница GMDE Загрузить нединамическое оглавление Загрузить динамическое оглавление Помощь

РАЗДЕЛ 8A

РЕМНИ БЕЗОПАСНОСТИ

Внимание! Отсоедините провод от отрицательного вывода аккумулятора, прежде чем снимать или устанавливать какие-либо электрические устройства, а также в ситуации, когда есть возможность касания оголенных электрических контактов каким-либо инструментом или приспособлением. Отсоединение этого провода позволяет избежать травм и повреждения оборудования автомобиля. Кроме того, если не указано иное, зажигание должно находиться в положении LOCK.

ТЕХНИЧЕСКИЕ ХАРАКТЕРИСТИКИ

Моменты затяжки резьбовых соединений

ПРОГРАММА
Н·м
фунт-фут
фунт-дюйм
Болт крепления ремня безопасности
38
28
-
Болт регулятора высоты ремня безопасности
27
20
-
Болт механизма втягивания ремня безопасности
38
28
-
Болт замка ремня безопасности
38
28
-

ПРИНЦИПИАЛЬНЫЕ И МОНТАЖНЫЕ СХЕМЫ

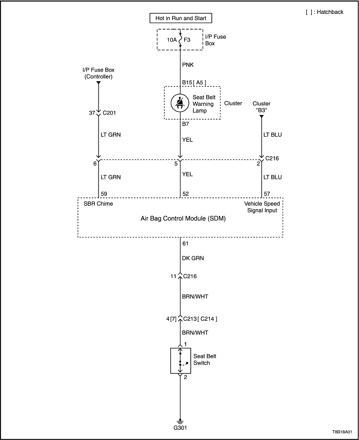
Сигнализация непристегнутого ремня безопасности водителя


T8B18A01
Показать иллюстрациюПеревод текста в иллюстрациях


ДИАГНОСТИКА

Не работает лампа сигнализации непристегнутого ремня безопасности

Не работает лампа сигнализации непристегнутого ремня безопасности

Шаг Операция Значения Да Нет
1
Проверить предохранитель сигнализации ремня безопасности f3.
Предохранитель f3 перегорел?
-
Перейдите на Шаг 2
Перейдите на Шаг 3
2
  1. Проверьте на предмет короткого замыкания и при необходимости отремонтируйте.
  2. Замените предохранитель.
Ремонт закончен?
-
Система в норме
-
3
  1. Установите зажигание в положение on.
  2. Проверить напряжение на предохранителе f3.
Равно ли напряжение указанному значению?
11~14 В
Перейдите на Шаг 5
Перейдите на Шаг 4
4
Устранить обрыв в цепи питания к предохранителю f3.
Ремонт закончен?
-
Система в норме
-
5
  1. Отсоедините разъем выключателя ремня безопасности (находится под сиденьем водителя).
  2. Соедините перемычкой контакты разъема выключателя ремня безопасности на жгуте проводов.
  3. Установите зажигание в положение on.
Включилась ли лампа сигнализации непристегнутого ремня безопасности?
-
Перейдите на Шаг 6
Перейдите на Шаг 7
6
Замените выключатель ремня безопасности.
Ремонт закончен?
-
Система в норме
-
7
  1. Снимите приборную панель.
  2. Проверьте лампочку сигнализации непристегнутого ремня безопасности.
Лампочка исправна?
-
Перейдите на Шаг 9
Перейдите на Шаг 8
8
Замените лампочку сигнализации.
Ремонт закончен?
-
Система в норме
-
9
Устранить обрыв в цепи между выводом b7 приборной панели и массой.
Ремонт закончен?
-
Система в норме
-

ТЕХНИЧЕСКОЕ ОБСЛУЖИВАНИЕ И РЕМОНТ

ТЕХНИЧЕСКОЕ ОБСЛУЖИВАНИЕ БЕЗ ДЕМОНТАЖА С АВТОМОБИЛЯ



T3B18A01
Показать иллюстрациюПеревод текста в иллюстрациях


Передний ремень безопасности с натяжителем

Процедура снятия

  1. Отсоедините провод от отрицательного вывода аккумуляторной батареи.
  2. Удалите болт и снимите крепление ремня безопасности к верхней части центральной стойки.


  3. T3B18A02
    Показать иллюстрациюПеревод текста в иллюстрациях


  4. Снимите нижнюю панель облицовки центральной стойки. См. Раздел 9G, Облицовка салона.
  5. Удалить болт и снять крепление ремня безопасности с нижней части центральной стойки.


  6. T5B18A03
    Показать иллюстрациюПеревод текста в иллюстрациях


  7. Отсоединить разъем преднатяжителя ремня, если он установлен.
  8. Удалите болт и снимите механизм втягивания ремня безопасности.


T5B18A03
Показать иллюстрациюПеревод текста в иллюстрациях


Процедура установки

    Примечание: Непосредственный контакт разнородных металлов может привести к быстрой коррозии. Во избежание преждевременной коррозии используйте надлежащий крепеж.

  1. Закрепите механизм втягивания ремня безопасности болтом.
  2. Затянуть
    Затяните болт крепления механизма втягивания ремня безопасности моментом 38 Н•м (28 lb-ft).

  3. Присоединить разъем преднатяжителя ремня, если он установлен.


  4. T3B18A01
    Показать иллюстрациюПеревод текста в иллюстрациях


  5. Прикрепите болтом крепление ремня безопасности к верхней части центральной стойки.
  6. Затянуть
    Затяните болт крепления ремня безопасности моментом 38 Н•м (28 lb-ft).



    T3B18A02
    Показать иллюстрациюПеревод текста в иллюстрациях


  7. Установите нижнюю панель облицовки центральной стойки. См. Раздел 9G, Облицовка салона.
  8. Прикрепить болтом крепление ремня безопасности к нижней части центральной стойки.
  9. Затянуть
    Затяните болт крепления ремня безопасности моментом 38 Н•м (28 lb-ft).

  10. Присоединить провод к отрицательному выводу аккумуляторной батареи.


T5B18A04
Показать иллюстрациюПеревод текста в иллюстрациях


Регулятор высоты переднего ремня безопасности

Процедура снятия

  1. Снимите верхнюю панель облицовки центральной стойки. См. Раздел 9G, Облицовка салона.
  2. Удалите болты и снимите регулятор высоты ремня безопасности.


T5B18A04
Показать иллюстрациюПеревод текста в иллюстрациях


Процедура установки

    Примечание: Непосредственный контакт разнородных металлов может привести к быстрой коррозии. Во избежание преждевременной коррозии используйте надлежащий крепеж.
  1. Закрепите регулятор высоты ремня безопасности болтами.
  2. Затянуть
    Затянуть болты крепления регулятора высоты ремня безопасности с моментом 27 Н•м (20 lb-ft).

  3. Установите верхнюю панель облицовки центральной стойки. См. Раздел 9G, Облицовка салона.


T5B18A07
Показать иллюстрациюПеревод текста в иллюстрациях


Трехточечный ремень безопасности для заднего сиденья - седан

Процедура снятия

  1. Открутить болт и снять крепление ремня безопасности на панели облицовки колесной арки.


  2. S6B18A01
    Показать иллюстрациюПеревод текста в иллюстрациях


  3. Снять полку верхней задней панели. См. Раздел 9G, Облицовка салона.
  4. Удалите болт и снимите механизм втягивания ремня безопасности.


S6B18A01
Показать иллюстрациюПеревод текста в иллюстрациях


Процедура установки

  1. Закрепить болтом механизм втягивания ремня безопасности.
  2. Затянуть
    Затяните болт крепления механизма втягивания ремня безопасности моментом 38 Н•м (28 lb-ft).



    T5B18A07
    Показать иллюстрациюПеревод текста в иллюстрациях


  3. Установить полку верхней задней панели. См. Раздел 9G, Облицовка салона.
  4. Закрепить болтом механизм втягивания ремня безопасности.
  5. Затянуть
    Затяните болт крепления ремня безопасности моментом 38 Н•м (28 lb-ft).



T5B18A07
Показать иллюстрациюПеревод текста в иллюстрациях


Центральный или наружный трехточечный ремень безопасности для заднего сиденья - хэтчбэк

Процедура снятия

  1. В случае с наружным ремнем безопасности удалите болт и снимите нижнее крепление ремня безопасности.


  2. T5B18A09
    Показать иллюстрациюПеревод текста в иллюстрациях


  3. Откройте багажное отделение.
  4. Снимите облицовочную панель кожуха колеса в багажном отделении. См. Раздел 9G, Облицовка салона.
  5. Удалите болт и снимите натяжитель ремня безопасности в багажном отделении.


  6. T5B19G02
    Показать иллюстрациюПеревод текста в иллюстрациях


  7. Выверните винт и снимите крышку грузового пола в задней части салона. См.
  8. Снять болт и крепление ремня безопасности.


T5B18A09
Показать иллюстрациюПеревод текста в иллюстрациях


Процедура установки

  1. Установить болт и натяжитель ремня безопасности с болтом в багажном отделении.
  2. Затянуть
    Затяните болт крепления механизма втягивания ремня безопасности моментом 38 Н•м (28 lb-ft).



    T5B19G02
    Показать иллюстрациюПеревод текста в иллюстрациях


  3. Установить крепление ремня безопасности на задней стойке.
  4. Затянуть
    Затяните болт крепления ремня безопасности моментом 38 Н•м (28 lb-ft).

  5. Установите крышку грузового пола в задней части салона при помощи винтов.
  6. Установите облицовочную панель кожуха колеса в багажном отделении. См. Раздел 9G, Облицовка салона.


S6B18A05
Показать иллюстрациюПеревод текста в иллюстрациях


Двухточечный ремень безопасности для среднего заднего сиденья и замок

Процедура снятия

  1. Снять подушку заднего сиденья. См. Раздел 9H, Сиденья.
  2. Открутить болт и снять ремень безопасности и замок.


S6B18A05
Показать иллюстрациюПеревод текста в иллюстрациях


Процедура установки

  1. Закрепить ремень безопасности и замок болтом.
  2. Затянуть
    Затяните болт крепления механизма втягивания ремня безопасности моментом 38 Н•м (28 lb-ft).

  3. Установите подушку заднего сиденья. См. Раздел 9H, Сиденья.


T5B18A10
Показать иллюстрациюПеревод текста в иллюстрациях


Замок переднего ремня безопасности - с механизмом втягивания ремня дискового типа

Процедура снятия

  1. Снимите рычаг регулировки наклона сиденья.
  2. Удалите болт и снимите крышку замка.


  3. T5B18A11
    Показать иллюстрациюПеревод текста в иллюстрациях


  4. Открутить болт и снять замок ремня безопасности.
  5. На стороне водителя отключить электрический разъем.


T5B18A11
Показать иллюстрациюПеревод текста в иллюстрациях


Процедура установки

  1. Закрепите замок ремня безопасности болтом.
  2. Затянуть
    Затяните болт крепления замка ремня безопасности моментом 38 Н•м (28 lb-ft).



    T5B18A12
    Показать иллюстрациюПеревод текста в иллюстрациях


  3. Установите крышку замка и рычаг регулировки наклона сиденья.
  4. На стороне водителя подключить электрический разъем.


S6B18A03
Показать иллюстрациюПеревод текста в иллюстрациях


Замок переднего ремня безопасности - с механизмом втягивания ремня рычажного типа

Процедура снятия

  1. Удалите болт и снимите крышку замка.


  2. S6B18A04
    Показать иллюстрациюПеревод текста в иллюстрациях


  3. Открутить болт и снять замок ремня безопасности.
  4. На стороне водителя отключить электрический разъем.


S6B18A04
Показать иллюстрациюПеревод текста в иллюстрациях


Процедура установки

  1. Закрепите замок ремня безопасности болтом.
  2. Затянуть
    Затяните болт крепления замка ремня безопасности моментом 38 Н•м (28 lb-ft).



    S6B18A03
    Показать иллюстрациюПеревод текста в иллюстрациях


  3. Установить крышку замка и закрутить винты.
  4. На стороне водителя подключить электрический разъем.


T5B18A13
Показать иллюстрациюПеревод текста в иллюстрациях


Замок заднего ремня безопасности

Процедура снятия

  1. Снять подушку заднего сиденья. См. Раздел 9H, Сиденья.
  2. Удалите болт и снимите замок ремня безопасности.


T5B18A13
Показать иллюстрациюПеревод текста в иллюстрациях


Процедура установки

  1. Закрепите замок ремня безопасности болтом.
  2. Затянуть
    Затяните болт крепления замка ремня безопасности моментом 38 Н•м (28 lb-ft).

  3. Установите подушку заднего сиденья. См. Раздел 9H, Сиденья.

ОБЩЕЕ ОПИСАНИЕ И РАБОТА СИСТЕМЫ

Сигнализация непристегнутого ремня безопасности водителя

Система сигнализации непристегнутого ремня безопасности выдает предупредительный звуковой и световой сигнал, если ремень безопасности не пристегнут.
Уровень предупреждения зависит от состояния автомобиля , а сигнал выдается водителю посредством предупредительной лампы ремня безопасности и звука.
После включения зажигания предупредительная лампа ремня безопасности загорается на 5 секунд и гаснет на 2 секунды независимо от состояния ремня безопасности. Если после этого ремень безопасности не будет застегнут, предупредительная лампа мигает в течение 90 секунд, а затем горит непрерывно до тех пор, пока не будет застегнут ремень безопасности. Как только ремень безопасности застегивается, предупредительная лампа гаснет.
Затем сигнализация ремня безопасности работает по следующей схеме, в зависимости от состояния автомобиля.
Состояние автомобиля
Лампа сигнализации
Звуковое предупреждение
Ремень не пристегнут, скорость автомобиля < 22 км/ч
Мигает (1 Гц)
Выключен
Ремень не пристегнут, скорость автомобиля ≥ 22 км/ч
Мигает (1 Гц)
Включен

Передний ремень безопасности с натяжителем - только для Западной Европы

Передний ремень безопасности в стандартной комплектации поставляется с натяжителем. Натяжитель содержит пиротехнический механизм втягивания с механическим управлением, который срабатывает при лобовом столкновении, прямом или под углом, и выбирает слабину ремня безопасности. После аварийной ситуации, вызвавшей срабатывание натяжителя переднего ремня безопасности, натяжитель необходимо заменить.

Трехточечный ремень безопасности для переднего и заднего сиденья с механизмом втягивания с аварийной блокировкой (elr)

Натяжитель трехточечного ремня безопасности с механизмом втягивания с аварийной блокировкой (ELR) в обычном состоянии разблокирован, что позволяет пассажиру свободно двигаться. Исключение составляют аварийные ситуации - резкое торможение, резкое ускорение или резкие повороты.

двухточечный поясной ремень безопасности для среднего заднего сиденья

Двухточечный поясной ремень безопасности для среднего заднего сиденья представляет собой единую непрерывную ленту. Лента ремня проходит от точки крепления через пластину защелки и затем в механизм втягивания.

Оперативные и функциональные проверки

Внимание!
  1. Проверьте все болты и винты крепления ремней безопасности, чтобы убедиться, что они надежно завернуты.
  2. Осмотрите замок ремня безопасности. Замок должен легко застегиваться и расстегиваться.
  3. Вставив язычок в замок, резко дерните за ремень. Замок не должен рассоединиться.
  4. Полностью вытяните плечевую часть ремня и убедитесь, что на ремне нет скруток и надрывов.
  5. Отпустите плечевую часть ремня, чтобы она полностью втянулась. Ремень должен втягиваться свободно.


На предыдущую страницу На следующую страницу
https://vnx.su/ 🛠 Руководства по ремонту и эксплуатации для автомобилей

Поиск по сайту

Остались вопросы или пожелания? Пишите на почту: support@vnx.su

Карта Сайта