Tacuma-Rezzo
To Previous Page To Next Page



7. FULL AUTOMATIC TEMPERATURE CONTROL (FATC)

1) motor (intake, mode & blower) & power tr circuit

U5D15100.png


a. CONNECTOR INFORMATION

connector no
(pin no, color)
connecting wiring harness connector position
C204 (12 Pin, White) I/P Fuse Block – IP Front the I/P Fuse Block
C205 (14 Pin, White) I/P Fuse Block – IP Front the I/P Fuse Block
C206 (3 Pin, Brown) I/P Fuse Block – IP Front the I/P Fuse Block
C212 (18 Pin, Blue) Front – IP Left Upper the Driver Leg Room
C213 (7 Pin, Gray) Front – IP Left Upper the Driver Leg Room
C219 (15 Pin, White) IP – FATC Upper the Evaporator Housing
S101 (White) Front Inside the Engine Fuse Block
S206 (Violet) IP Rear Left Instrument Panel
G102 Front Behind the Left Headlamp
G203 IP Under Right Ashtray

b. CONNECTOR IDENTIFICATION SYMBOL & PIN NUMBER POSITION

U4D1P097.png


c. POSITION OF CONNECTORS AND GROUNDS

U4D12024.png


d. SPLICE PACK

s101

U6D1S008.png


s206

U5D1S018.png


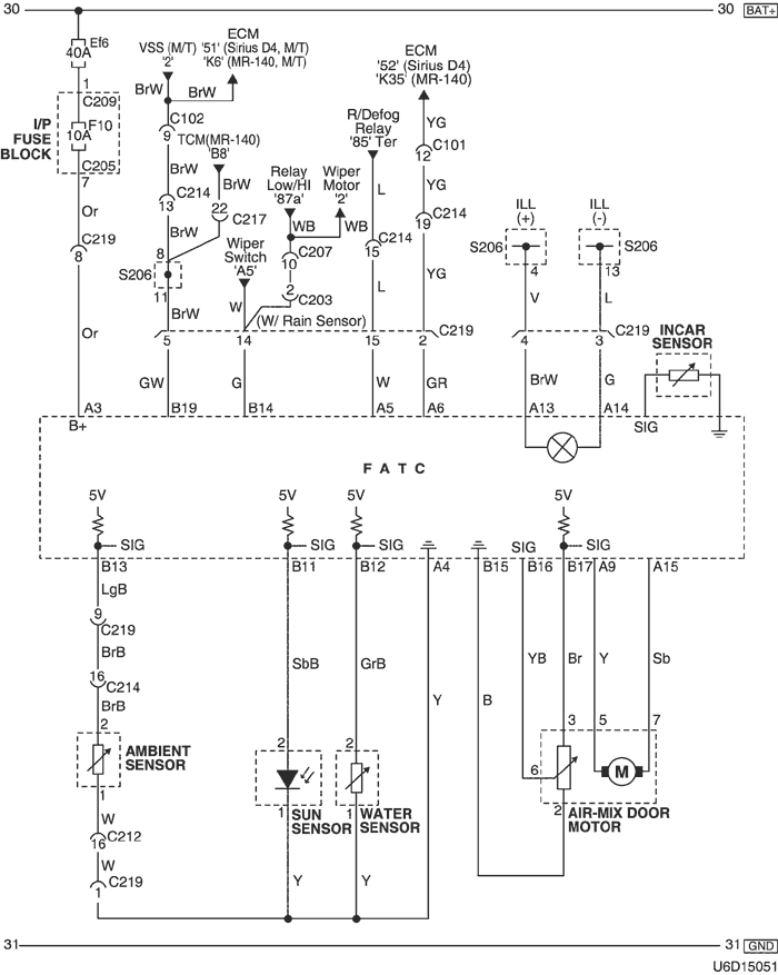
2) air mix door motor, a/c comp. & SENSOR (AMBIENT, SUN, WATER & INCAR) CIRCUIT : MR-140, SIRIUS D4

U6D15051.png


a. CONNECTOR INFORMATION

connector no
(pin no, color)
connecting wiring harness connector position
C101 (15 Pin, Black) Engine – Front Behind the Left Headlamp
C102 (16 Pin, Black) Engine – Front Behind the Left Headlamp
C203 (22 Pin, White) I/P Fuse Block - IP Front the I/P Fuse Block
C205 (14 Pin, White) I/P Fuse Block – IP Front the I/P Fuse Block
C207 (22 Pin, White) I/P Fuse Block - Front Behind the I/P Fuse Block
C209 (1 Pin, Colorless) I/P Fuse Block – Front Behind the I/P Fuse Block
C212 (18 Pin, Blue) Front – IP Left Upper the Driver Leg Room
C214 (26 Pin, Yellow) Front – IP Left Upper the Driver Leg Room
C217 (22 Pin, White) IP – TCM Center Upper the Driver Leg Room
C219 (15 Pin, White) IP – FATC Upper the Evaporator Housing
S206 (Violet) IP Rear Left Instrument Panel

b. CONNECTOR IDENTIFICATION SYMBOL & PIN NUMBER POSITION

U5D1P037.png


c. POSITION OF CONNECTORS AND GROUNDS

U4D12024.png


U4D12025.png


d. SPLICE PACK

s206

U5D1S018.png


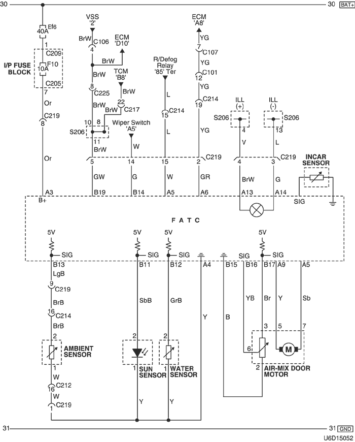
3) air mix door motor, a/c comp. & SENSOR (AMBIENT, SUN, WATER & INCAR) CIRCUIT : ITMS-6F

U6D15052.png


a. CONNECTOR INFORMATION

connector no
(pin no, color)
connecting wiring harness connector position
C101 (15 Pin, Black) Engine – Front Behind the Left Headlamp
C106 (16 Pin, Black) Engine - ECM Right Upper The Driver Leg Room
C107 (16 Pin, Black) Engine - ECM Right Upper The Driver Leg Room
C205 (14 Pin, White) I/P Fuse Block – IP Front the I/P Fuse Block
C209 (1 Pin, Colorless) I/P Fuse Block – Front Behind the I/P Fuse Block
C212 (18 Pin, Blue) Front – IP Left Upper the Driver Leg Room
C214 (26 Pin, Yellow) Front – IP Left Upper the Driver Leg Room
C217 (22 Pin, White) IP – TCM Center Upper the Driver Leg Room
C219 (15 Pin, White) IP – FATC Upper the Evaporator Housing
C225 (8 Pin, White) IP – ECM Center Upper The Driver Leg Room
S206 (Violet) IP Rear Left Instrument Panel

b. CONNECTOR IDENTIFICATION SYMBOL & PIN NUMBER POSITION

U4D1P099.png


c. POSITION OF CONNECTORS AND GROUNDS

U4D12024.png


U4D12025.png


d. SPLICE PACK

s206

U5D1S018.png


To Previous Page To Next Page


https://vnx.su/ 🛠 Руководства по ремонту и эксплуатации для автомобилей

Поиск по сайту

Остались вопросы или пожелания? Пишите на почту: support@vnx.su

Карта Сайта