Tacuma-Rezzo
To Previous Page To Next Page



23. CLUSTER

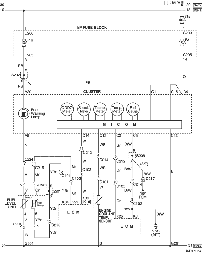
1) speedometer, fuel meter, temp. METER, TACHOMETER & ODOMETER CIRCUIT : MR-140

U6D15064.png


a. CONNECTOR INFORMATION

connector no
(pin no, color)
connecting wiring harness connector position
C101 (15 Pin, Black) Engine – Front Behind the Left Headlamp
C102 (16 Pin, Black) Engine – Front Behind the Left Headlamp
C103 (6 Pin, Gray) Front – Engine Under the Engine Fuse Block
C205 (14 Pin, White) I/P Fuse Block – IP Front the I/P Fuse Block
C206 (3 Pin, Brown) I/P Fuse Block – IP Front the I/P Fuse Block
C209 (1 Pin, Colorless) I/P Fuse Block – Front Behind the I/P Fuse Block
C212 (18 Pin, Blue) Front – IP Left Upper the Driver Leg Room
C214 (26 Pin, Yellow) Front – IP Left Upper the Driver Leg Room
C215 (16 Pin, White) Floor – Front Under the I/P Fuse Block
C217 (22 Pin, White) IP – TCM Center Upper the Driver Leg Room
C224 (14 Pin, White) IP – Floor Under the Door Lock Unit
C901 (6 Pin, Black) Fuel Tank – Floor Behind the Fuel Tank
S201 (Colorless) Front Left Upper the Driver Leg Room
S202 (Orange) IP Rear Right Instrument Panel
S206 (Violet) IP Rear Left Instrument Panel
G201 IP Rear Right Instrument Panel
G301 Floor Under the Driver Room Floor

b. CONNECTOR IDENTIFICATION SYMBOL & PIN NUMBER POSITION

U4D1P123.png


c. POSITION OF CONNECTORS AND GROUNDS

U4D12006.png


U4D12018.png


d. SPLICE PACK

s201 (mr-140)

U6D1S007.png


s202

U5D1S015.png


s206

U5D1S018.png


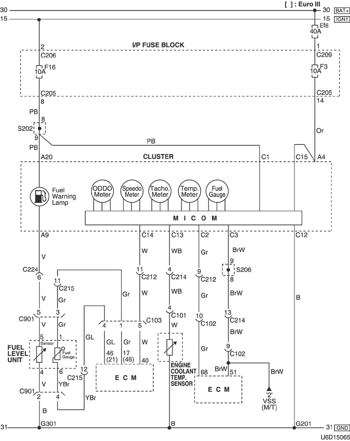
2) speedometer, fuel meter, temp. METER, TACHOMETER & ODOMETER CIRCUIT : SIRIUS D4 (EOBD)

U6D15065.png


a. CONNECTOR INFORMATION

connector no
(pin no, color)
connecting wiring harness connector position
C101 (15 Pin, Black) Engine – Front Behind the Left Headlamp
C102 (16 Pin, Black) Engine – Front Behind the Left Headlamp
C103 (6 Pin, Gray) Front – Engine Under the Engine Fuse Block
C205 (14 Pin, White) I/P Fuse Block – IP Front the I/P Fuse Block
C206 (3 Pin, Brown) I/P Fuse Block – IP Front the I/P Fuse Block
C209 (1 Pin, Colorless) I/P Fuse Block – Front Behind the I/P Fuse Block
C212 (18 Pin, Blue) Front – IP Left Upper the Driver Leg Room
C214 (26 Pin, Yellow) Front – IP Left Upper the Driver Leg Room
C215 (16 Pin, White) Floor – Front Under the I/P Fuse Block
C224 (14 Pin, White) IP – Floor Under the Door Lock Unit
C901 (6 Pin, Black) Fuel Tank – Floor Behind the Fuel Tank
S202 (Orange) IP Rear Right Instrument Panel
S206 (Violet) IP Rear Left Instrument Panel
G201 IP Rear Right Instrument Panel
G301 Floor Under the Driver Room Floor

b. CONNECTOR IDENTIFICATION SYMBOL & PIN NUMBER POSITION

U5D1P049.png


c. POSITION OF CONNECTORS AND GROUNDS

U4D12024.png


U4D12006.png


d. SPLICE PACK

s202

U5D1S015.png


s206

U5D1S018.png


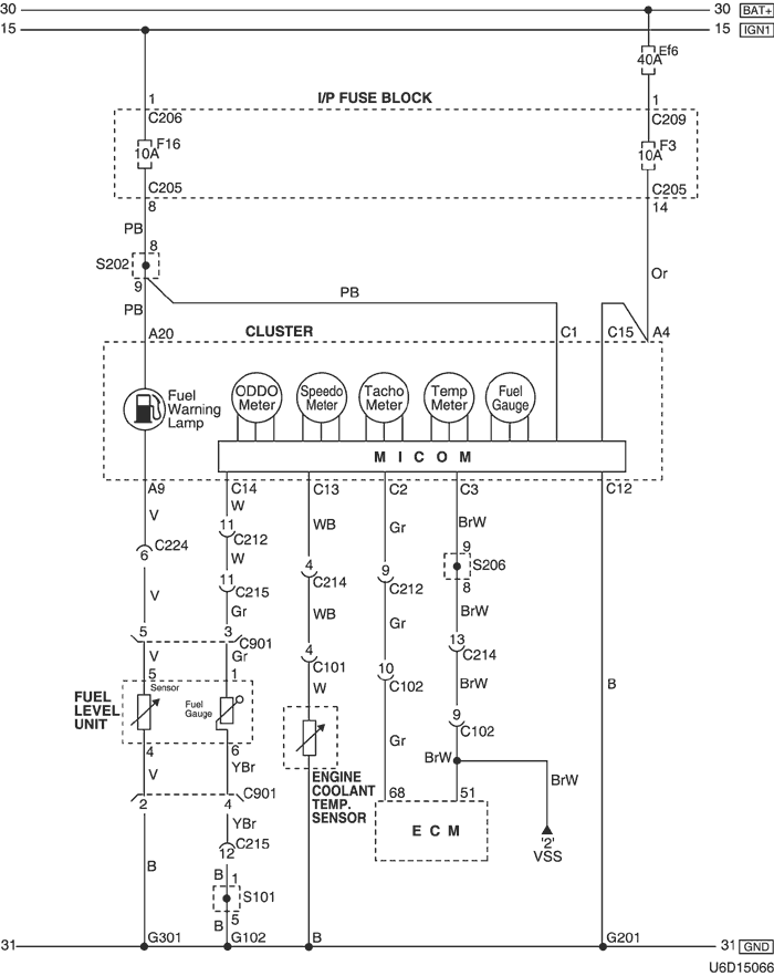
3) speedometer, fuel meter, temp. METER, TACHOMETER & ODOMETER CIRCUIT : SIRIUS D4 (NON EOBD)

U6D15066.png


a. CONNECTOR INFORMATION

connector no
(pin no, color)
connecting wiring harness connector position
C101 (15 Pin, Black) Engine – Front Behind the Left Headlamp
C102 (16 Pin, Black) Engine – Front Behind the Left Headlamp
C205 (14 Pin, White) I/P Fuse Block – IP Front the I/P Fuse Block
C206 (3 Pin, Brown) I/P Fuse Block – IP Front the I/P Fuse Block
C209 (1 Pin, Colorless) I/P Fuse Block – Front Behind the I/P Fuse Block
C212 (18 Pin, Blue) Front – IP Left Upper the Driver Leg Room
C214 (26 Pin, Yellow) Front – IP Left Upper the Driver Leg Room
C215 (16 Pin, White) Floor – Front Under the I/P Fuse Block
C224 (14 Pin, White) IP – Floor Under the Door Lock Unit
C901 (6 Pin, Black) Fuel Tank – Floor Behind the Fuel Tank
S101 (White) Front Inside the Engine Fuse Block
S202 (Orange) IP Rear Right Instrument Panel
S206 (Violet) IP Rear Left Instrument Panel
G102 Front Behind the Left Headlamp
G201 IP Rear Right Instrument Panel
G301 Floor Under the Driver Room Floor

b. CONNECTOR IDENTIFICATION SYMBOL & PIN NUMBER POSITION

U4D1P125.png


c. POSITION OF CONNECTORS AND GROUNDS

U4D12024.png


U4D12006.png


d. SPLICE PACK

s101

U6D1S008.png


s202

U5D1S015.png


s206

U5D1S018.png


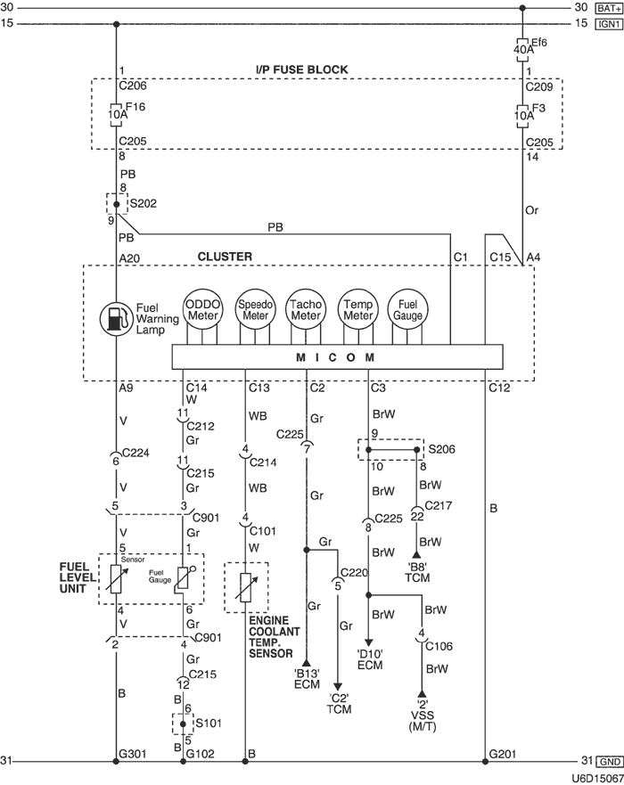
4) speedometer, fuel meter, temp. METER, TACHOMETER & ODOMETER CIRCUIT : ITMS-6F

U6D15067.png


a. CONNECTOR INFORMATION

connector no
(pin no, color)
connecting wiring harness connector position
C101 (15 Pin, Black) Engine – Front Behind the Left Headlamp
C106 (16 Pin, Black) Engine – ECM Right Upper The Driver Leg Room
C205 (14 Pin, White) I/P Fuse Block – IP Front the I/P Fuse Block
C206 (3 Pin, Brown) I/P Fuse Block – IP Front the I/P Fuse Block
C209 (1 Pin, Colorless) I/P Fuse Block – Front Behind the I/P Fuse Block
C212 (18 Pin, Blue) Front – IP Left Upper the Driver Leg Room
C214 (26 Pin, Yellow) Front – IP Left Upper the Driver Leg Room
C215 (16 Pin, White) Floor – Front Under the I/P Fuse Block
C217 (22 Pin, White) IP – TCM Center Upper the Driver Leg Room
C220 (6 Pin, White) ECM - TCM Right Center the Driver Leg Room (ITMS–6F)
C224 (14 Pin, White) IP – Floor Under the Door Lock Unit
C225 (8 pin, White) IP – ECM Center Upper The Driver Leg Room
C901 (6 Pin, Black) Fuel Tank – Floor Behind the Fuel Tank
S101 (White) Front Inside the Engine Fuse Block
S202 (Orange) IP Rear Right Instrument Panel
S206 (Violet) IP Rear Left Instrument Panel
G102 Front Behind the Left Headlamp
G201 IP Rear Right Instrument Panel
G301 Floor Under the Driver Room Floor

b. CONNECTOR IDENTIFICATION SYMBOL & PIN NUMBER POSITION

U4D1P126.png


c. POSITION OF CONNECTORS AND GROUNDS

U4D12024.png


d. SPLICE PACK

s101

U6D1S008.png


s202

U5D1S015.png


s206

U5D1S018.png


5) warning (seat belt, oil pressure & mil) lamp & illumination lamp circuit

U5D15133.png


a. CONNECTOR INFORMATION

connector no
(pin no, color)
connecting wiring harness connector position
C101 (15 Pin, Black) Engine – Front Behind the Left Headlamp
C102 (16 Pin, Black) Engine – Front Behind the Left Headlamp
C205 (14 Pin, White) I/P Fuse Block – IP Front the I/P Fuse Block
C206 (3 Pin, Brown) I/P Fuse Block – IP Front the I/P Fuse Block
C212 (18 Pin, Blue) Front – IP Left Upper the Driver Leg Room
C224 (14 Pin, White) IP – Floor Under the Door Lock Unit
C225 (8 pin, White) IP – ECM Center Upper The Driver Leg Room
S202 (Orange) IP Rear Right Instrument Panel
S203 (Orange) IP Rear Center Instrument Panel
S205 (Orange) IP Rear Center Instrument Panel
G301 Floor Under the Driver Room Floor

b. CONNECTOR IDENTIFICATION SYMBOL & PIN NUMBER POSITION

U5D1P050.png


c. POSITION OF CONNECTORS AND GROUNDS

U4D12029.png


U4D12006.png


d. SPLICE PACK

s202

U5D1S015.png


s203

U5D1S016.png


s205

U5D1S017.png


6) warning (charging, parking brake, abs, air-bag, power mode, hold mode & hot mode) lamp circuit

U5D15134.png


a. CONNECTOR INFORMATION

connector no
(pin no, color)
connecting wiring harness connector position
C101 (15 Pin, Black) Engine – Front Behind the Left Headlamp
C102 (16 Pin, Black) Engine – Front Behind the Left Headlamp
C203 (22 Pin, White) I/P Fuse Block – IP Front the I/P Fuse Block
C205 (14 Pin, White) I/P Fuse Block – IP Front the I/P Fuse Block
C206 (3 Pin, Brown) I/P Fuse Block – IP Front the I/P Fuse Block
C207 (22 Pin, White) I/P Fuse Block – Front Behind the I/P Fuse Block
C210 (18 Pin, White) I/P Fuse Block – Floor Behind the I/P Fuse Block
C212 (18 Pin, Blue) Front – IP Left Upper the Driver Leg Room
C214 (26 Pin, Yellow) Front – IP Left Upper the Driver Leg Room
C217 (22 Pin, White) IP – TCM Center Upper the Driver Leg Room
C218 (4 Pin, White) Air Bag – IP Right Upper the Driver Leg Room
S101 (White) Front Inside the Engine Fuse Block
S202 (Orange) IP Rear Right Instrument Panel
G102 Front Behind the Left Headlamp

b. CONNECTOR IDENTIFICATION SYMBOL & PIN NUMBER POSITION

U5D1P051.png


c. POSITION OF CONNECTORS AND GROUNDS

U4D12029.png


U4D12006.png


d. SPLICE PACK

s101

U6D1S008.png


s202

U5D1S015.png


7) indicator (turn signal, front/rear fog, door opening warning & high beam) lamp circuit

U5D15135.png


a. CONNECTOR INFORMATION

connector no
(pin no, color)
connecting wiring harness connector position
C202 (6 Pin, White) I/P Fuse Block – Roof Front the I/P Fuse Block
C203 (22 Pin, White) I/P Fuse Block – IP Front the I/P Fuse Block
C205 (14 Pin, White) I/P Fuse Block – IP Front the I/P Fuse Block
C209 (1 Pin, Colorless) I/P Fuse Block – Front Behind the I/P Fuse Block
C210 (18 Pin, White) I/P Fuse Block – Floor Behind the I/P Fuse Block
C401 (10 Pin, White) Tailgate – Floor Behind the Rear Quarter Glass
C404 (8 Pin, White) Tailgate – Tailgate, AUX Left Under Tailgate Behind the Tail Lamp
S203 (Orange) IP Rear Center Instrument Panel
G201 IP Rear Right Instrument Panel

b. CONNECTOR IDENTIFICATION SYMBOL & PIN NUMBER POSITION

U5D1P052.png


c. POSITION OF CONNECTORS AND GROUNDS

U4D12029.png


U4D12006.png


d. SPLICE PACK

s203

U5D1S016.png


8) indicator & prnd switch

U5D15066.png


a. CONNECTOR INFORMATION

connector no
(pin no, color)
connecting wiring harness connector position
C203 (22 Pin, White) I/P Fuse Block – IP Front the I/P Fuse Block
C206 (3 Pin, Brown) I/P Fuse Block – IP Front the I/P Fuse Block
C217 (22 Pin, White) IP – TCM Center Upper the Driver Leg Room

b. CONNECTOR IDENTIFICATION SYMBOL & PIN NUMBER POSITION

U4D1P130.png


c. POSITION OF CONNECTORS AND GROUNDS

U4D12024.png


U4D12006.png


U4D12009.png


To Previous Page To Next Page


https://vnx.su/ 🛠 Руководства по ремонту и эксплуатации для автомобилей

Поиск по сайту

Остались вопросы или пожелания? Пишите на почту: support@vnx.su

Карта Сайта