К началу документа
Tacuma-Rezzo
На предыдущую страницуНа следующую страницу
Главная страница GMDEЗагрузить нединамическое оглавлениеЗагрузить динамическое оглавлениеПомощь



7. АВТОМАТИЧЕСКОЕ РЕГУЛИРОВАНИЕ ТЕМПЕРАТУРЫ

1) ЦЕПЬ ПРИВОДА (ВПУСКНОЙ ЗАСЛОНКИ, ПЕРЕКЛЮЧЕНИЯ РЕЖИМА И ВЕНТИЛЯТОРА) И СИЛОВОГО ТРАНЗИСТОРА

U5D15028.png
Показать иллюстрациюПеревод текста в иллюстрациях


а. ИНФОРМАЦИЯ О РАЗЪЁМЕ

№ РАЗЪЁМА
(№ И ЦВЕТ КОНТАКТА)
СОЕДИНИТЕЛЬНЫЙ ЖГУТ ПРОВОДОВПОЛОЖЕНИЕ РАЗЪЁМА
С204 (контакт 12, белый) Блок предохранителей на приборной панели - приборная панель Передняя часть блока предохранителей на приборной панели
С205 (контакт 14, белый) Блок предохранителей на приборной панели - приборная панель Передняя часть блока предохранителей на приборной панели
C206 (контакт 3, коричневый) Блок предохранителей на приборной панели - приборная панель Передняя часть блока предохранителей на приборной панели
С212 (контакт 18, синий) Передняя часть - приборная панель Левая верхняя часть пространства для ног водителя
С213 (контакт 7, серый) Передняя часть - приборная панель Левая верхняя часть пространства для ног водителя
С219 (контакт 15, белый) Приборная панель - автоматическое регулирование температуры Над корпусом испарителя
S101 (бел.) ПЕРЕДНЯЯ ЧАСТЬ Внутренняя сторона блока предохранителей в моторном отсеке
S206 (фиолетов.) Приборная панель За вещевым ящиком с левой стороны
G102 ПЕРЕДНЯЯ ЧАСТЬ За левой фарой
G203 Приборная панель Под пепельницей с правой стороны

б. УСЛОВНОЕ ОБОЗНАЧЕНИЕ & И НАХОЖДЕНИЕ НОМЕРА КОНТАКТА

U4D1P026.png
Показать иллюстрациюПеревод текста в иллюстрациях


в. РАСПОЛОЖЕНИЕ РАЗЪЁМОВ И СОЕДИНЕНИЙ МАССЫ

U4D12003.png
Показать иллюстрациюПеревод текста в иллюстрациях


г. КОНТАКТНАЯ КОЛОДКА

s101 (itms-6f)

U6D1S002.png
Показать иллюстрациюПеревод текста в иллюстрациях


s101 (mr-140, sirius d4)

U6D1S001.png
Показать иллюстрациюПеревод текста в иллюстрациях


s206

U5D1S010.png
Показать иллюстрациюПеревод текста в иллюстрациях


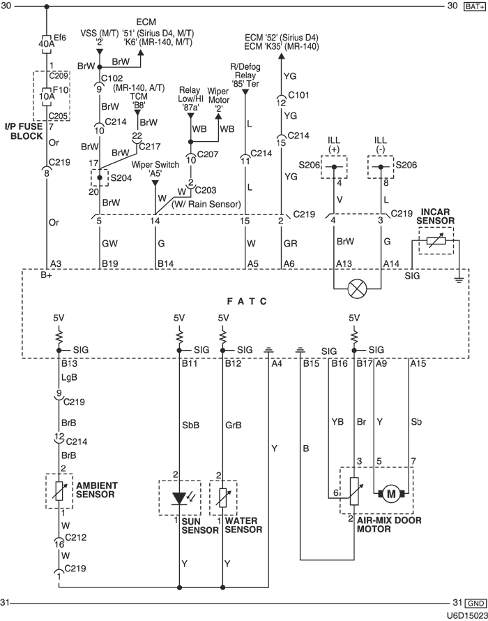
2) ЦЕПЬ ЭЛЕКТРОПРИВОДА ВОЗДУШНОЙ СМЕСИТЕЛЬНОЙ ЗАСЛОНКИ, КОМПР. КОНДИЦИОНЕРА И ДАТЧИКОВ (ТЕМПЕРАТУРЫ НАРУЖНОГО ВОЗДУХА, СОЛНЕЧНОГО ОСВЕЩЕНИЯ, ВЛАГИ И САЛОНА) : MR-140, SIRIUS D4

U6D15023.png
Показать иллюстрациюПеревод текста в иллюстрациях


а. ИНФОРМАЦИЯ О РАЗЪЁМЕ

№ РАЗЪЁМА
(№ И ЦВЕТ КОНТАКТА)
СОЕДИНИТЕЛЬНЫЙ ЖГУТ ПРОВОДОВПОЛОЖЕНИЕ РАЗЪЁМА
С101 (контакт 15, черный) Двигатель - передняя часть кузова За левой фарой
С102 (контакт 16, черный) Двигатель - передняя часть кузова За левой фарой
С203 (контакт 22, белый) Блок предохранителей на приборной панели - приборная панель Передняя часть блока предохранителей на приборной панели
С205 (контакт 14, белый) Блок предохранителей на приборной панели - приборная панель Передняя часть блока предохранителей на приборной панели
С207 (контакт 22, белый) Блок предохранителей на приборной панели - передняя часть За блоком предохранителей на приборной панели
C209 (контакт 1, бесцветный) Блок предохранителей на приборной панели - передняя часть За блоком предохранителей на приборной панели
С212 (контакт 18, синий) Передняя часть - приборная панель Левая верхняя часть пространства для ног водителя
С214 (контакт 22, желтый) Передняя часть - приборная панель Левая верхняя часть пространства для ног водителя
С217 (контакт 22, белый) Приборная панель - контроллер КПП Центральная верхняя часть пространства для ног водителя
С219 (контакт 15, белый) Приборная панель - автоматическое регулирование температуры Над корпусом испарителя
S204 (оранжев.) Приборная панель За приборной панелью в центре
S206 (фиолетов.) Приборная панель За вещевым ящиком с левой стороны

б. УСЛОВНОЕ ОБОЗНАЧЕНИЕ & И НАХОЖДЕНИЕ НОМЕРА КОНТАКТА

U5D1P008.png
Показать иллюстрациюПеревод текста в иллюстрациях


в. РАСПОЛОЖЕНИЕ РАЗЪЁМОВ И СОЕДИНЕНИЙ МАССЫ

U4D12003.png
Показать иллюстрациюПеревод текста в иллюстрациях


г. КОНТАКТНАЯ КОЛОДКА

s204

U5D1S008.png
Показать иллюстрациюПеревод текста в иллюстрациях


s206

U5D1S010.png
Показать иллюстрациюПеревод текста в иллюстрациях


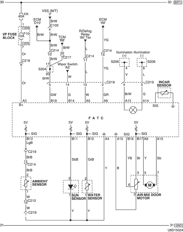
3) ЦЕПЬ ЭЛЕКТРОПРИВОДА ВОЗДУШНОЙ СМЕСИТЕЛЬНОЙ ЗАСЛОНКИ, КОМПР. КОНДИЦИОНЕРА И ДАТЧИКОВ (ТЕМПЕРАТУРЫ НАРУЖНОГО ВОЗДУХА, СОЛНЕЧНОГО ОСВЕЩЕНИЯ, ВЛАГИ, САЛОНА) : ITMS - 6F

U6D15024.png
Показать иллюстрациюПеревод текста в иллюстрациях


а. ИНФОРМАЦИЯ О РАЗЪЁМЕ

№ РАЗЪЁМА
(№ И ЦВЕТ КОНТАКТА)
СОЕДИНИТЕЛЬНЫЙ ЖГУТ ПРОВОДОВПОЛОЖЕНИЕ РАЗЪЁМА
С102 (контакт 16, черный) Двигатель - передняя часть кузова За левой фарой
С205 (контакт 14, белый) Блок предохранителей на приборной панели - приборная панель Передняя часть блока предохранителей на приборной панели
C209 (контакт 1, бесцветный) Блок предохранителей на приборной панели - передняя часть За блоком предохранителей на приборной панели
С212 (контакт 18, синий) Передняя часть - приборная панель Левая верхняя часть пространства для ног водителя
С214 (контакт 22, желтый) Передняя часть - приборная панель Левая верхняя часть пространства для ног водителя
С217 (контакт 22, белый) Приборная панель - контроллер КПП Центральная верхняя часть пространства для ног водителя
С219 (контакт 15, белый) Приборная панель - автоматическое регулирование температуры Над корпусом испарителя
S204 (оранжев.) Приборная панель За приборной панелью в центре
S206 (фиолетов.) Приборная панель За вещевым ящиком с левой стороны

б. УСЛОВНОЕ ОБОЗНАЧЕНИЕ & И НАХОЖДЕНИЕ НОМЕРА КОНТАКТА

U4D1P028.png
Показать иллюстрациюПеревод текста в иллюстрациях


в. РАСПОЛОЖЕНИЕ РАЗЪЁМОВ И СОЕДИНЕНИЙ МАССЫ

U4D12003.png
Показать иллюстрациюПеревод текста в иллюстрациях


г. КОНТАКТНАЯ КОЛОДКА

s204

U5D1S008.png
Показать иллюстрациюПеревод текста в иллюстрациях


s206

U5D1S010.png
Показать иллюстрациюПеревод текста в иллюстрациях


На предыдущую страницуНа следующую страницу


https://vnx.su/ 🛠 Руководства по ремонту и эксплуатации для автомобилей

Поиск по сайту

Остались вопросы или пожелания? Пишите на почту: support@vnx.su

Карта Сайта