К началу документа
Tacuma-Rezzo
На предыдущую страницуНа следующую страницу
Главная страница GMDEЗагрузить нединамическое оглавлениеЗагрузить динамическое оглавлениеПомощь



29. ЦЕПЬ СИСТЕМЫ УПРАВЛЕНИЯ ПРОТИВОУГОННОЙ СИСТЕМОЙ

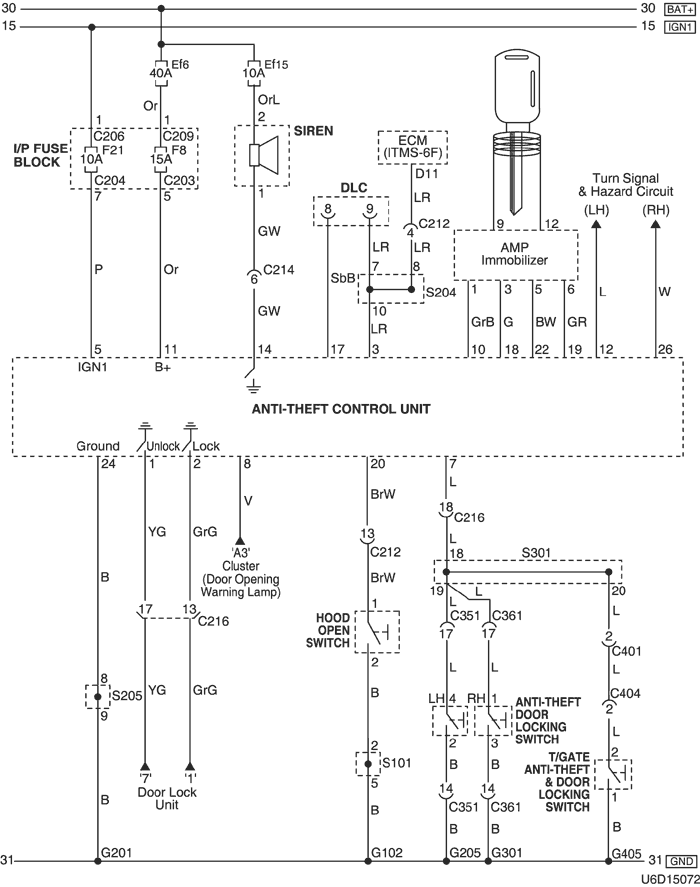
1) ТОЛЬКО ПРОТИВОУГОННАЯ СИСТЕМА

U6D15071.png
Показать иллюстрациюПеревод текста в иллюстрациях


а. ИНФОРМАЦИЯ О РАЗЪЁМЕ

№ РАЗЪЁМА
(№ И ЦВЕТ КОНТАКТА)
СОЕДИНИТЕЛЬНЫЙ ЖГУТ ПРОВОДОВПОЛОЖЕНИЕ РАЗЪЁМА
С203 (контакт 22, белый) Блок предохранителей на приборной панели - приборная панель Передняя часть блока предохранителей на приборной панели
С204 (контакт 12, белый) Блок предохранителей на приборной панели - приборная панель Передняя часть блока предохранителей на приборной панели
C206 (контакт 3, коричневый) Блок предохранителей на приборной панели - приборная панель Передняя часть блока предохранителей на приборной панели
C209 (контакт 1, бесцветный) Блок предохранителей на приборной панели - передняя часть За блоком предохранителей на приборной панели
С212 (контакт 18, синий) Передняя часть - приборная панель Левая верхняя часть пространства для ног водителя
С214 (контакт 22, желтый) Передняя часть - приборная панель Левая верхняя часть пространства для ног водителя
С216 (контакт 22, белый) Пол - приборная панель Под блоком предохранителей на приборной панели
С351 (контакт 29, белый) Пол - дверь водителя Внутренняя сторона левой передней стойки
С361 (контакт 29, белый) Пол - дверь пассажира Внутренняя сторона правой передней стойки
С401 (контакт 10, белый) Задняя дверь - пол За боковым стеклом в задней части кузова
С404 (контакт 8, белый) Задняя дверь - задняя дверь, допол. С левой стороны под задней дверью за задним фонарем
S101 (бел.) ПЕРЕДНЯЯ ЧАСТЬ Внутренняя сторона блока предохранителей в моторном отсеке
S205 (оранжев.) Приборная панель За приборной панелью в центре
S301 (черн.) Пол Под панелью поперечины со стороны водителя
G102 ПЕРЕДНЯЯ ЧАСТЬ За левой фарой
G201 Приборная панель Над кронштейном блока предохранителей на приборной панели
G203 Приборная панель Под пепельницей с правой стороны
G205 Пол За блоком предохранителей на приборной панели
G301 Пол Под полом в салоне автомобиля
G405 Задняя дверь, допол. Под двигателем заднего стеклоочистителя

б. УСЛОВНОЕ ОБОЗНАЧЕНИЕ & И НАХОЖДЕНИЕ НОМЕРА КОНТАКТА

U5D1P025.png
Показать иллюстрациюПеревод текста в иллюстрациях


в. РАСПОЛОЖЕНИЕ РАЗЪЁМОВ И СОЕДИНЕНИЙ МАССЫ

U4D12003.png
Показать иллюстрациюПеревод текста в иллюстрациях


г. КОНТАКТНАЯ КОЛОДКА

s101 (itms-6f)

U6D1S002.png
Показать иллюстрациюПеревод текста в иллюстрациях


s101 (mr-140, sirius d4)

U6D1S001.png
Показать иллюстрациюПеревод текста в иллюстрациях


s205

U5D1S009.png
Показать иллюстрациюПеревод текста в иллюстрациях


s301

U5D1S011.png
Показать иллюстрациюПеревод текста в иллюстрациях


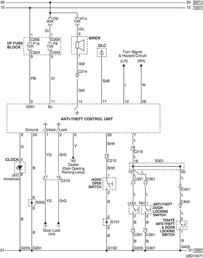
2) С ИММОБИЛИЗАТОРОМ

U6D15072.png
Показать иллюстрациюПеревод текста в иллюстрациях


а. ИНФОРМАЦИЯ О РАЗЪЁМЕ

№ РАЗЪЁМА
(№ И ЦВЕТ КОНТАКТА)
СОЕДИНИТЕЛЬНЫЙ ЖГУТ ПРОВОДОВПОЛОЖЕНИЕ РАЗЪЁМА
С203 (контакт 22, белый) Блок предохранителей на приборной панели - приборная панель Передняя часть блока предохранителей на приборной панели
С204 (контакт 12, белый) Блок предохранителей на приборной панели - приборная панель Передняя часть блока предохранителей на приборной панели
C206 (контакт 3, коричневый) Блок предохранителей на приборной панели - приборная панель Передняя часть блока предохранителей на приборной панели
C209 (контакт 1, бесцветный) Блок предохранителей на приборной панели - передняя часть За блоком предохранителей на приборной панели
С212 (контакт 18, синий) Передняя часть - приборная панель Левая верхняя часть пространства для ног водителя
С214 (контакт 22, желтый) Передняя часть - приборная панель Левая верхняя часть пространства для ног водителя
С216 (контакт 22, белый) Пол - приборная панель Под блоком предохранителей на приборной панели
С351 (контакт 29, белый) Пол - дверь водителя Внутренняя сторона левой передней стойки
С361 (контакт 29, белый) Пол - дверь пассажира Внутренняя сторона правой передней стойки
С401 (контакт 10, белый) Задняя дверь - пол За боковым стеклом в задней части кузова
С404 (контакт 8, белый) Задняя дверь - задняя дверь, допол. С левой стороны под задней дверью за задним фонарем
S101 (бел.) ПЕРЕДНЯЯ ЧАСТЬ Внутренняя сторона блока предохранителей в моторном отсеке
S205 (оранжев.) Приборная панель За приборной панелью в центре
S301 (черн.) Пол Под панелью поперечины со стороны водителя
G102 ПЕРЕДНЯЯ ЧАСТЬ За левой фарой
G201 Приборная панель Над кронштейном блока предохранителей на приборной панели
G205 Пол За блоком предохранителей на приборной панели
G301 Пол Под полом в салоне автомобиля
G405 Задняя дверь, допол. Под двигателем заднего стеклоочистителя

б. УСЛОВНОЕ ОБОЗНАЧЕНИЕ & И НАХОЖДЕНИЕ НОМЕРА КОНТАКТА

U5D1P026.png
Показать иллюстрациюПеревод текста в иллюстрациях


г. КОНТАКТНАЯ КОЛОДКА

s101 (itms-6f)

U6D1S002.png
Показать иллюстрациюПеревод текста в иллюстрациях


s101 (mr-140, sirius d4)

U6D1S001.png
Показать иллюстрациюПеревод текста в иллюстрациях


s204

U5D1S008.png
Показать иллюстрациюПеревод текста в иллюстрациях


s205

U5D1S009.png
Показать иллюстрациюПеревод текста в иллюстрациях


s301

U5D1S011.png
Показать иллюстрациюПеревод текста в иллюстрациях


На предыдущую страницуНа следующую страницу


https://vnx.su/ 🛠 Руководства по ремонту и эксплуатации для автомобилей

Поиск по сайту

Остались вопросы или пожелания? Пишите на почту: support@vnx.su

Карта Сайта